De 20 de ori mai multe anunțuri de la proprietari

Colectăm anunțuri de pe cele mai populare portaluri

Identificăm agentul imobiliar de proprietar după numărul de telefon

Prezentăm evoluția prețurilor

Eliminăm anunțurile duplicate

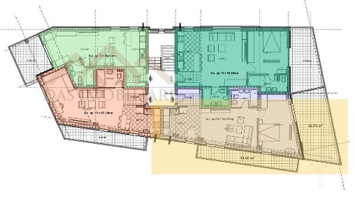
Vanzare-Apartament cu 2 camere, cu suprafata de 79 mp utili.

Valea Borcutului, Baia Mare, Maramures
  • Obiect RO-1352020255
  • adăugat:
fotografie - Vanzare-Apartament cu 2 camere, cu suprafata de 79 mp utili. fotografie - Vanzare-Apartament cu 2 camere, cu suprafata de 79 mp utili. fotografie - Vanzare-Apartament cu 2 camere, cu suprafata de 79 mp utili.
  • Dimensiune completă
  • Caută similar
fotografie - Vanzare-Apartament cu 2 camere, cu suprafata de 79 mp utili. fotografie - Vanzare-Apartament cu 2 camere, cu suprafata de 79 mp utili. fotografie - Vanzare-Apartament cu 2 camere, cu suprafata de 79 mp utili.

Vă propun spre vânzare un apartament modern, cu o suprafață totală de 79 mp, excelent poziționat într-o zonă liniștită și bine conectată la principalele puncte de interes. Proprietatea se remarcă prin compartimentarea practică și finisajele de calitate, fiind complet mobilată și utilată. Bucătăria este dotată cu aragaz, hotă și frigider încorporat, iar livingul, generos și luminos, dispune de televizor. Apartamentul beneficiază de balcon, ideal pentru relaxare, precum și de loc de parcare inclus în preț. Reprezintă o oportunitate excelentă atât pentru locuire imediată, cât și pentru investiție, oferind confort, funcționalitate și o locație avantajoasă.

Localizarea pe hartă

Obiecte în apropiere

Valea Borcutului, Baia Mare, Maramures
adaugă la favorite Apartament 2 camere, etaj 2, bloc nou str. Salciei
  • 85 000 €
  • 63 m²
Valea Borcutului, Baia Mare, Maramures
Valea Borcutului, Baia Mare, Maramures
adaugă la favorite Nou! Apartament Baia Mare 2 camere,Lămîiței, cartier rezidential
  • 72 500 €
  • 48 m²
Valea Borcutului, Baia Mare, Maramures
Valea Borcutului, Baia Mare, Maramures
adaugă la favorite Apartament 2 camere, str. Lămâiței, nou, finisat
  • 83 900 €
  • 48 m²
Valea Borcutului, Baia Mare, Maramures
Valea Borcutului, Baia Mare, Maramures
adaugă la favorite Apartament cu 2 camere Lamaitei
  • 78 500 €
  • 44 m²
Valea Borcutului, Baia Mare, Maramures