16 obiecte

Объект RO-1326996187 не найден. Возможно, он удалён по истечению срока давности, либо находится в процессе публикации.

Sepsi Value Center, Afacere La Cheie - salon de infrumusetare Giza Bea
Sepsi Value Center, Afacere La Cheie - salon de infrumusetare Giza Bea Sfantu Gheorghe, Covasna
40 000 €
400 € pentru m²
100 m²

Salutare dragilor! Agentia Scenik Imobiliare Brasov, va propune spre achizitie: AFACERE LA CHEIE! SALON DE INFRUMUSETARE! Suprafata utila 100 mp! Compus din: - Frizerie = 4 posturi - Coafura = 2 posturi - Scafa = 2 posturi - Manichiura = 1 post - Pedichiura = 1 post Salonul se vinde exact cum este prezentat, cu intreaga amenajare, mobilier, scaune, instrumente, aparatura, accesorii,.complet full cu toate cele necesare desfasurarii activitatii, deci pur si simplu se poate prelua din mers si continua activitatea, doar se va schimba proprietarul! Se vinde inclusiv cu denumirea salonului "GIZA BEAUTY CENTER"! Compartimentarea acestuia este formata dintr-un spatiu principal, unde functioneaza frizeria, coafura si manichiura si din alte doua spatii unde functioneaza salonul de cosmetica, iar in celalalt pedichiura. Deasemeni detine si un grup sanitar! Pretul de achizitie al afacerii 40.000 euro Spatiul unde functioneaza se inchiriaza de la Sepsi Value Center pentru 3.000 euro lunar! Depozitul pentru inchirierea spatiului 7.000 euro, care este inclus pretul de achizitie al afacerii! Spatiul, momentan este inchiriat pentru inca doi ani, prioritar spre prelungirea contractului! Pret de achizitie al afacerii 40.000 euro Pentru alte detalii, cu drag aici la dispozitia dvoastra, Nicolae STOICA, Scenik Imobiliare Brasov! Tel/wapp

Spațiu comercial premium,ultrafinisat,Comfort-Residence
Spațiu comercial premium,ultrafinisat,Comfort-Residence Sfantu Gheorghe, Covasna
99 000 €
2 475 € pentru m²
40 m²

Descoperă acest spațiu comercial exclusivist,situat în una dintre zonele apreciate ale mun.Sf.Gheorghe-Comfort Residence 1. Conceput pentru confort,eleganță și funcționalitate,acest spațiu reprezintă o alegere ideală pentru cei care doresc o afacere într-un mediu nou,modern și reprezentativ. Spațiul este complet mobilat și utilat,gata pentru a fi folosit imediat. O locație excelentă pentru birouri de reprezentanță,cabinet medical,salon de înfrumusețare,showroom sau boutique.

FILM! Ansamblu: Spatii comerciale, birouri, productie si similare, Sfa
FILM! Ansamblu: Spatii comerciale, birouri, productie si similare, Sfa Sfantu Gheorghe, Covasna
2 150 000 €
683 € pentru m²
3146 m²

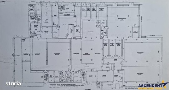
Comision cumparator:2% +tva, din valoarea de tranzactionare. ASCENDENT IMOBILIARE Covasna va prezinta o oportunitate unica de investitie in localitatea Sfantu Gheorghe. Pentru confortul dumneavoastra va invitam sa faceti o prima vizionare, din locatia unde va aflati, chiar acum, prin accesarea filmului de prezentare, pe care vi l- am pregatit, cu drag: Film Prezentare: s: watch?v=Ma01hhgomzw Oferim spre vanzare o hala industriala impreuna cu spatii de birouri. Localizata intr-o zona aflata in plina dezvoltare, proprietatea ofera cumparatorului posibilitatea de extindere a afacerii, beneficiind de spatii generoase, atat ca numar cat si ca dimensiune. Acest imobil versatil poate fi transformat intr-un hub de productie, un spatiu de depozitare sau inchiriata. Are acces auto din drumul judetean DJ112, fiind usor accesibil. De asemenea dispune de toate utilitatile pentru ca afacerea sa fie sustenabila. Suprafata totala a terenului este de 14.546 mp, teren intravilan. Suprafata construita la sol a halei este de 3.148 mp; alaturi de acesta fiind disponibile si alte spatii - anexe. Datorita pozitiei sale privilegiate, aceasta proprietate reprezinta o oportunitate imobiliara si investitionala excelenta pentru o afacere de succes. Proprietatea in prezent este inchiriata in proportie de 80% si produce un venit substantial si poate fi pastrata pentru acest segment de activitate. Detalii, fotografii suplimentare si alte variante exclusive :ascendentimobiliare.ro

Pensiune de vânzare în Vama Veche - la doar 5 minute de plajă!
Pensiune de vânzare în Vama Veche - la doar 5 minute de plajă! Strada Margaretei, Vama Veche, Limanu, Constanta
297 000 €
792 € pentru m²
375 m²

Pensiune de vânzare în Vama Veche - la doar 5 minute de plajă! Îți prezentăm o oportunitate rară de investiție pe litoralul românesc: o pensiune complet funcțională, situată în inima stațiunii Vama Veche, la doar 5 minute de mers pe jos până la plajă. Proprietatea se află într-o zonă ideală, liniștită, dar în același timp foarte aproape de principalele puncte de atracție ale stațiunii. Pensiunea este construită pe un teren de 600 mp și este alcătuită din parter și etaj, având în total 15 camere, fiecare cu baie proprie. Toate camerele sunt complet mobilate și dotate, fiind pregătite pentru preluare imediată, Curtea este generoasă și poate fi amenajată pentru relaxare, servirea mesei sau diverse activități pentru turiști. În proximitate se află numeroase magazine, baruri, restaurante și alte facilități care transformă zona într-un punct de interes major pentru turiști. Locația este perfectă atât pentru turiștii care caută distracție, cât și pentru cei care își doresc o vacanță relaxantă la malul mării. Această pensiune reprezintă o afacere la cheie, cu potențial ridicat de profit și un istoric bun de închiriere în sezon. Este ideală pentru investitori care vor să intre rapid pe piața ospitalității dintr-o zonă cu cerere constantă. Pentru mai multe detalii și programarea unei vizionări, nu ezita să mă contactezi.

Spatiu comercial premium, 286 mp, central - Sfantu Gheorghe
Spatiu comercial premium, 286 mp, central - Sfantu Gheorghe Sfantu Gheorghe, Covasna
715 000 €
2 500 € pentru m²
286 m²

Agenția imobiliară Blitz, vă oferă spre vânzare un spațiu modern, finalizat în 2024 și intabulat, situat la parterul unui imobil rezidențial cu 3 etaje, chiar în centrul municipiului Sfântu Gheorghe, în apropiere de Spitalul de Pneumologie și de zone cu trafic intens. - Suprafață utilă totală: 286 mp - Compartimentare practică: 9 încăperi versatile (birouri, cabinete, spații comerciale), zonă de recepție și sală de așteptare, 2 grupuri sanitare pentru clienți, vestiar și grupuri sanitare pentru personal, spații tehnice și zonă de sterilizare. - Facilități: finisaje premium, la cheie, încălzire în pardoseală cu centrală proprie și pompă de căldură (fără gaz), acces pentru persoane cu dizabilități, vitrine generoase la stradă, 2 locuri de parcare în curtea interioară + parcare publică la 50 m. Locația excelentă și compartimentarea flexibilă fac din acest spațiu alegerea ideală pentru clinici, birouri, showroom-uri sau diverse activități comerciale. Pentru detalii și vizionări, nu ezitați să ne contactați.

De vânzare spațiu comercial în centrul municipiului Sfântu Gheorghe!
De vânzare spațiu comercial în centrul municipiului Sfântu Gheorghe! Sfantu Gheorghe, Covasna
699 000 €
1 222 € pentru m²
572 m²

Proprietatea este situată pe un teren de 572 m², având la stradă o clădire din cărămidă de 150 m², unde în prezent funcționează o unitate de alimentație publică. Sub clădire se află o pivniță generoasă de 135 m², practică pentru depozitare sau alte utilizări. În partea din spate a curții se află o construcție începută cu etaj, ce poate fi finalizată și adaptată după nevoile viitorului proprietar. Imobilul dispune de toate utilitățile necesare: rețea electrică trifazată, gaz, apă curentă și canalizare. Datorită amplasării și flexibilității sale, această proprietate reprezintă o alegere bună pentru spațiu comercial, birouri, cabinet medical sau pentru continuarea activităților de alimentație publică.

Spatiu comercial - Clinica medicala
Spatiu comercial - Clinica medicala Sfantu Gheorghe, Covasna
630 000 €
2 203 € pentru m²
286 m²

Agenția imobiliară Alfa Invest vă propune spre vânzare sau închiriere un spațiu modern, special conceput pentru activități medicale. Imobilul este situat la parterul unui bloc rezidențial cu 3 etaje, într-o zonă cu potențial deosebit, în imediata vecinătate a Spitalului de Pneumologie, chiar în centrul orașului Sfântu Gheorghe, județul Covasna.

Spațiu comercial de vânzare în Sfântu Gheorghe!
Spațiu comercial de vânzare în Sfântu Gheorghe! Sfantu Gheorghe, Covasna
47 000 €
1 175 € pentru m²
40 m²

Imobilul este situat în Sfântu Gheorghe, pe strada Romulus Cioflec, într-o zonă accesibilă și liniștită. Dispune de 2 camere, o baie și o bucătărie transformată în spațiu de depozitare.

FILM! Centru de intretinere auto, dotat, preluare business, zona cu tr
FILM! Centru de intretinere auto, dotat, preluare business, zona cu tr Strada Locotenent Pais David, Sfantu Gheorghe, Covasna
154 800 €
1 548 € pentru m²
100 m²

Comision cumparator 0% ASCENDENT IMOBILIARE COVASNA este onorata sa va propuna spre vanzare o spalatorie auto, pozitionata in cartierul Garii, din Sfantu Gheorghe. Va invitam sa experimentati o vizionare initiala, din locatia unde va aflati, chiar acum, prin accesarea filmului de prezentare: Videoprezentare: s: watch?v=-b6C7l0Vcw Imobilul dispune de toate avizele si utilitatile necesare functionarii. Este compus din 2 boxe, bar si toaleta, cu suprafata utile de 100 mp, pe un teren de 500 mp, cu posibilitate de extindere cu inca 100 mp. Vanzarea poate fi efectuata si fara echipamente, care au o valoare de 20.000 EUR Pentru mai multe informatii sau pentru a programa o vizionare, nu ezitati sa ne contactati! Consilierii dedicati alesei oferte: domnul Ionel Manailescu, Telefon WhatsApp:

Complex Gastronomic:Afacere la cheie, Restaurant traditional secuiesc+
Complex Gastronomic:Afacere la cheie, Restaurant traditional secuiesc+ Sfantu Gheorghe, Covasna
2 180 000 €
2 725 € pentru m²
800 m²

Comision cumparator: 0 % ASCENDENT IMOBILIARE COVASNA este onorata sa va prezinte spre vanzare Complex Gastronomic Premium situat intr-un cadru idilic, inconjurat de castani seculari, care creeaza o atmosfera unica de poveste. O prima sectiune este materializata printr-un apreciat restaurant traditional secuiesc. O alta componenta, alaturi de afacerea la cheie, este o pretioasa carmangerie traditionala, menita sa completeze experienta culinara oferita clientilor si nu numai. Va invitam sa experimentati o vizionare initiala, din locatia unde va aflati, chiar acum, prin accesarea turului virtual si a filmului de prezentare: Exploreaza Virtual: s: show ?m=hkiNBVp5ftR Film prezentare:s: watch?v=OH-fURfX0Ow Restaurantul este amenajat in stil autentic secuiesc, cu detalii rustice, mobilier din lemn masiv si elemente decorative locale, oferind o atmosfera traditionala deosebita. Terasa spatioasa, amplasata sub umbra generoasa a arborilor seculari, creeaza un spatiu relaxant, ideal pentru evenimente speciale. In cadrul proprietatii functioneaza si o carmangerie dotata cu echipamente moderne, unde sunt preparate produse traditionale dupa retete autentice. Capacitatea totala ajunge la 600 de locuri, dintre care 280 sunt disponibile in interior, iar 320 pe terasa. Bucataria este mobilata si accesorizata la standarde actuale. Spatiile de depozitare sunt generoase, alaturi de o parcare bine dimensionata si un acces facil. Locul de joaca amenajat ofera un spatiu sigur si atractiv, unde cei mici se pot bucura de momente de distractie si aventura intr-un cadru prietenos si bine echipat. Situat intr-o zona cu un potential turistic ridicat, acest loc atrage atat clienti locali, cat si vizitatori. Business-ul este complet operational, beneficiind de un public fidel si apreciere constanta reflectata in recenzii excelente. Posibilitatea de organizare a evenimentelor tematice, degustarilor si atelierelor culinare contribuie la diversificarea experientei oferite. Totodata, promovarea produselor proprii din carmangerie poate duce la o crestere semnificativa a activitatii. Intr-un cadru natural unic, fiecare vizitator are parte de momente memorabile si autentice. Desigur, particularitatile acestei oportunitati comercial-investitionale invita la o cunoastere detaliata! Invitam colegii la colaborare: onoram agentul agentia partenera cu onorariul aferent! Consilier dedicat alesei oferte: domnul Lorincz Lehel Telefon WhatssApp:

Spatiu 58 mp utili, parter,INTRARE DIRECTA DIN STRADA, str Sporturilor
Spatiu 58 mp utili, parter,INTRARE DIRECTA DIN STRADA, str Sporturilor Strada Sporturilor, Sfantu Gheorghe, Covasna
69 000 €
1 190 € pentru m²
58 m²

Spatiu in de vanzare in zona Ultracentral - Sfantu Gheorghe, str Sporturilor nr 10, avand 3 camere, 1 bai. -INTRARE DIRECT DIN STRADA + +intrare din casa scarii; -suprafata utila 54 mp +4 mp intrarea; -necesita renovare ! -pretabil cabinet medical, salon de infrumusetare, birou, etc ! COMISON 0 % ! Pretul este negociabil. ID intern: 2874

FILM&Tur LIVE!Spatiu Ultracentral,Sfantu Gheorghe,purtator profit,8% r
FILM&Tur LIVE!Spatiu Ultracentral,Sfantu Gheorghe,purtator profit,8% r Sfantu Gheorghe, Covasna
427 680 €
2 299 € pentru m²
1-cam 186 m² 1 p

Comision cumparator: 0% ASCENDENT IMOBILIARE este onorata sa va prezinte un spatiu disponibil in judetul Covasna, amplasat in zona ultracentrala, cu o suprafata utila de 186 metri patrati. Birourile sunt situate la etajul 1 al unei cladiri de bloc, accesul realizandu-se direct din strada principala, ceea ce ofera vizibilitate si accesibilitate facila. Va invitam sa experimentati o vizionare initiala, din locatia unde va aflati, chiar acum, prin accesarea turului virtual si a filmului de prezentare: Tur virtual tridimensional: s: show ?m=FTG1Qqpmbkm Film prezentare: s: watch?v=dzIdZ7StGy0 Proprietatea este compartimentata eficient, fiind compusa din sapte birouri spatioase care permit desfasurarea activitatilor intr-un cadru profesionist, completate de doua balcoane care pot fi utilizate atat pentru relaxare, cat si pentru activitati auxiliare. De asemenea, sunt disponibile doua grupuri sanitare, o magazie si un spatiu de depozitare, ceea ce contribuie la functionalitatea intregului ansamblu. In prezent este inchiriata integral si se poate preda cu preluare de chiriasi, reprezentand astfel o oportunitate excelenta pentru investitie cu venituri imediate din chirii. Ariat intr-un complex urban bine dezvoltat, caracterizat printr-un mix echilibrat de functiuni rezidentiale, comerciale si administrative. In imediata apropiere se regasesc institutii publice, banci, magazine, restaurante, cafenele si puncte de interes major, ceea ce confera zonei un flux constant de persoane si o vizibilitate sporita. Accesul usor atat pietonal, cat si rutier, impreuna cu proximitatea mijloacelor de transport in comun, contribuie la atractivitatea si functionalitatea acestui spatiu. Cladirea in care se afla este bine intretinuta si beneficiaza de toate utilitatile, oferind un cadru profesional optim pentru diverse tipuri de activitati - de la servicii si consultanta pana la activitati administrative sau operationale. Prin pozitionarea strategica si configuratia sa, raspunde atat asteptarilor investitorilor care doresc preluarea unui imobil puratator profit cat si celor care cauta un sediu reprezentativ pentru propriul business. Consilier specializat pe aleasa oferta: domnul Andrei Rusu Telefon WhatsApp:

De vânzare spatiu nou construita pentru activitati medicala.
De vânzare spatiu nou construita pentru activitati medicala. Sfantu Gheorghe, Covasna
858 000 €
3 000 € pentru m²
286 m²

De vânzare spațiu pentru activitate medicală, situat într-o clădire nou-construită (Comfort Residence 2), în zona centrală a orașului, lângă spitalul de pneumologie pe strada Spitalul în Sfântu Gheorghe. Spațiul are suprafața de 286,17 m2 și este compus din 9 spații pentru cabinete, zonă pentru recepție și de așteptare pentru clienți, două băi destinate clienților, spații tehnice, spațiu de sterilizare, vestiar și băi pentru personal. Este în curs de autorizare ISU. Pret-3000€/mp.plus TVA. Telefon-

De vânzare cladire în Sfântu Gheorghe
De vânzare cladire în Sfântu Gheorghe Sfantu Gheorghe, Covasna
950 000 €
856 € pentru m²
2-cam 1110 m² 2 p

De vânzare o cladire administrativa/birouri cu 3 nivele pe strada Lt.Paius David în Sfântu Gheorghe (vizavii cu benzinaria Lukoil). Cladirea are un regim de înaltime parter+2 nivele (parter+etajul 1+mansarda),are o suprafata totala de 1110 mp (370 mp pe nivele)si este situata pe un teren de 1131 mp. Cladirea se compuna din mai multe birouri si din mai multe grupuri sanitare. Utilitati:apa de la retea, curent electric,canalizare,gaz. Încālzire:centrala termica pe gaz si pe lemne. Pret:950.000 euro. Telefon -

De vânzare spatiu comercial ín Sfantu Gheorghe
De vânzare spatiu comercial ín Sfantu Gheorghe Sfantu Gheorghe, Covasna
125 000 €
1 953 € pentru m²
64 m²

De vânzare spatiu comercial pe strada Lacramioarei (vizavi cu magazinul Penny)în Sfântu Gheorghe. Imobilul are 64 mp.si momentan functioneaza ca si magazin de haine noi. Spatiul este dotata cu centrala termica,sistem de alarma si camera, geamuri termopane,etc. Din spatiul respectiv o camera este pretabil pentru casa de amanet (are autorizatie ca si casa de amanet). Noul proprietar poate sa desfasura 2 activitati comerciala:ca si magazin si ca si casa de amanet. Pret-125.000 euro. Telefon -

Unitate Sanitară de vânzare !
Unitate Sanitară de vânzare ! Sfantu Gheorghe, Covasna
550 000 €
1 730 € pentru m²
1-cam 318 m² 1 p

Compania DEJAN IMOB vă prezintă spre vânzare o oportunitate unică de investiție, Policlinica PARTISA, un centru medical finalizat în anul 2009, situat în orașul Sfântu Gheorghe, pe strada Podului.

Deschide harta Harta