4 obiecte

Vând Studio Bucureștii Noi aproape de metrou Parc Bazilescu
Vând Studio Bucureștii Noi aproape de metrou Parc Bazilescu Bucuresti - Ilfov, Bucuresti, Sectorul 1
100 000 €
2 857 € pentru m²
35 m² 1 p

Vând Studio, confort Lux, în aproprierea stației de metrou Bazilescu, într-o zonă foarte liniștită a Bucureștiului. Locuința este situată la etajul 1 din 2 plus mansardă, blocul este construit în 2012, are dotări și finisaje impecabile. Nu a fost niciodată închiriată. Are o terasă de 8 metri pătrați cu o expunere Vest și o priveliște deosebită. Se vinde complet mobilată și utilată. Pentru mai multe detalii, vă rog să mă contactați la numarul afișat, direct proprietar. Cu posibilitate de mutare imediată în ziua încheierii actelor!

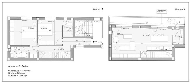
Comision 0% Bucurestii Noi-Miercani duplex 2025:97mp-living+3Dorm+3Bai
Comision 0% Bucurestii Noi-Miercani duplex 2025:97mp-living+3Dorm+3Bai Bucuresti - Ilfov, Bucuresti, Sectorul 1
258 000 €
2 660 € pentru m²
3-cam 97 m² 1 p

Direct de la proprietar fara comision 2 apartamente de 3 camere Imobil nou finalizat 2025,amplasat in zona Bucurestii Noi intre Bulevardul Bucurestii si Strada Fabrica de Caramida pe strada Miercani. 1. Duplex 3 camere 97mp,etaj 1 si 2 cu access pe scara interioara intre cele doua etaje - etajul 1 cu zona de noapte : 2 dormitoare +2 bai - etajul 2 cu zona de zi : living +bucatarie + baie + terasa generoasa Pret : 258000Euro 2. Parter un apartament cu 3 camere 85mp cu curte proprie de 71mp Living+2 Dormitoare+2bai+dressing foarte mare+curte mare 71mp Pret : 268000Euro Apartamentele sunt finisate complet,cu incalzire in pardoseala si centrala termica proprie pe gaz.Deasemenea in pretul de vanzare este inclus si un loc de parcare exterior in proprietate pentru fiecare apartament Imobilul beneficiaza de toate utilitatile necesare cu contorizare individuala : gaz,energie electrica,apa,canalizare cu contracte incheiate cu furnizorii respectivi de utilitati. Statia de metrou Laminorului se afla situata la 800ml fata de imobil la o distanta de 10 minute de mers pe jos,Parcul Bazilescu la maxim 15 minute. Documentele de proprietate sunt complete.Se accepta si credit bancar

Vand apartament 3 camere Bucureștii Noi!
Vand apartament 3 camere Bucureștii Noi! Bucuresti - Ilfov, Bucuresti, Sectorul 1
175 000 €
2 574 € pentru m²
3-cam 68 m²

Apartament 3 camere la demisol inalt Propietar de 10 ani Constructia este din 2010 Apartamentul are 68 m patrati 3 camere Bucatarie inchisa Centrala proprie Metrou jiului la 5 minute de mers pe jos Kaufland,Lidl,Mega image foarte aproape Se vinde exact ca in poze,complet mobilat

Vânzare, apartament cu 3 camere în zona Bucureștii Noi
Vânzare, apartament cu 3 camere în zona Bucureștii Noi Sectorul 1, Bucuresti
156 500 €
2 059 € pentru m²
3-cam 76 m² 3/4 p

Apartament cu 3 camere în Bucureștii Noi - Ideal pentru locuință sau investiție! Vă prezentăm un apartament de tip studio modern, aflat într-o zonă verde și în plină dezvoltare din Bucureștii Noi - perfect pentru o familie tânără sau ca oportunitate de investiție. Caracteristici principale: • Suprafață utilă: 76,5 mp; • Grădină privată cu terasă: 6,5 mp - locul perfect pentru relaxare în aer liber; • Compartimentare eficientă; • Camere: 2 camere luminoase și bine compartimetate; • Living: luminos și spațios; • Bucătărie: mobilată și dotată cu toată tehnica necesară; • Bloc sanitar: asigură confort pentru toți membrii familiei; • Balcon: o grădină care oferă un spațiu suplimentar pentru relaxare; • Etaj: P - cu acces direct către grădină; • Încălzire prin pardoseală și centrală termică proprie - pentru un confort optim în orice sezon; • Tehnologie ECO friendly și panouri fotovoltaice - costuri reduse și sustenabilitate; • Locuri de parcare disponibile pentru achiziție. Beneficii zonă: • Cartier verde, cu peste 1000 de copaci plantați; • Acces facil la transport public, școli, centre comerciale și alte facilități urbane. Ideal pentru cei care caută un spațiu modern, eficient și conectat la oraș, dar și pentru investitori care doresc un imobil valoros și ușor de închiriat. Pentru mai multe detalii, contactați expertul nostru!

Deschide harta Harta