49 obiecte

Apartament 3 camere zona Mihai Viteazul Sibiu
Apartament 3 camere zona Mihai Viteazul Sibiu Hipodrom III, Sibiu
135 000 €
2 143 € pentru m²
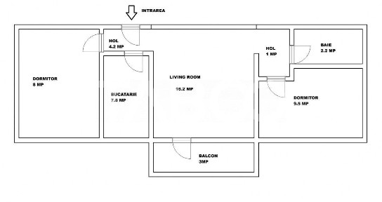
3-cam 63 m² 3 p

P18199 Smart Imobiliare propune spre vânzare un apartament cu 3 camere, situat în Sibiu, în zona Mihai Viteazul, având o suprafață utilă de aproximativ 63 mp (76 mp suprafață construită). Apartamentul este amplasat la etaj 3 al unui imobil cu 4 niveluri și se remarcă prin compartimentarea decomandat și poziționarea într-o zonă cu acces facil către scoli, gradinite, magazine diverse, supermarket-uri, mall, locuri de joaca si statii de transport in comun Imobilul în care se află apartamentul este de tip bloc, edificat în anul 1977, pe structură beton. Compartimentarea este una practică, cu o delimitare clară între zona de zi și zona de noapte. Apartamentul cuprinde living, 2 dormitoare, 1 bucătărie, 1 camara, 1 baie, 1 debara pentru depozitare și hol de acces. Spațiile exterioare includ 2 balcoane cu o suprafață totală de aproximativ 10 mp oferind locuri suplimentare pentru relaxare sau depozitare. La nivel de dotări, proprietatea beneficiază de curent electric, apa, canalizare, gaz, fibra optica, sistem de încălzire prin centrala proprie, calorifere, izolații exterioare exterior, ferestre termopan, pardoseli parchet, gresie, pereți finisați cu vopsea lavabila, faianta, ușă de intrare metal și uși de interior pvc. Apartamentul se vinde partial mobilat aspect care poate reprezenta un avantaj pentru viitorul proprietar, fie că dorește să îl locuiască imediat, fie să îl închirieze. În zonă există posibilitatea de parcare prin locuri publice în funcție de disponibilitate, iar amplasarea oferă acces rapid către puncte importante din Sibiu. Prin poziționare, suprafață și dotări, acest apartament este potrivit pentru o familie, un cuplu sau investitor care își dorește un apartament într-o zonă căutată din Sibiu, cu acces bun și confort sporit. Poate reprezenta atât o locuință stabilă pe termen lung, cât și o investiție bună, ușor de valorificat prin închiriere. Prețul de promovare este de 135.000€ /negociabil în funcție de condițiile stabilite împreună cu proprietarul. Pentru mai multe detalii despre această proprietate și pentru programarea unei vizionări, vă rugăm să contactați consultantul responsabil. Smart Imobiliare vă oferă consultanță completă pe tot parcursul tranzacției, de la prima vizită și până la predarea cheilor.

Apartament 3 camere 76 mp la cheie zona Bvd. Mihai Viteazu Sibiu
Apartament 3 camere 76 mp la cheie zona Bvd. Mihai Viteazu Sibiu Hipodrom I, Sibiu
108 000 €
1 286 € pentru m²
3-cam 84 m²

Va propunem spre vanzare un apartament de 3 camere decomandat de 84 MP, situat la mansarda unui imobil cu 4 nivele aflat pe bldv Mihai Viteazu din Sibiu. Compartimentat astfel: - La primul nivel : living open space cu bucataria iesire in balcon si baie - La al doilea nivel: 2 dormitoare, baie, spatiu de depozitare Apartament ideal pentru o familie sau investitie, zona linistita, accesibilitate la : - Farmacii - Statii de autobuz si taxi - Acces rapid la gradinite, scolii si licee - In apropierea magazinelor alimentare - Piata agroalimentara - Sala de sport Pentru detalii si vizonari nu ezitati sa ma contactati.

Apartament 3 Camere I Dcomandat I Balcon I Mihai Viteazu
Apartament 3 Camere I Dcomandat I Balcon I Mihai Viteazu Hipodrom III, Sibiu
75 000 €
1 339 € pentru m²
3-cam 56 m² 5/5 p

Se vinde un apartament cu 3 camere decomandat, situat la etajul 5 din 5, în zona Mihai Viteazul, una dintre cele mai căutate și bine conectate zone ale orașului. Locuința este structurată pe două niveluri, oferind spațiu bine organizat și o compartimentare practică. Compartimentare: Nivelul inferior: Bucătărie open space Baie cu geam de aerisire Dormitor cu ieșire în balcon Nivelul superior: 2 camere separate, ideale ca dormitoare, birou sau spații de relaxare Detalii importante: Suprafață bine distribuită Compartimentare complet decomandată Intabulat - se poate achiziționa prin credit ipotecar Poziție excelentă: aproape de mijloace de transport, supermarketuri, școli, farmacii și alte puncte de interes Acest apartament este ideal pentru familii sau pentru cei care își doresc un spațiu bine împărțit, într-o zonă foarte accesibilă. Pentru informati si vizionari:ID: CP2840114

Mansarda de vanzare cu mutare imediata 85 mpu Zona Mihai Viteazul
Mansarda de vanzare cu mutare imediata 85 mpu Zona Mihai Viteazul Trei Stejari, Sibiu
89 900 €
1 058 € pentru m²
3-cam 85 m² 10 p

Apartament 3 camere de vanzare, decomandat, 85 mp, zona Mihai Viteazul, Sibiu. TABOO Imobiliare propune un apartament de vanzare cu 3 camere, decomandat, situat in localitatea Sibiu, zona Mihai Viteazul, aflat la Mansarda intr-un imobil tip bloc cu regim de inaltime pe Parter + 4 Etaje + Mansarda; anul constructiei 1986, structura caramida. Suprafata utila de 85 mp + balcon de 5 mp. • Hol; • Bucatarie + Living + Balcon; • Baie; • 2 Dormitoare; • Hol intermediar; • Debara; • Usa intrare: metal; • Usi interioare: celulare; • Tamplarie ferestre: pvc, termopan; • Pereti: vopsea lavabila, faianta; • Podele: parchet, gresie. • Bucatarie: mobilata, utilata; • Mobilat: complet; • Utilitati: curent electric, apa, gaz, catv; • Izolatii: exterior, bloc izolat termic; • Contorizare: apometre, contor gaz, contor curent electric; • Caracteristici bloc: interfon, acoperis. Apartamentul se vinde mobilat si utilat cu: plita pe gaz, cuptor, hota, masina de spalat rufe, frigider cu congelator. Incalzirea se realizeaza prin centrala proprie, calorifere. Se accepta ca si modalitate de plata surse proprii sau credit bancar. Pret: 89.900€ Sună-ne acum și află detalii despre această proprietate de vanzare din Sibiu, dar și despre alte proprietăți potrivite pentru tine.

Apartament 3 camere decomandate 2 balcoane zona Mihai Viteazul Sibiu
Apartament 3 camere decomandate 2 balcoane zona Mihai Viteazul Sibiu Hipodrom III, Sibiu
139 000 €
2 206 € pentru m²
3-cam 63 m² 3/4 p

Va prezentam un apartament cu 3 camere decomandate si 2 balcoane, pozitionat la etajul 3 al unui imobil cu doar 4 etaje, situat in zona Mihai Viteazu din Sibiu. Apartamentul are 63 mp utili si este compus din doua dormitoare de aproximativ 12.00 mp fiecare, o camera de zi spatioasa, bucatarie, hol si baie. Separat de suprafata utila acesta dispune de 2 balcoane, unul deschis cu acces dintr-un dormitor, iar al 2-lea inchis si cu acces din bucatarie unde este amenajat locul de gatit. Locuinta beneficiaza de un design interior modern si detine ca dotari usa de acces din metal, tamplarie pvc cu geam termopan, parchet din lemn masiv, gresie, faianta, cada de baie, usi interioare din pvc, centrala termica, calorifere mixte. Apartamentul mai beneficiaza si de alte dotari cum ar fi aer conditionat in living, masina de spalat rufe, cuptor electric, plita gaz, hota, frigider, masina de spalat vase, centrala proprie marca Viessmann si calorifere. Situat in zona Mihai Viteazul, aveti acces facil la diverse puncte de interes precum centre comerciale, scoli, parcuri si mijloace de transport in comun, facilitand un stil de viata convenabil si activ. Apartamentul se vinde partial mobilat in camere si utilat masina de spalat rufe, cuptor electric, plita pe gaz, frigider si hota. Valoarea de achizitie a locuintei este de 139.000 euro negociabil. ID intern: 3123.

Penthouse de Lux 111 mp Selimbar
Penthouse de Lux 111 mp Selimbar Selimbar, Sibiu
220 000 €
1 982 € pentru m²
3-cam 111 m² 9/9 p

PENTHOUSE EXCLUSIV - 3 CAMERE, FINISAT LA CHEIE Șelimbăr - Sibiu, Bulevardul Mihai Viteazu Suprafață utila: 111 mp + terasă 27 mpu Disponibilitate imediată Descoperă un penthouse spectaculos, ideal pentru cei care caută spațiu, lumină și confortul unui cămin modern, amplasat într-o zonă aflată în plină dezvoltare, pe unul dintre cele mai importante bulevarde din Șelimbăr. Compartimentare & Dotări: • Hol acces • Living generos cu bucătărie open-space - aproximativ 65 mpu • 2 dormitoare, ( unul cu dressing și baie proprie) • Baie cu cada si geam de aerisire • Terasă spațioasă - 27 mp- cu pardoseala flotanta din gresie • Apartament situat într-un imobil P+8E+ER, dotat cu lift pentru 8 persoane Predare la cheie - totul pregătit pentru mutare: • Finisaje finale cu materiale de calitate incluse • Izolație cu vată bazaltică • Ușă metalică la intrare • Încălzire în pardoseală • Uși de interior filomuro montate • Parchet herringbone • Obiecte sanitare montate • Detine doua locuri de parcare Avantaje zonă: • Acces facil la puncte de interes • Centre comerciale în imediata apropiere • Conectivitate excelentă - bulevard principal, infrastructură modernă • Cartier în plină dezvoltare Proprietate de la persoană fizică Disponibil imediat Contactează-ne pentru detalii sau programarea unei vizionări! PRET: 220.000 Euro COMISION 0

Ap. cu 3 camere, 2 bai, 2 balcoane, 2 locuri de parcare, Selimbar
Ap. cu 3 camere, 2 bai, 2 balcoane, 2 locuri de parcare, Selimbar Strada Mihai Viteazul, Selimbar, Sibiu
149 900 €
1 874 € pentru m²
3-cam 80 m² 2/2 p

Ofer spre vanzare un apartament cu 3 camere si 2 balcoane, tip open space, situat intr-un ansamblu nou de blocuri, reper strada Pictor Brana. Apartamentul este situat la etajul 2 al unui bloc cu 2 etaje si totalizeaza o suprafata utila de 80 mp. Separat de acest spatiu, locuinta beneficiaza si 2 balcoane, cu suprafata de 5 mp fiecare, ideale pentru depozitare si relaxare, si 2 locuri de parcare. Acest apartament de vanzare in Sibiu este compus dintr-un hol, un living open space cu bucatarie, cu iesire intr-un dintre balcoane, 2 dormitoare si 2 bai. Mai mult, apartamentul beneficiaza de 2 locuri de parcare si cota parte din pod. Avantaje apartament de vanzare in Sibiu: Zona Pictor Brana Acces facil catre multe puncte de interes Multa lumina naturala Finisaje de calitate Cota parte din pod Cai de acces iluminate si asfaltate Mobilat si utilat modern 2 locuri de parcare 2 bai Apartament la vila 2 balcoane. ID intern: 22987.

Apartament 3 camere, M. Viteazul-Rahovei, COMISION 0%
Apartament 3 camere, M. Viteazul-Rahovei, COMISION 0% Hipodrom I, Sibiu
89 000 €
1 254 € pentru m²
3-cam 71 m² 5/5 p

Mansardă modernă 3 camere, 71 mp utili - Rahovei / Mihai Viteazul - Predare la cheie Oglan Imobiliare vă propune spre vânzare o mansardă modernă și spațioasă, situată în zona Rahovei - Mihai Viteazul, aproape de magazine, școli, stații de transport și centre comerciale. Zonă liniștită, cu acces excelent către toate punctele de interes din oraș. Descriere apartament (71 mp utili, 2 niveluri): Nivel inferior: • Living spațios cu bucătărie open-space • Baie complet echipată Nivel superior: • 2 dormitoare luminoase • Baie de serviciu Detalii: • Semidecomandat • Mansardă într-un bloc cu 5 etaje • Predare la cheie • Finisaje moderne • Ideal pentru familie sau cuplu Preț: 89.000 € negociabil, COMISION 0% Apartament luminos, modern, foarte bine compartimentat - pregătit pentru mutare imediată. Nu ezita sa ne contactezi pentru mai multe detalii sau pentru a programa o vizionare!

Apartament 3 camere Mihai Viteazu, Iorga
Apartament 3 camere Mihai Viteazu, Iorga Hipodrom III, Sibiu
140 000 €
1 918 € pentru m²
3-cam 73 m² 3/4 p

Vindem apartament compus din 3 camere decomandate, etaj 3, bucatarie, hol, baie cu geam, 2 balcoane, pivnita. Suprafata utila 73 mp. Apartamentul dispune de centrala termica proprie, parchet, ferestre termopan, usa metalica, gresie, faianță. Zona Bulevardul Mihai Viteazu - Nicolae Iorga Pret 140.000 euro negociabil. Tel. 0721/117799.

Apartament 3 camere zona Mihai Viteazu Sibiu
Apartament 3 camere zona Mihai Viteazu Sibiu Strada Mihai Viteazu, Selimbar, Sibiu
86 000 €
1 911 € pentru m²
3-cam 45 m² 3/4 p

Apartament cu 3 camere, mobilat la cheie în Zona Mihai Viteazu Vă prezentăm un apartament cu 3 camere, situat la etajul 3 din 4 dintr-un imobil din zonă Mihai Viteazu Sibiu Acest apartament, cu o suprafață utilă de 45 mp, este compus dintr-un hol de primire, un living luminos, o bucătărie funcțională, două dormitoare confortabile și o baie.

Apartament cu 3 camere mobilat si utilat zona Mihai Viteazu din Sibiu
Apartament cu 3 camere mobilat si utilat zona Mihai Viteazu din Sibiu Hipodrom III, Sibiu
119 000 €
1 469 € pentru m²
3-cam 81 m²

De vanzare apartament cu 3 camere, orientat catre SUD, situat intr-un imobil din zona Mihai Viteazu in Sibiu. Locuinta are 81 mp utili si este dispusa pe doua niveluri, avand o compartimentare practica si moderna. La primul nivel se afla holul de acces cu cuier si pantofar, baie, livingul spatios si bucataria de tip open-space, precum si scara din metal cu trepte din lemn masiv care duce la etaj. La nivelul superior se afla un hol cu dressing si doua dormitoare luminoase si confortabile. Apartamentul se vinde complet mobilat si utilat. Bucataria este amenajata modern, cu mobila realizata la comanda si electrocasnice de calitate, printre care se numara masina de spalat rufe, masina de spalat vase mare marca Whirpool, frigider, cuptor electric si plita pe gaz. Finisajele sunt de buna calitate, apartamentul fiind dotat cu tamplarie PVC cu 5 camere si 3 foi de sticla, centrala termica proprie, calorifere, aer conditionat in living, parchet laminat, gresie si faianta. Baia dispune de cada si geam pentru aerisire naturala. Apartamentul este izolat termic la exterior, ceea ce contribuie la eficienta energetica ridicata si la costuri reduse pentru consumul de gaze. Este o locuinta confortabila, moderna si bine intretinuta, ideala pentru o familie care isi doreste un spatiu primitor si functional. Valoarea de achizitie a apartamentului este de 119.000 euro negociabil. ID intern: 3067.

Apartament 3 camere | Etaj 4/10 | Bulevardul Mihai Viteazul
Apartament 3 camere | Etaj 4/10 | Bulevardul Mihai Viteazul Hipodrom III, Sibiu
124 950 €
1 922 € pentru m²
3-cam 65 m² 4/10 p

MAAC Imobiliare vă propune spre vânzare un apartament cu 3 camere, situat la etajul 4/10, intr-un bloc de pe Bulevardul Mihai Viteazul. Compartimentarea apartamentului: hol spațios, bucătărie mobilată / utilată, sufragerie semimobilată ( recent renovată, cu acces la balcon ), două dormitoare decomandate ( recent renovate ), două băi ( una principală, dotată cu cadă și una de serviciu ), balcon deschis, boxă pentru depozitare. Ideala atât pentru reședință, cât și pentru investiție. În imediata apropiere se regăsesc magazine alimentare, spații comerciale și transport public. Pentru mai multe detalii sau vizionări, vă rugăm să specificați telefonic că sunteți interesat/ă de anunțul cu ID: CP2797848.

Apartament 3 camere - etajul 3 - 2 bai - 92 mp - B-dul Mihai Viteazu
Apartament 3 camere - etajul 3 - 2 bai - 92 mp - B-dul Mihai Viteazu Strand I, Sibiu
115 000 €
1 250 € pentru m²
3-cam 92 m² 3 p

Oferim spre vanzare un apartament, la etajul 3, intr-un bloc cu 2 lifturi, construit in anul 2015, compus din living + bucatarie, 2 dormitoare, 2 bai, hol, balcon, in suprafata utila de 92 mp + balcon de 10 mp. Imobilul este la stadiul de alb, asa cum reiese din poze, situat in Sibiu, zona Mihai Viteazu - Lidl, aproape Piata Rahovei, magazinele Lidl, MegaImage, Dedeman, scoli, biserica, statii de autobuz. Pretul este 115.000 euro (TVA 21% inclus in pret)

Apartamet 3 camere - 2 Bai - Mobilat si utilat - Ready to Move
Apartamet 3 camere - 2 Bai - Mobilat si utilat - Ready to Move Strada Mihai Viteazul, Selimbar, Sibiu
145 000 €
2 266 € pentru m²
3-cam 64 m² 2/2 p

Apartament 3 camere - 2 băi - Totul Nou - Predare exact ca in fotografii Locuinta moderna, amplasată într-o zona liniștita din Șelimbăr! Construcție nouă, cu finisaje de calitate, ofera standarde ridicate de calitate și design. Localizat la doar câteva minute de Primăria Șelimbăr, școală, grădiniță, magazine, farmacie și alte puncte de interes cu acces facil către DN1, Autostrada A1 și Shopping City Sibiu. Compartimentat astfel : - hol, - living + bucătărie open-space bine delimitată, - 2 dormitoare, - 2 băi, *Suprafață utilă 64 mp + 4 mp balcon Avantajele imobilului: - Încălzire în pardoseală pe toată suprafața - Aer condiționat (AC) instalat - Mobilier realizat la comandă, electrocasnice complet noi - Iluminat LED în întregul apartament - Bucătărie complet echipată: combină frigorifică încorporată, cuptor, plită electrică, hotă, mașină de spălat vase Calitate superioară a constructiei cu: - Cărămidă Porotherm - Tâmplărie PVC Salamander, 5 camere și 3 foi de sticlă - izolare termică și fonică excelentă Preț: 145.000 € (include loc de parcare) Predare exact ca în fotografii - disponibil imediat! Programează o vizionare și fă primul pas către noul tău cămin!

Apartamet 3 camere - Decomandat - Mobilat si Utilat
Apartamet 3 camere - Decomandat - Mobilat si Utilat Strada Mihai Viteazul, Selimbar, Sibiu
140 000 €
2 090 € pentru m²
3-cam 67 m² 2/2 p

Apartamet 3 camere - Bucatarie separata - Totul Nou Alegeți apartamentul ideal într-una dintre cele mai linistite zone din Selimbar! Constructie noua 2024, iar renovarile interioare sunt actuale in 2025. La doar câteva minute de Primaria Selimbar, farmacie, magazine, scoala și gradinita, astfel încât aveți acces la toate facilitățile de care aveți nevoie. Acest imobil cu 3 camere dispune de tot ceea ce aveți nevoie și se potrivește perfect cu nevoile și dorințele dvs. Cu o suprafață utilă de 67 mp, acest apartament are o compartimentare ideală, cu un hol, living, bucătărie separata, 2 dormitoare, 1 baie și iesire pe balcon. Apartamentul beneficiaza de incalzire in pardoseala pe intreaga suprafata. Tot mobilierul este facut la comanda si electrocasnicele sunt noi, iar iluminatul este de tip Led în întregul apartament. Beneficiaza de o calitate ridicată a materialelor de construcție, inclusiv caramida Porotherm și tamplaria PVC Salamader cu 5 camere și 3 foi de sticlă, acesta constituiind un avantaj termic considerabil. Preț: 140.000 Euro * include un loc de parcare Predarea se face exact ca în poze și este disponibilă imediat. Programează o intalnire si fii primul care isi vede visul implinit!

Apartament de vanzare 51mpu 3 camere zona Mihai Viteazul Sibiu
Apartament de vanzare 51mpu 3 camere zona Mihai Viteazul Sibiu Hipodrom I, Sibiu
103 000 €
2 020 € pentru m²
3-cam 51 m² 4/5 p

Apartament 3 camere de vanzare, semidecomandat, 51 mp, zona Mihai Viteazul, Sibiu. Avantaje majore ale acestui apartament: • Locatie ferita de aglomeratie; • 2 balcoane; TABOO Imobiliare propune un apartament de vanzare cu 3 camere, semidecomandat, situat in localitatea Sibiu, zona Mihai Viteazul, aflat la etajul 4 intr -un imobil tip bloc cu regim de inaltime pe Parter + 5 Etaje; anul constructiei 2007, structura caramida. Suprafata utila de 51 mp + 2 balcoane de 12 mp ambele. • Hol; • Bucatarie; • Baie; • Living cu balcon; • Dormitor; • Dormitor cu balcon; • Usa intrare: metal; • Usi interioare: celulare; • Tamplarie ferestre: pvc, termopan; • Pereti: vopsea lavabila, faianta; • Podele: parchet, gresie. • Bucatarie: mobilata, utilata; • Mobilat: complet; • Utilitati: curent electric, apa, canalizare, gaz, catv, telefon, acces internet, fibra optica; • Izolatii: exterior, bloc izolat termic; • Contorizare: apometre, contor gaz, contor curent electric, contorizare separata; • Caracteristici bloc: interfon, lift. Apartamentul se vinde mobilat si utilat cu: aragaz, cuptor, hota, masina de spalat rufe si frigider cu congelator. Incalzirea se realizeaza prin centrala proprie si calorifere. Se accepta ca si modalitate de plata surse proprii sau credit bancar. Pret: 103.000€ Sună-ne acum și află detalii despre această proprietate de vanzare din Sibiu, dar și despre alte proprietăți potrivite pentru tine.

Apartament de vanzare 3 camere 50 mp utili zona Mihai Viteazul
Apartament de vanzare 3 camere 50 mp utili zona Mihai Viteazul Trei Stejari, Sibiu
79 900 €
1 598 € pentru m²
3-cam 50 m² 4 p

Apartament 3 camere de vanzare, semidecomandat, 50 mp, zona Mihai Viteazul, Sibiu. Avantaje majore ale acestui apartament: • Pivnita inscrisa in acte • Pretabil investitie sigura • Parcare extra pentru vizitatori • Locatie ferita de aglomeratie, semidecomandat, situat in localitatea Sibiu, aflat la etajul 4 intr -un imobil tip bloc cu regim de inaltime Demisol+ Parter + 4 Etaje; anul constructiei 1980, structura caramida. Suprafata utila de 50 mp + balcon de 4 mp • Hol; • Bucatarie; • Baie; • Living cu balcon; • 2 Dormitoare; • Hol intermediar; • Usa intrare: metal; • Usi interioare: celulare; • Tamplarie ferestre: pvc, termopan; • Pereti: vopsea lavabila, faianta; • Podele: parchet, gresie. • Bucatarie: nemobilata, neutilata • Mobilat: nemobilat; • Utilitati: curent electric, apa, canalizare, gaz, catv, fibra optica; • Izolatii: exterior; • Contorizare: apometre, contor gaz, contor curent electric; • Caracteristici bloc: interfon, acoperis. Apartamentul se vinde nemobilat si neutilat. Incalzirea se realizeaza prin centrala proprie, calorifere. Se accepta ca si modalitate de plata surse proprii sau credit bancar. Pret: 79.900€ Sună-ne acum și află detalii despre această proprietate de vanzare din Sibiu, dar și despre alte proprietăți potrivite pentru tine.

Apartament 3 camere 76mp cu balcon inchis zona Mihai Viteazul
Apartament 3 camere 76mp cu balcon inchis zona Mihai Viteazul Hipodrom III, Sibiu
71 500 €
941 € pentru m²
3-cam 76 m² 5/5 p

Agentia imobiliara I-Imob va propune spre vanzare un apartament tip mansarda, situat in zona Mihai Viteazul din Sibiu, la etajul 5 5, intr-o locatie linistita, aproape de magazine, scoli, mijloace de transport, centru, parcul Sub Arini si alte puncte de interes. Locuinta are o suprafata utila de aproximativ 76 mp (38 mp pe nivel), fiind compartimentata practic si confortabil pentru o familie sau un cuplu care isi doreste un spatiu luminos si bine organizat. Compartimentare: - Primul nivel: hol la intrare, bucatarie open space cu living, un dormitor, o baie cu cada, balcon inchis si o camara; - Etajul superior (mansarda placata integral in lemn): dormitor spatios, debara si grup sanitar de serviciu. Apartamentul dispune de finisaje calde, pardoseala din parchet, ferestre termopan, incalzire prin centrala proprie, si se vinde mobilat si utilat. Imobilul beneficiaza de o scara curata si ingrijita, cu acces facil catre principalele artere ale orasului. Pret vanzare: 72.000 Euro - usor negociabil Noi suntem aici pentru a facilita totul, astfel incat lucrurile sa decurga perfect. ID intern: 5453

Mansardă cu 3 camere, 2 băi, 71 mp- zona Rahovei - Mihai Viteazu
Mansardă cu 3 camere, 2 băi, 71 mp- zona Rahovei - Mihai Viteazu Hipodrom I, Sibiu
93 000 €
1 310 € pentru m²
3-cam 71 m² 5/5 p

Vă propunem spre vânzare o mansardă spațioasă și modernă, amplasată chiar în oraș, în zona Rahovei - Mihai Viteazu, o zonă liniștită, dar excelent conectată la toate punctele de interes: magazine, școli, stații de transport, restaurante și centre comerciale. Descrierea locuinței: Apartamentul este dispus pe două niveluri, având o suprafață utilă de 71 mp și o compartimentare practică, care oferă confort și intimitate. Se predă la cheie, finisat modern și pregătit pentru mutare. Nivelul inferior: La intrare se află un living generos cu bucătărie open-space, ideal pentru momentele petrecute în familie, și o baie complet echipată. Nivelul superior: Accesul se face printr-o scară interioară elegantă, care duce spre două dormitoare luminoase și o baie de serviciu, perfecte pentru zona de noapte. Detalii tehnice: Suprafață utilă: 71 mp Compartimentare: semidecomandat Etaj: mansardă, într-un bloc cu 5 etaje Predare la cheie 2 băi (una completă + una de serviciu) Finisaje moderne, atenție la detalii Living spațios cu bucătărie open-space Preț: 93.000 € Această mansardă îmbină confortul unui apartament modern cu avantajele unei locații excelente în oraș, oferind un spațiu perfect pentru o familie tânără sau un cuplu activ care își dorește acces rapid către toate facilitățile urbane. Pentru detalii și vizionări:

Apartament de vanzare 3 camere Sibiu Mihai Viteazul
Apartament de vanzare 3 camere Sibiu Mihai Viteazul Hipodrom III, Sibiu
125 000 €
1 923 € pentru m²
3-cam 65 m² 10/10 p

Agentia imobiliara Inovativ ofera spre vanzare un apartament cu trei camere, decomandat, cu o suprafata de 65 mp, situat la etajul 10 din 10 al unui imobil prevazut cu lift, aflat pe Bulevardul Mihai Viteazul. Apartamentul este compartimentat astfel: o sufragerie, doua dormitoare, bucatarie, baie, hol, balcon. Locuinta se vinde mobilata si utilata cu frigider, aragaz, masina de spalat, centrala proprie. Imobilul este amplasat intr-o zona bine cotata pe piata imobiliara, in imediata vecinatate a multor puncte de interes public, cum ar fi: magazine alimentare, farmacii, biserica, statii pentru mijloacele de transport in comun.

Deschide harta Harta