1 664 obiecte

Apartament de Lux | Tehnologie Sustenabilă & Confort Absolut | Calea C
Apartament de Lux | Tehnologie Sustenabilă & Confort Absolut | Calea C Cisnadie, Sibiu
165 700 €
3 314 € pentru m²
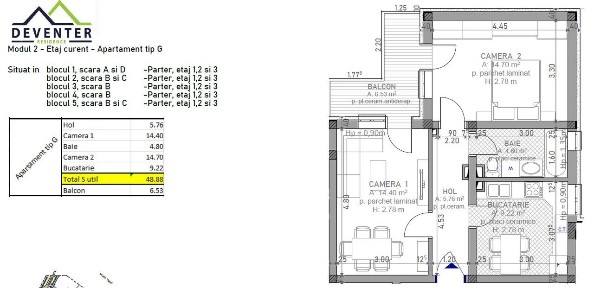
2-cam 50 m² 1/2 p

Vă propunem spre vânzare un apartament cu 2 camere, situat în ceea ce este considerat, fără îndoială, cel mai performant proiect rezidențial nou din Sibiu. Realizat de un dezvoltator local cu o reputație impecabilă, acest imobil redefinește standardele de construcție prin eficiență energetică și finisaje premium. Configurație și Amplasament Apartamentul este poziționat strategic la etajul 1, beneficiind de o orientare cardinală optimă care asigură lumină naturală pe tot parcursul zilei. Spațiul a fost proiectat pentru a oferi un echilibru perfect între funcționalitate și confort vizual. Compartimentare : Living cu bucătărie (pot fi ușor recompartimentate),dormitor,baie,logie Dotări de Excepție (Elemente de Diferențiere) Această proprietate se distinge printr-o listă de dotări tehnice rar întâlnite pe piața locală, menite să maximizeze confortul și să minimizeze costurile de întreținere: Eficiență Energetică: Sistem de încălzire prin pardoseală de înaltă calitate, susținut de o centrală termică pe bloc dotată cu pompă de căldură. Independență și Sustenabilitate: Imobilul este echipat cu panouri fotovoltaice și baterii de stocare, reducând semnificativ amprenta de carbon și cheltuielile comune. Izolație Premium: Tâmplărie de top cu profil în 7 straturi și geam termopan cu 3 foi (tripan), completată de jaluzele de aluminiu acționate electric la toate ferestrele. Parcare Inovatoare: Loc de parcare propriu în sistem subteran supraetajat cu lift, oferind siguranță și protecție vehiculului dumneavoastră. Accesibilitate: Bloc prevăzut cu lift silențios de ultimă generație. Locație și Infrastructură Situat în zona Calea Cisnădiei, apartamentul beneficiază de o locație aerisită, dar extrem de accesibilă: Acces facil direct din șoseaua principală. Infrastructură completă: străzi asfaltate și iluminat public modern. Proximitate față de stațiile de transport în comun, facilitând legătura rapidă cu centrul orașului Sibiu. Stadiu de predare : Bucătărie și baie complet utilate și mobilate cu electrocasnice de calitate, toate în garanție de la producător. Notă: Această proprietate reprezintă o oportunitate rară pentru cei care nu doresc să facă compromisuri în privința calității construcției. Este un apartament construit pentru viitor, folosind cele mai avansate tehnologii disponibile astăzi. Preț și Vizionări: Pentru a descoperi detaliile tehnice complete și a simți calitatea execuției la fața locului, vă invităm să programăm o vizionare.

Apartament cu 2 camere in zona Vasile Aaron din Sibiu
Apartament cu 2 camere in zona Vasile Aaron din Sibiu Vasile Aaron, Sibiu
74 000 €
2 000 € pentru m²
2-cam 37 m² 4/5 p

Va propunem spre vanzare un apartament cu 2 camere nedecomandate amplasat la etaj intermediar al unui imobil din zona Vasile Aaron din Sibiu. Imobilul in care se afla locuinta a fost edificat in 1977, are regimul de inaltime P+4E+M, este izolat la exterior cu polistiren expandat de 10 cm si acoperis tip sarpanta cu invelitoare din tigla. Locuinta se afla la etajul 4, are suprafata utila de 37 mp si este compusa din hol acces, bucatarie, living, baie si dormitor. Dotarile apartamentului au fost actualizate in urma renovarii efectuate in 2020 si constau in tamplarie PVC cu geam termopan, usa de acces din metal, usi interioare din lemn, centrala termica proprie, calorifere din otel, pardoseli placate cu parchet laminat si gresie. De asemenea toate instalatiile au fost renovate. Proprietatea se achizitioneaza complet mobilata si utilata cu frigider, aragaz, masina de spalat rufe, masina de spalat vase, uscator si televizor. Amplasarea imobilului este intr-o zona activa a orasului din care se face accesul facil atat spre centrul orasului cat si spre iesirea la autostrada sau zona comerciala est, de asemenea este bine deservita de magazine de proximitate, scoli si gradinite. Valoarea de achizitie este de 74.000 euro si se poate achizitiona si cu ajutorul unui credit bancar. ID intern: 3446.

Apartament 2 camere Opera Residence
Apartament 2 camere Opera Residence Broscarie, Sibiu
74 900 €
1 742 € pentru m²
2-cam 43 m² 3/6 p

Agenția GRN TOP Invest vă propune spre vânzare un apartament cu 2 camere, situat în Sibiu - zona Industriala Est - Opera Residence. Proprietatea are o suprafață construită de 52 mp, din care 43 mp suprafață utilă. Apartamentul este situat la etajul 3, într-un imobil cu 6 etaje, construit din cadre de beton, izolat termic exterior, bloc cu lift și dotat cu interfon. Compartimentarea este practică și eficientă: hol generos la intrare bucătărie separată, complet mobilată și utilată living dormitor baie cu cadă Finisaje și dotări: gresie și faianță geamuri termopan centrală termică electrocasnice incluse: plită electrica, cuptor electric, hotă, cuptor cu microunde, combină frigorifică Localizare excelentă cu acces rapid către: magazine și supermarketuri piață agroalimentară școli și grădinițe parcuri mijloace de transport în comun Preț de vânzare: 74.900 euro - negociabil. Apartamentul se vinde complet mobilat și utilat, exact ca în poze. Se acceptă plată cash sau credit ipotecar. ID ofertă: GRN2212

Apartament 2 Camere Valea Aurie
Apartament 2 Camere Valea Aurie Strand I, Sibiu
107 000 €
2 229 € pentru m²
2-cam 48 m² 3/4 p

Va prezentam un nou imobil de vanzare, tip apartament cu 2 camere situat in zona Valea Aurie. Suprafata imobilului este de 48 mp utili, 60 mp construiti, balcon de 4 mp si este ca si compartimentare: decomandat. Imobilul este situat la etajul 3 din 4. Apartamentul este alcatuit din:1 dormitor, 1 baie, 1 bucatarie mobilata, utilata, 1 balcon si se preda complet. Cladirea este de tip bloc pe structura de caramida si este construita in 1980 si renovata in si beneficiaza de interfon Locuinta dispune de curent electric, apa, canalizare, gaz, catv, acces internet, fibra optica. Incalzirea se realieaza prin centrala proprie, calorifere. Blocul dispune de izolatie la bloc izolat termic. Pe interior imobilul este finisat cu vopsea lavabila, faianta. -podelele sunt finisate cu parchet, gresie. -ferestrele sunt din pvc, termopan. -usa de intrare din metal. -usile din interior din lemn. Suntem oricand dispuşi sa oferim un tur de vizionare pentru a demonstra ferm realitatea descrisa.

Apartament 2 Camere de Vanzare in Opera Residence
Apartament 2 Camere de Vanzare in Opera Residence Broscarie, Sibiu
74 900 €
1 742 € pentru m²
2-cam 43 m² 3/6 p

Va prezentam un nou imobil de vanzare, tip apartament cu 2 camere situat in zona Broscarie. Suprafata imobilului este de 43 mp utili, 55 mp construiti si este ca si compartimentare semidecomandat. Imobilul este situat la etajul 3 din 6. Apartamentul este alcatuit din:1 dormitor, 1 living, 1 baie, 1 bucatarie mobilata, utilata si se preda complet. Cladirea este de tip bloc si este construita in 2008 si renovata in 2022 pe structura de caramida si beneficiaza de interfon, lift. Locuinta dispune de curent electric, apa, canalizare, gaz, catv, telefon, acces internet, fibra optica. Incalzirea se realieaza prin centrala proprie, calorifere. Blocul dispune de izolatie la exterior, bloc izolat termic. Pe interior imobilul este finisat cu vopsea lavabila, faianta. -podelele sunt finisate cu parchet, gresie. -ferestrele sunt din pvc, termopan. -usa de intrare din metal. -usile din interior din lemn. Suntem oricand dispusi să oferim un tur de vizionare pentru a demonstra ferm realitatea descrisa.

Apartament 2 camere cartier Strand
Apartament 2 camere cartier Strand Strand I, Sibiu
85 000 €
1 889 € pentru m²
2-cam 45 m² 4/4 p

P18661 Smart Imobiliare propune spre vânzare un apartament cu 2 camere tip mansarda din constructie pe un singur nivel, situat în Sibiu, în zona Strand, pe strada Maramuresului, având o suprafață utilă de aproximativ 45 mp (54 mp suprafață construită). Apartamentul este amplasat la etaj 5 al unui imobil cu 5 niveluri și se remarcă prin compartimentarea decomandat și poziționarea într-o zonă cu acces facil către oras. Imobilul în care se află apartamentul este de tip bloc, edificat în anul 2000, pe structură caramida, cu eficiență energetică. ridicată Compartimentarea este una practică, cu o delimitare clară între zona de zi și zona de noapte. Apartamentul cuprinde living, 1 dormitor, bucătărie, baie, debara și hol de acces. Spațiile exterioare includ 1 balcon cu o suprafață totală de aproximativ 7 mp oferind locuri suplimentare pentru relaxare sau depozitare. La nivel de dotări, proprietatea beneficiază de curent electric, apa, canalizare, gaz, sistem de încălzire prin centrala proprie, calorifere, climatizare aer conditionat, izolații exterioare bloc izolat termic, ferestre pvc, termopan, pardoseli parchet, gresie, pereți finisați cu vopsea lavabila, faianta, ușă de intrare metal și uși de interior lemn. Apartamentul se vinde complet mobilat aspect care poate reprezenta un avantaj pentru viitorul proprietar, fie că dorește să îl locuiască imediat, fie să îl închirieze. În zonă există posibilitatea de parcare prin locuri publice în funcție de disponibilitate, iar amplasarea oferă acces rapid către puncte importante din Sibiu. Prin poziționare, suprafață și dotări, acest apartament este potrivit pentru [familie/cuplu/investitor] care își dorește un apartament într-o zonă căutată din Sibiu, cu acces bun și confort sporit. Poate reprezenta atât o locuință stabilă pe termen lung, cât și o investiție bună, ușor de valorificat prin închiriere. Prețul de promovare este de 85.000€ /negociabil în funcție de condițiile stabilite împreună cu proprietarul. Pentru mai multe detalii despre această proprietate și pentru programarea unei vizionări, vă rugăm să contactați consultantul responsabil. Smart Imobiliare vă oferă consultanță completă pe tot parcursul tranzacției, de la prima vizită și până la predarea cheilor.

Doua garsoniere in regim hotelier zona Ultracentral
Doua garsoniere in regim hotelier zona Ultracentral Centrul Istoric, Sibiu
102 000 €
2 757 € pentru m²
2-cam 37 m²

Smart Imobiliare propune spre vanzare doua garsoniere cu intrari separate care functioneaza in regim hotelier, situate in Centrul Istoric al orasului Sibiu.Spatiile au schimbare de destinatie in comercial si sunt dispuse una sub alta in acelasi imobil, una la parter si una la etaj.Garsonierele au o suprafata utila de 37 mp, sunt complet renovate si se vand utilate si mobilate cu obiecte de calitate premium, exact ca in imagini. Achizitia lor reprezinta o oportunitate excelenta de investitie atat rezidentiala cat si ca regim hotelier. Pentru mai multe detalii si programarea unei vizionari va rugam sa specificati ID ul P18668 Prețul de promovare este de 102.000€ /negociabil în funcție de condițiile stabilite împreună cu proprietarul. Pentru mai multe detalii despre această proprietate și pentru programarea unei vizionări, vă rugăm să contactați consultantul responsabil. Smart Imobiliare vă oferă consultanță completă pe tot parcursul tranzacției, de la prima vizită și până la predarea cheilor.

Apartament 2 camere de vanzare decomandat 54 mp zona Vasile Aaron
Apartament 2 camere de vanzare decomandat 54 mp zona Vasile Aaron Zona Industriala Est, Sibiu
110 000 €
2 037 € pentru m²
2-cam 54 m²

Apartament 2 camere de vanzare, decomandat, 54 mp, zona Vasile Aaron, Sibiu. Avantaje majore ale acestui apartament: • Zona foarte buna • Pretabil investitie sigura • Posibilitate de schimbare destinatie in spatiu comercial TABOO Imobiliare propune un apartament de vanzare cu 2 camere, decomandat, situat in localitatea Sibiu, zona Vasile Aaron, aflat la etajul P intr -un imobil tip bloc cu regim de inaltime pe Parter + 2 Etaje + Mansarda; anul constructiei 1976, structura caramida. Suprafata utila de 54 mp. • Hol; • Bucatarie; • Baie; • Living; • Dormitor; • Camara; • Debara; • Usa intrare: metal; • Usi interioare: celulare; • Tamplarie ferestre: pvc, termopan; • Pereti: vopsea lavabila, faianta; • Podele: parchet, gresie. • Bucatarie: mobilata, utilata; • Mobilat: complet; • Utilitati: curent electric, apa, canalizare, gaz, catv, telefon, acces internet, fibra optica; • Izolatii: exterior, bloc izolat termic; • Contorizare: apometre, contor gaz, contor curent electric; • Caracteristici bloc: interfon, acoperis. Apartamentul se vinde mobilat si utilat cu: aragaz, cuptor, masina de spalat rufe, frigider cu congelator. Incalzirea se realizeaza prin centrala proprie, calorifere. Se accepta ca si modalitate de plata surse proprii sau credit bancar. Pret: 110.000€ Sună-ne acum și află detalii despre această proprietate de vanzare din Sibiu, dar și despre alte proprietăți potrivite pentru tine.

Apartament de vanzare 2 camere parcare la subteran zona Terezian Sibiu
Apartament de vanzare 2 camere parcare la subteran zona Terezian Sibiu Terezian, Sibiu
135 000 €
2 700 € pentru m²
2-cam 50 m² 3 p

Apartament 2 camere de vanzare, decomandat, 50 mp, zona Terezian, Sibiu. Avantaje majore ale acestui apartament: • Un loc de parcare la subteran inclus in pret • Boxa la subsol • Pretabil investitie sigura • Locatie ferita de aglomeratie TABOO Imobiliare propune un apartament de vanzare cu 2 camere, decomandat, situat in localitatea Sibiu, zona Terezian, aflat la etajul 3 intr -un imobil tip bloc cu regim de inaltime pe Parter + 3 Etaje; anul constructiei 2013, structura caramida. Suprafata utila de 50 mp + balcon de 4 mp. • Hol; • Living cu bucatarie si balcon; • Dormitor; • Baie. • Usa intrare: metal; • Usi interioare: celulare; • Tamplarie ferestre: pvc, termopan; • Pereti: vopsea lavabila, faianta; • Podele: parchet, gresie. • Bucatarie: mobilata, utilata; • Mobilat: complet; • Utilitati: curent electric, apa, canalizare, gaz, catv, telefon, acces internet, fibra optica; • Izolatii: exterior, bloc izolat termic; • Contorizare: apometre, contor gaz, contor curent electric; • Caracteristici bloc: interfon, acoperis, curte comuna, telecomanda poarta acces auto. Apartamentul se vinde mobilat si utilat cu: plita electrica, cuptor electric, masina de spalat rufe, masina de spalat vase, frigider cu congelator, cuptor cu microunde. Incalzirea se realizeaza prin centrala proprie si calorifere. Se accepta ca si modalitate de plata surse proprii sau credit bancar. Pret: 135.000€ Sună-ne acum și află detalii despre această proprietate de vanzare din Sibiu, dar și despre alte proprietăți potrivite pentru tine.

Apartament de vanzare 75mp 2 camere decomandate 2 bai B-dul Victoriei
Apartament de vanzare 75mp 2 camere decomandate 2 bai B-dul Victoriei Centrul Istoric, Sibiu
134 800 €
1 797 € pentru m²
2-cam 75 m² 2 p

Apartament 2 camere de vanzare, decomandat, 75 mp, zona Central, Sibiu. TABOO Imobiliare propune un apartament de vanzare cu 2 camere, decomandat, situat in localitatea Sibiu, zona Central, aflat la etajul intermediar 2 intr -un imobil tip casa/vila cu regim de inaltime pe Parter + 3 Etaje; anul constructiei 1957, structura caramida. Suprafata utila de 75 mp. • Hol; • Dormitor; • Baie; • Debara; • WC de serviciu; • Bucatarie; • Living. • Usa intrare: lemn; • Usi interioare: lemn; • Tamplarie ferestre: lemn; • Pereti: vopsea lavabila, faianta; • Podele: parchet, gresie. • Bucatarie: mobilata, partial utilata • Mobilat: complet; • Utilitati: curent electric, apa, canalizare, gaz, catv; • Contorizare: apometre, contor gaz, contor curent electric, contorizare separata; • Caracteristici casa/vila: interfon, acoperis, curte comuna. Apartamentul se vinde mobilat si partial utilat cu: masina de spalat rufe, frigider cu congelator. Incalzirea se realizeaza prin soba teracota. Se accepta ca si modalitate de plata surse proprii sau credit bancar. Pret: 134.800€ Sună-ne acum și află detalii despre această proprietate de vanzare din Sibiu, dar și despre alte proprietăți potrivite pentru tine.

Apartament cu balcon și loc de parcare Sibiu
Apartament cu balcon și loc de parcare Sibiu Centrul Civic, Sibiu
108 000 €
2 000 € pentru m²
2-cam 54 m² 3/3 p

Acest apartament de 54 mp, construit în 2020, se află în Kastsni Residence din Sibiu. Dispune de 2 camere, 2 balcone, ideal pentru relaxare. Beneficiază de centrala pe gaz și aer condiționat pentru confortul tău. Locuința este gata de utilizare și include mobilier, mașină de spălat, frigidier și alte electrocasnice. Siguranța este asigurată de ușă metalică și interfon. Proprietatea se vinde la prețul de 108.000 EUR.

2 Camere - 60.7 mp - Centru - Istoric - Michael - Weiss
2 Camere - 60.7 mp - Centru - Istoric - Michael - Weiss Strada Michael Weiss, Centrul Vechi, Brasov
125 000 €
2 083 € pentru m²
2-cam 60 m²

Apartament 2 camere de vanzare in Centrul Istoric Brasov, Str. Michael Weiss - locatie PREMIUM, zona cu cerere ridicata. Suprafata utila: 60.7 mp Semi-decomandat Pivnita Necesita renovare - ideal pentru amenajare moderna Liber de sarcini Perfect pentru INVESTITIE, AIRBNB, REGIM HOTELIER sau inchiriere pe termen lung. Randament foarte bun datorita pozitiei ultracentrale. Pret: 125.000 euro NEGOCIABIL Comision standard 2% Te astept la vizionare!

Apartament cochet cu predare imediata in Doamna Stanca Sibiu
Apartament cochet cu predare imediata in Doamna Stanca Sibiu Hipodrom I, Sibiu
96 000 €
2 400 € pentru m²
2-cam 40 m²

Apartament 2 camere de vanzare, decomandat, 40 mp, zona Doamna Stanca, Sibiu. Indiferent cine va fi cumparatorul, un lucru e sigur: se va bucura de alegere. Apartamentul este superb. Modern, elegant, frumos, te face sa te gandesti ca viata e frumosa si merita traita din plin. Cui i se potriveste apartamentul? Aici se va bucura de el si o familie cu copil, dar si un cuplu. Sau cineva care cauta pentru regim hotelier. Iti doresti un bloc nou, cu loc de parcare propriu si un apartament care sa fie modern? Apartamentul este compartimentat decomandat si este compus din: dormitor, un living cu bucatarie deschisa, o baie cu geam de aerisire, un hol mare cu spatiu pentru cuier si pantofar si un balcon deschis de 6 mp. • Un loc de parcare inclus in pret • Pretabil investitie sigura • Parcare extra pentru vizitatori • Locatie ferita de aglomeratie TABOO Imobiliare propune un apartament de vanzare cu 2 camere, decomandat, situat in localitatea Sibiu, zona Doamna Stanca, aflat la etajul Parter inalt intr -un imobil tip bloc cu regim de inaltime pe Parter + 3 Etaje; anul constructiei 2022, structura caramida. Suprafata utila de 40 mp + balcon de 6 mp. • Hol la intrare mare cu spatiu pentru cuier; • Bucatarie deschisa; • Baie cu geam de aerisire; • Living cu balcon; • Dormitor cu pat matrimonial; • Debara; • Usa intrare: metal; • Usi interioare: celulare; • Tamplarie ferestre: pvc, termopan; • Pereti: vopsea lavabila, faianta; • Podele: parchet, gresie. • Bucatarie: mobilata, utilata; • Mobilat: complet; • Utilitati: curent electric, apa, canalizare, gaz, catv, telefon, acces internet, fibra optica; • Izolatii: exterior, bloc izolat termic; • Contorizare: apometre, contor gaz, contor curent electric, contorizare separata; • Caracteristici bloc: interfon, acoperis. Apartamentul se vinde mobilat si utilat cu: plita pe gaz, cuptor, hota, masina de spalat rufe, frigider cu congelator, tv, cuptor cu microunde. Incalzirea se realizeaza prin centrala proprie, incalzire pardoseala. Se accepta ca si modalitate de plata surse proprii sau credit bancar. Pret: 96.000€ Sună-ne acum și află detalii despre această proprietate de vanzare din Sibiu, dar și despre alte proprietăți potrivite pentru tine.

Apartament 2 Camere | Decomandat | Loc de parcare | O.Goga
Apartament 2 Camere | Decomandat | Loc de parcare | O.Goga Selimbar, Sibiu
90 000 €
1 731 € pentru m²
2-cam 52 m²

MAAC Imobiliare vă propune spre vânzare un apartament modern cu 2 camere, complet mobilat și utilat, cu finisaje contemporane, situat într-o zonă liniștită, ideal pentru locuire proprie sau investiție. Apartamentul este luminos și primitor, evidențiindu-se prin amenajarea modernă, spațiile aerisite și mobilierul nou, ales pentru funcționalitate și confort. Compartimentarea este practică și eficientă, adaptată unui stil de viață urban. Caracteristici principale: -living spațios -dormitor confortabil -bucătărie complet echipată -baie complet utilată -complet mobilat: canapea extensibilă, pat matrimonial, masă de dining, dulapuri spațioase -electrocasnice noi: frigider, mașină de spălat, cuptor, plită, centrală termică proprie -pardoseală din gresie tip parchet și laminat -geamuri termopan -iluminat LED modern Locuința este gata pentru mutare imediată, fiind potrivită pentru o persoană sau un cuplu care își dorește confort, liniște și un apartament amenajat într-un stil modern. Pentru mai multe detalii și programarea unei vizionări, vă rugăm să menționați numărul CP2795836 la telefon.

Apartament 2 camere | Parter | Terasă | Șelimbăr
Apartament 2 camere | Parter | Terasă | Șelimbăr Selimbar, Sibiu
132 000 €
2 095 € pentru m²
2-cam 63 m²

MAAC Imobiliare vă propune spre vânzare un apartament spațios cu 2 camere, situat la parter. Caracteristici principale • Suprafață utilă: 69,8 mp • etaj: parter • compartimentare generoasă și practică • balcon + terasă • spațiu de depozitare suplimentar (~3 mp) Compartimentare • 2 camere spațioase • bucătărie separată • baie cu geam (aerisire naturală) • 2 holuri • balcon cu acces către terasă Dotări și finisaje • centrală termică proprie • aer condiționat • bucătărie complet echipată • mașină de spălat rufe • uscător de rufe • se vinde complet mobilat și utilat Avantaje • suprafață peste medie pentru 2 camere • compartimentare eficientă • spații de depozitare suplimentare • ideal pentru locuit sau investiție • locuință gata de mutat Pentru mai multe detalii sau pentru programarea unei vizionări, vă rugăm să ne contactați și să menționați ID-ul proprietății: CP3015266.

Apartament cu 2 camere | mobilat si utilat modern | Calea Turnisorului
Apartament cu 2 camere | mobilat si utilat modern | Calea Turnisorului Turnisor, Sibiu
125 000 €
2 315 € pentru m²
2-cam 54 m² 2/4 p

Apartament cu 2 camere de vanzare in Sibiu, Calea Turnisorului - Garden City - etaj 2 - parcare privata Luana Imobiliare Sibiu va prezinta la vanzare un apartament modern, amenajat complet, intr-un ansamblu rezidential recent construit ! Apartamentul de vanzare in Sibiu are o suprafata utila de 53.8 mp si este compus dintr-o incapere open-space compartimentata modern si confortabil in zona de zi si bucatarie, dormitor, baie si balcon cu acces din ambele incaperi. Apartamentul este pozitionat la etajul 2 al unui bloc cu regim de inaltime P+4 dotat cu lift. Loc de parcare: Apartamentul dispune de un loc de parcare privat. Finisaje incluse: Apartamentul se preda complet mobilat si utilat, finisat cu materiale de calitate si pregatit pentru mutare imediata. Acesta dispune de usa metalica la intrare, centrala termica cu calorifere si tamplarie PVC cu 3 foi de sticla si 5 camere de izolare, pentru un plus de confort termic si fonic. Locuinta este amenajata cu mult bun gust, iar intregul mobilier si electrocasnicele sunt incluse in pret. Spatiul a fost inteligent organizat, fiind integrate zone practice de birou si solutii eficiente de depozitare, ideale pentru un stil de viata modern. La exterior, totul se preda finisat la cheie complet: casa scarii amenajata, drumuri, parcari si cai de acces pavate; balcoane amenajate cu gresie de exterior granit si balustrade de sticla securizata; Localizare: Apartamentul de vanzare in Sibiu face parte din Ansamblul Rezidential Garden City care este amplasat in Sibiu, zona Calea Turnisorului, la o distanta de 8 min de Piata Mare si 6 min de Zona Industriala Vest si centura ocolitoare. In imediata proximitate sunt statii de mijloace de transport, magazine, scoli gradinite. ID intern: 1601.

Apartament 2 camere mobilat-utilat, etaj 2, loc de parcare, Turnisor
Apartament 2 camere mobilat-utilat, etaj 2, loc de parcare, Turnisor Sibiu
125 000 €
2 315 € pentru m²
2-cam 54 m² 2/3 p

Va oferim spre vanzare, CU COMISION 0, un apartament cu 2 camere, situat in zona Turnisor - ansamblul Garden City, intr-o zona rezidentiala linistita, cu acces facil catre centrul orasului si puncte de interes. Suprafata utila: 54 mp Etaj: 2 din 4 (regim de inaltime P+3+etaj retras) Complet mobilat si utilat Spatii aditionale: balcon de aprox 3 mp An constructie: 2023 Loc de parcare individual inclus in pret. Compartimentare eficient gandita, ce include: Hol de acces Living generos cu acces spre balcon Bucatarie deschisa complet mobilata si utilata Dormitor cu acces spre balcon Baie dotata cu dus de tip walk-in Balcon ideal pentru relaxare * Apartamentul se vinde mobilat si utilat, precum se vede in fotografii. * Este potrivit atat ca si locuinta proprie, cat si ca investitie. Apartamentul este amenajat modern, luminos si ofera un ambient confortabil si primitor. Se afla intr-un ansamblu rezidential nou, aproape de centrul orasului, dar totodata ferit de aglomeratie si agitatie, asigurand intimitate si liniste. Pret: 125.000 Euro - COMISION 0 Tel:

STUDIO ULTRA CENTRAL 37MP MODERN
STUDIO ULTRA CENTRAL 37MP MODERN Centrul Istoric, Sibiu
77 500 €
2 095 € pentru m²
2-cam 37 m² 1/1 p

VIANTO PROPERTIES vă propunem spre vânzare un studio elegant, situat într-o zonă ultra centrală și exclusivistă din inima Sibiului - o alegere ideală atât pentru locuire, cât și pentru investiție sigură. Proprietatea este complet mobilată și amenajată modern, fiind pregătită pentru mutare imediată. Spațiul este optim compartimentat, oferind confort și funcționalitate, iar finisajele de calitate contribuie la un ambient plăcut și contemporan. Bucătăria este complet utilată, iar baia este amenajată cu bun gust, folosind materiale moderne. Studio-ul beneficiază de centrală proprie, aer condiționat și geamuri termopan noi, asigurând un confort termic optim pe tot parcursul anului. În plus, imobilul se află într-o curte curată și liniștită, un avantaj rar pentru o locație atât de centrală. Datorită poziționării excepționale, proprietatea este pretabilă atât pentru închiriere în regim hotelier sau pe termen lung, cât și pentru locuință personală, oferind un randament investițional foarte bun. O oportunitate rară într-o zonă premium a orașului!

2 camere spațios I 57 mp I Balcon I La cheie I Șelimbăr
2 camere spațios I 57 mp I Balcon I La cheie I Șelimbăr Selimbar, Sibiu
116 990 €
2 052 € pentru m²
2-cam 57 m²

MAAC Imobiliare vă propune spre vânzare un apartament modern cu 2 camere decomandate, situat în Sibiu, ideal atât pentru locuit, cât și pentru investiție. Suprafață utilă: 57 mp Logie: 4 mp - potrivită pentru relaxare Compartimentare: Living luminos, cu spațiu generos Dormitor confortabil Bucătărie separată Baie modernă, complet utilată Hol spațios, cu posibilități de depozitare Logie de 4 mp Apartamentul se predă la cheie, cu finisaje moderne și materiale de calitate, fiind pregătit pentru mutare imediată. Compartimentarea decomandată oferă un plus de confort, intimitate și o organizare eficientă a spațiului. Locație și avantaje: Situat într-o zonă rezidențială în plină dezvoltare Acces rapid către Shopping City Sibiu Stație de autobuz în apropiere Acces facil către principalele puncte de interes din oraș Parcare: Loc de parcare disponibil la prețul de 5.000 euro (se achiziționează separat) Predare: Estimată pentru perioada iunie-iulie Modalități de plată: Cash Credit bancar Pentru mai multe informații și programarea unei vizionări, vă rugăm să specificați ID: CP3027459.

Apartament 2 camere de vanzare mobilat balcon Doamna Stanca Sibiu
Apartament 2 camere de vanzare mobilat balcon Doamna Stanca Sibiu Selimbar, Sibiu
99 000 €
2 357 € pentru m²
2-cam 42 m² 2/3 p

Apartament 2 camere de vanzare, decomandat, 42 mp, zona Doamna Stanca, Sibiu. TABOO Imobiliare propune un apartament de vanzare cu 2 camere, decomandat, situat in localitatea Sibiu, zona Doamna Stanca, aflat la etajul intermediar 2 intr-un imobil tip bloc cu regimul de inaltime parter+3 etaje, anul constructiei 2022, pe structura din caramida. Suprafata utila de 42 mp+balcon de 2 mp. • Hol; • Living cu bucatarie open space; • Baie; • Dormitor; • Balcon. • Usa intrare: metal; • Usi interioare: lemn; • Tamplarie ferestre: pvc, termopan; • Pereti: vopsea lavabila, faianta; • Podele: parchet, gresie. • Bucatarie: mobilata, utilata; • Mobilat: complet; • Utilitati: curent electric, apa, canalizare, gaz, catv, acces internet, fibra optica; • Izolatii: exterior, bloc izolat termic; • Contorizare: apometre, contor gaz, contor curent electric, contorizare separata; • Caracteristici bloc: interfon, acoperis. Apartamentul se vinde mobilat si utilat cu: plita electrica, cuptor electric, hota, masina de spalat rufe, masina de spalat vase, frigider cu congelator, cuptor cu microunde. Incalzirea se realizeaza prin centrala proprie si calorifere. Se accepta ca si modalitate de plata surse proprii sau credit bancar. Pret: 99.000€ Sună-ne acum și află detalii despre această proprietate de vanzare din Sibiu, dar și despre alte proprietăți potrivite pentru tine.

Deschide harta Harta