3 810 obiecte

Объект RO-1305039998 не найден. Возможно, он удалён по истечению срока давности, либо находится в процессе публикации.

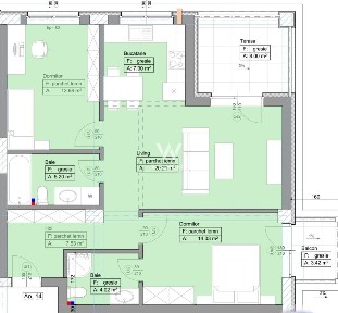
Apartament cu 3 camere decomandate balcon si parcare subterana
Apartament cu 3 camere decomandate balcon si parcare subterana Centrul Civic, Sibiu
188 000 €
2 848 € pentru m²
3-cam 66 m² 3/4 p

Va propunem spre vanzare un apartament cu 3 camere decomandate ce face parte din Ansamblul Urban 42, pozitionat la etajul 3 din 4, cu suprafata totala de 88 mp, situat in Sibiu in imediata apropiere a Centrului Vechi. Apartamentul are 66,20 mp utili si este compus din camera de zi cu bucatarie in suprafata de 33.50 mp, doua dormitoare de 10.50 mp si respectiv 11.50 mp, o baie de 4.90, toaleta de sevici 3.10 mp si un hol de 2.70 mp. Separat de suprafata utila aprtamentul dispune de un balcon cu suprafata de 9.00 mp in care accesul se face din toate incaperile locuintei. In pretul afisat este inclusa o boxa si un loc de parcare amenajat, ambele situate in subsolul imobilului. Locuinta este intabulata si finisata la stadiul de alb cu urmatoarele dotari standard: - Usa de metal la intrarea în apartamente placate cu panou MDF, cu sisteme complexe de protecţie si cablaj smart house; - Pereti tencuiti, gletuiti si zugraviti cu lavabila alba; - Sapa autonivelanta semiuscata elicopterizata; - Instalatie de incalzire prin pardoseală cu sistem inteligent de control, termostate wireless, centrala proprie in condensatie si detector gaz; - Sisteme elecrice smart cu tablou general si sigurante pentru consumatorii de putere; - Instalatii pentru curentii slabi Internet, Telefon, TV; - Tâmplărie PVC7 Stars ( 7 camere de aer in toc, 7 camere de aer in cercevea ) cu 3 garnituri de etansare, culoarea gri antracit exterior si alb la interior cu geamuri de tip termopan cu 3 foi de sticla, feronerie Roto NX, glafuri de aluminiu exterior si pvc interior; - Cablaj pentru jaluzele actionate electric; - Racorduri apa-canal in bucatarie si bai; - Racord gaz metan la bucatarie; - Instalații pentru gaz, curent electric si apa, contorizare individuala si contoare montate. Apartamentul beneficiază de dotări Smart Home, reglarea cu ajutorul smartphone-ului a temperaturii ambientale prin intermediul unui termostat inteligent amplasat la intrarea in locuinta, controlul consumului energiei electrice, jaluzele electrice cu senzor de luminozitate, interfon smart, sistem cu picurator pentru udat plantele actionat wireless și multe alte funcții comode. Daca optati pentru predarea la stadiul de cheie, dezvoltatorul va pune la dispozitie o echipa de finisori care sa dea viata apartamentului dumneavoastra, exact asa cum visati. Bugetul pentru finisaje va fi stabilit chiar de dumneavoastra, în funcție de dorintele pe care le aveti. Functionalitate si parti comune Dezvoltatorul proiectului a pus accentul pe functionalitatea spatiilor locative, astfel toate apartamentele sunt modern gandite si vin insotite de sisteme smart-home si anexe generoase proprii, dar si comune: camera de administratie, spatiu pentru depozitare comun pentru biciclete si carucioare, parcare subterana, adapost ALA ( adapost de protectie civila ), boxe individuale la subsolul cladirii, spatii de depozitare, balcoane generoase si terase pentru apartamentele situate la etajul retras. Subsolul imobilului dispune de acces la liftul si scarile imobilului, mini-curatatoria auto, sistem de stingere a incendiilor, statii de incarcare masini electrice, acces cu dublu sens, uşa automata cu telecomandă şi rampa din beton antiderapant cu sistem de degivrare, De asemenea, proiectul dispune și de locuri de parcare special destinate vizitatorilor. Spațiile comune interioare sunt complet finisate, casa scării are un are o mărime generoasă, unde este instalat un ascensor electric de ultimă generație cu capacitate de 8 personae si funcționare silentioasa. Aceasta are finisaje deosebite din beton arhitectural, balustrada din teava rectangulara, mana curenta din inox si placari cu granit. Zona verde va avea suprafata de 770 mp si va fi amenajata cu loc de joaca pentru copii, alei pietonale, copacii, gazon și vegetația ornamental

Apartament cu 2 camere cu balcon si parcare zona Lacul lui Binder
Apartament cu 2 camere cu balcon si parcare zona Lacul lui Binder Tineretului, Sibiu
82 900 €
2 126 € pentru m²
2-cam 39 m² 3/4 p

Comision 0! De vanzare in zona Lacul lui Binder din Sibiu apartament cu 2 camere si balcon, pozitionat la etajul intermediar 3 din 4 al unui imobil costructie noua 2025 pozitionat la doar 100 m fata de complexul de agrement Lacul lui Binder. Imobilul beneficiaza de 2 lifturi electrice de ultima generatie si silentioase, locari de parcare private atat pentru locatari cat si pentru vizitatori. Regimul de inaltime este Parter+3 Etaje+Etaj Retras iar din punct de vedere tehnic imobilul este edificat pe structura pe cadre cu stalpi si grinzi din beton armat, zidarie realizata din termoblocuri de caramida de 30 cm grosime exterior si 25 cm interior, termosistem exterior din polistiren expandat de 10 cm si densitate EPS 80 peste care se aplica vopsea decorativa de exterior siliconata si usi de acces in imbil cu inchidere electromagnetica. Apartamentul are suprafata utila de 39.23 mp, acesta este compus dintr-un living open space cu bucataria de 18.48 mp, dormitorul spatios de 14.00 mp si baia 5.04 mp dotata cu geam pentru aerisire. Separat de suprafata utila apartamentul beneficiaza si de un balcon in suprafata de 5.00 mp si o camara de 1.71 mp. Parcarea se realizeaza pe propriul loc de parcare amenajat in fata imobilului. Finisaje standard: - Usa de metal la intrarea în apartamente placate cu panou MDF; - Pereti tencuiti (tencuieli pe baza de var-ciment), gletuiti si zugraviti in lavabila alba; - tamplarie PVC cu geam termopan 5 camere si 3 foi de sticla, glafuri interior-exterior; - incalzire prin pardoseala, centrala termica proprie in condensatie si detector gaz. - sisteme elecrice din cupru trase prin copex cu tablou general si sigurante pentru consumatorii de putere marca Schneider. - Instalatii pentru curentii slabi Internet, Telefon, TV. - Racorduri apa-canal in bucatarie si bai. - Racord gaz metan la bucatarie; - Rupere termica intre balcon si placa din profil de 10 cm montat la tamplarie si polistirent extrudat. - Instalatii pentru gaz, curent electric si apa, contorizare individuala si contoare montate. Casa scarii dispune de: lift, acces securizat, scarile placate cu gresie antiderapanta, mana curenta din teava rectangulara, plafoniere cu senzori de miscare si zugraveli in lavabila alba. Spatile comune exterioare respectiv curtea complexului dispune de spatii verzi amenajate cu gazon, arbusti si plante decorative. Locurile de parcare sunt supraterane, delimitate si pavate cu dale din beton. Aleile pietonale sunt pavate cu dale din beton si delimitate de spatii verzi. Valoarea de achizitie a locuintei pentru plata avansului de 50% este de 82.900 euro, aceasta poate fi achizitionata si prin accesarea unui credit bancar. ID intern: 2728.

Apartament 3 camere 2 bai etaj 2 bloc cu lift zona de case in Turnisor
Apartament 3 camere 2 bai etaj 2 bloc cu lift zona de case in Turnisor Turnisor, Sibiu
169 279 €
2 489 € pentru m²
3-cam 68 m² 2/3 p

Comision 0 apartament 3 camere de vanzare, semidecomandat, 68 mp, zona Turnisor, Sibiu. Daca vorbim de un lucru bine facut in Sibiu, atunci adaugam si acest apartament pe lista! Pozitionat intr-un ansamblu inconjurat de case, automat cu liniste si cu obstructionare redusa de vedere, acest apartament este disponibil atat pentru vizionare, cat si pentru achizitie. Tot ce trebuie sa faci, este sa ne contactezi pentru a te convinge! • Boxa la subsol inclusa in pret; • Spatii de agrement: zona fitness si zona de gratar; • Parcare extra pentru vizitatori; • Asociatie de proprietari din ansamblu, de unde rezulta o atentie mai sporita! TABOO Imobiliare propune un apartament de vanzare cu 3 camere, semidecomandat, situat in localitatea Sibiu, zona Turnisor, aflat la etajul 2 intr-un imobil tip bloc cu regim de inaltime pe Parter + 3 Etaje + Etaj Retras; anul constructiei 2025, structura caramida. Suprafata utila de 68 mp + 2 balcoane, unul de 12 mp si unul de 3 mp. • Hol; • Bucatarie cu living cu balcon; • Dormitor cu balcon; • Dormitor; • Baie cu geam pentru aerisire; • Grup sanitar; • Hol intermediar. • Usa intrare: metal; • Tamplarie ferestre: pvc, termopan; • Pereti: vopsea lavabila; • Podele: nefinisat. • Bucatarie: nemobilata, neutilata; • Mobilat: nemobilat; • Utilitati: curent electric, apa, canalizare, gaz, catv, fibra optica; • Izolatii: exterior, bloc izolat termic; • Contorizare: apometre, contor gaz, contor curent electric, contorizare separata; • Caracteristici bloc: videointerfon, lift, spatii agrement, acoperis. Apartamentul se vinde nemobilat si neutilat. Incalzirea se realizeaza prin centrala proprie cu incalzire in pardoseala, avand termostat in fiecare dintre dormitoare. Pretul de vanzare are TVA inclus, dar nu si loc de parcare, acesta putand fi achizitionat extra. Imaginile sunt cu titlu informativ. Se accepta ca si modalitate de plata surse proprii sau credit bancar. Pret: 169.279€ Sună-ne acum și află detalii despre această proprietate de vanzare din Sibiu, dar și despre alte proprietăți potrivite pentru tine.

Compartimentarea perfecta! 3 camere, 2 bai si curte in Selimbar
Compartimentarea perfecta! 3 camere, 2 bai si curte in Selimbar Selimbar, Sibiu
158 000 €
1 975 € pentru m²
3-cam 80 m²

Apartament 3 camere decomandate, zona Pictor Brana din Selimbar - Suprafata utila: 71 mp + terasa 8 mp+ balcon de 3.4 mp si curte proprie - Compartimentare: hol, Living spatios, 2 dormitoare, bucatarie inchisa, 2 bai - Imobil dotat cu lift, regim de inaltime P+3 Etaje si Pod - Interior semifinisat: pereti tencuiti, glutuiti, sapa pe pardosea, usa intrare metalica, geamuri termopan 3 foi de sticla, 3 garnituri, centrala termica in condensare cu incalzire in pardosea, instalatii electrice pana la faza de doza, balcon placat cu gresie si balustrade fier forjat. - Exterior bloc - izolatie de 10 cm si decorativa, alei pavate, iluminat, camere supraveghere, spatii verzi si loc de joaca pentru copii - Imobilul se vinde cu boxa depozitare (in POD) si 2 locuri de parcare, incluse in pret Clasa energetica A! Pozele sunt cu titlu de prezentare! PRET: 158.000 euro cu 42 mp de curte (preturi cu tva inclus)

Apartament 2 camere I 43 mpu I Parter I Terezian
Apartament 2 camere I 43 mpu I Parter I Terezian Centrul Istoric, Sibiu
79 000 €
1 837 € pentru m²
2-cam 43 m²

MAAC Imobiliare propune pentru achiziție un apartament cu 2 camere, situat la parterul unui bloc cu 4 etaje, în cartierul Terezian, Sibiu. Caracteristici: - Suprafață utilă: 43 mp - Semidecomandat Compartimentare: living, bucătărie închisă, dormitor luminos, baie cu geam de aerisire, debara. - Se vinde mobilat și utilat - Liber de sarcini, disponibil imediat - Izolat exterior (există urme de umezeală datorate montajului incorect) Zona Terezian: Cartier liniștit, cu străzi largi și spații verzi, în apropierea râului Cibin. Acces facil la școli, grădinițe și magazine. Pentru detalii sau vizionare, contactați MAAC Imobiliare, specificând ID CP2836459.

Apartament 2 camere 39.51 mp-Șelimbăr, zona Unirii
Apartament 2 camere 39.51 mp-Șelimbăr, zona Unirii Selimbar, Sibiu
71 118 €
1 824 € pentru m²
2-cam 39 m² 2/2 p

Apartament 2 camere 39.51 mp-Șelimbăr, zona Unirii Descoperă confortul unui apartament modern, situat la etajul 2 al unui bloc nou (regim de înălțime P+2E), amplasat într-o zonă liniștită, verde și bine conectată din Șelimbăr - în apropierea centrelor comerciale, a școlilor, grădinițelor și mijloacelor de transport în comun. -Suprafață utilă: 39.51 mp la care se adauga un balcon in suprafata de 6.58 mp. -Compartimentare practică: hol, living cu bucatarie open space, 1 dormitor, baie și balcon de 6.58 mp, debara. -Loc de parcare inclus în preț - Dotări și finisaje: Construcție nouă, cu materiale de calitate superioară Izolație exterioară premium Tâmplărie PVC cu geam tripan (3 foi de sticlă, 7 camere) Centrală termică proprie Spații verzi amenajate, iluminat stradal. -Acces facil către Sibiu și principalele artere din zonă -Avantaje: * Zonă liniștită, aerisită și sigură * Ideal pentru locuință proprie sau investiție * Compartimentare modernă, funcțională * Acces rapid către centrul Sibiului și Promenada Mall -Predare: Primăvara 2026 Pret : 71118 euro - la stadiul de GRI 79020 euro- la stadiul de CHEIE Sună-ne acum pentru mai multe detalii sau pentru a programa o vizionare!

Apartament 2cam balcon inchis si parcare
Apartament 2cam balcon inchis si parcare Tineretului, Sibiu
99 900 €
2 039 € pentru m²
2-cam 49 m² 3 p

Agentia Imobiliara I-Imob va propune spre vanzare apartament cu 2 camere, decomandat, confort 1, situat in cartierul Deventer, intr-un imobil construit dupa anul 2000, disponibil la etajul 3 ? Caracteristici principale: Se vinde complet mobilat și utilat, conform fotografiilor Living spațios, amenajat modern, cu zonă de relaxare Dormitor luminos, cu mobilier complet și spațiu amplu Bucătărie separată, mobilată și utilată complet Baie cu cadă și obiecte sanitare în stare excelentă Hol generos cu spații de depozitare ? Avantajele ansamblului: Zone pietonale pavate, acces facil Cartier liniștit, ideal pentru familii Locuri de parcare disponibile în proximitatea blocului Disponibilitate: imediată Pretul apartamentului 99.900 Euro ID Intern 5642

Apartament 3 camere 59.84 mp utili | Șelimbăr - Zona Unirii
Apartament 3 camere 59.84 mp utili | Șelimbăr - Zona Unirii Selimbar, Sibiu
110 712 €
1 876 € pentru m²
3-cam 59 m² 1/2 p

Apartament 2 camere 59.84 mp utili + balcon 6.80 mp | Șelimbăr - Zona Unirii Îți propunem un apartament modern, situat la etajul 1 al unui bloc nou (P+2E), într-o zonă liniștită și bine conectată din Șelimbăr - ideal pentru locuit sau investiție. În imediata apropiere se află Promenada Mall, școli, grădinițe și stații de transport public. -Suprafață utilă: 59.84 mp -Balcon generos: 6.80 mp, prevăzut cu debara -Compartimentare practică: hol, living cu bucatarie open space cu acces pe balcon, 2 dormitoare, 2 bai, debara. -Configurabil în 3 camere, datorită compartimentării inteligente (vezi schița) Dotări și finisaje Construcție nouă, izolație exterioară polistiren de 10 densitate 80eps Tâmplărie PVC cu geam tripan (3 foi de sticlă, 7 camere) Centrală termică Spații verzi amenajate, iluminat public modern Loc de parcare inclus în preț Avantaje Zonă liniștită, aerisită și sigură Acces rapid către Sibiu și zonele comerciale importante Compartimentare modernă și funcțională Ideal atât pentru locuință proprie, cât și pentru investiție -Predare primăvara 2026 Prețurile includ TVA 110 712 € - la stadiul de GRI 122 680 € - la stadiul de CHEIE Sună acum pentru mai multe detalii sau pentru a programa o vizionare!

Apartament 2 camere balcon Zona Milea
Apartament 2 camere balcon Zona Milea Vasile Aaron, Sibiu
62 000 €
1 512 € pentru m²
2-cam 41 m²

Agentia imobiliara GRN Top Invest va propune spre vânzare un apartament spațios și luminos, cu 2 camere, situat la mansardă, într-o zonă foarte căutată, Vasile Aaron, langa OMV Milea. Locuința este pe doua niveluri, decomandata. La primul nivel regasim holul, baie cu cada pe colt, bucatarie separata, living generos cu iesire in balconul inchis cu tamplarie pvc. La al doilea nivel avem dormitorul complet mobilat. Apartamentul este realizat din cărămidă și beneficiază de termosistem exterior, ceea ce îl face extrem de călduros și eficient din punct de vedere energetic. Cheltuielile de întreținere sunt reduse pe tot parcursul anului. Se vinde partial mobilat și utilat, cu un design modern și funcțional, astfel încât noul proprietar se poate muta imediat fără prea multe investiții suplimentare. Mobilierul este bine întreținut, electrocasnicele sunt în stare excelentă, iar spațiile au fost amenajate cu grijă pentru a oferi confort și utilitate maximă. Situat într-o zonă excelentă, aproape de magazine, transport, școli și alte facilități Este o locuință ideală pentru un cuplu, o persoană singură sau ca investiție pentru închiriere. Valoarea de achizitie al acestui apartament este de 62.000 Euro. ID intern: GRN1812.

Apartament modern în zona centrală Șelimbăr - mobilat complet
Apartament modern în zona centrală Șelimbăr - mobilat complet Selimbar, Sibiu
135 000 €
2 500 € pentru m²
2-cam 54 m² 2 p

Descoperă un apartament modern și primitor, situat în zona centrală a Șelimbărului, pe strada Mihai Viteazul, la doar câțiva pași de Primărie, Școală, Poliție, Grădiniță, magazinele Simpa și Profi. Poziția excelentă oferă acces rapid către toate punctele de interes ale zonei. Apartamentul are 54 mp, este foarte luminos, bine compartimentat și se vinde complet utilat și mobilat, totul fiind nou, astfel încât te poți muta imediat fără investiții suplimentare. Dotări și avantaje: • Loc de parcare inclus în preț • Mobilier modern, realizat integral la comandă, inclusiv patul din dormitor • Canapea premium Rovere în living • Bucătărie complet utilată: • mașină de spălat haine • mașină de spălat vase • cuptor cu microunde și frigider încorporabil • plită, hotă, cuptor • Finisaje moderne și spații bine optimizate • Apartament luminos, cu o compartimentare ideală pentru confort Acesta este apartamentul perfect pentru cei care caută calitate, confort și o poziționare de top în Șelimbăr. Este ideal si pentru investitie. Pret: 135 000 euro Telefon:

Apartament de vanzare 2 camere prima afisare zona Doamna Stanca
Apartament de vanzare 2 camere prima afisare zona Doamna Stanca Hipodrom I, Sibiu
84 500 €
2 061 € pentru m²
2-cam 41 m² 1 p

Apartament 2 camere de vanzare, semidecomandat, 41 mp, zona Doamna Stanca, Sibiu. Avantaje majore ale acestui apartament: • Un loc de parcare inclus in pret • Pretabil investitie sigura • Locatie ferita de aglomeratie, semidecomandat, situat in localitatea Sibiu, aflat la intr -un imobil tip bloc cu regim de inaltime Demisol+ Parter + 3 Etaje; structura beton. Suprafata utila de 41 mp + balcon de 2 mp. • Hol; • Bucatarie deschisa • Baie; • Living cu acces pe balcon; • Dormitor cu acces pe balcon; • Usa intrare: metal; • Usi interioare: celulare; • Tamplarie ferestre: pvc, termopan; • Pereti: vopsea lavabila, faianta; • Podele: parchet, gresie. • Bucatarie: mobilata, utilata; • Mobilat: complet; • Utilitati: curent electric, apa, canalizare, gaz, catv, fibra optica; • Izolatii: exterior, bloc izolat termic; • Contorizare: apometre, contor gaz, contor curent electric; • Caracteristici bloc: interfon, telecomanda poarta acces auto. Apartamentul se vinde mobilat si utilat cu: plita pe gaz cuptor, hota, masina de spalat rufe, frigider cu congelator Incalzirea se realizeaza prin centrala proprie, incalzire pardoseala si dispune de sistem de climatizare (A.C.). Se accepta ca si modalitate de plata surse proprii sau credit bancar. Pret: 84.500€ Sună-ne acum și află detalii despre această proprietate de vanzare din Sibiu, dar și despre alte proprietăți potrivite pentru tine.

Apartament modern decomandat cu 2 camere si balcon în Șelimbăr
Apartament modern decomandat cu 2 camere si balcon în Șelimbăr Selimbar, Sibiu
101 000 €
1 870 € pentru m²
2-cam 54 m² 1/2 p

Apartament 2 camere de vânzare - Șelimbăr Locație: Șelimbăr, Str. Unirii - zonă liniștită, cu spatii verzi, iluminat stradal și acces facil la punctele de interes. Compartimentare: Cameră de zi spațioasă Dormitor luminos Bucătărie Baie Balcon Stare de predare: Semifinisat Opțiuni extra: Încălzire în pardoseală: +1.000 € Finisare la cheie: +2.000 € Preț: 101.000 € (TVA inclus) Ideal pentru locuință proprie sau investiție! Pimaginile sunt cu titlu de prezentare! Predare primavara 2026 Sună-ne acum pentru mai multe detalii Comision 0 Sibiu Estate - Casa ta, povestea noastră!

Apartament modern 2 camere si balcon 5 mp la etaj 2 in Turnisor
Apartament modern 2 camere si balcon 5 mp la etaj 2 in Turnisor Turnisor, Sibiu
89 000 €
2 171 € pentru m²
2-cam 41 m² 2/4 p

Agentia imobiliara Azura-Estate va propune spre vanzare un apartament modern, complet mobilat utilat complet, cu o suprafata de 41 mp utili, compus din hol de acces, living cu acces pe balcon, dormitor, bucatarie inchisa si balcon, situat la etajul 2 din 4 in Turnisor. Cartierul este recunoscut ca fiind linistit și bine conectat la oraș, unde accesul rapid spre centru și autostradă se împletește cu avantajul proximității față de școli, magazine și servicii, oferind astfel un cadru practic pentru viața de zi cu zi, dar și o atmosferă caldă și comunitară, ideală pentru familii care caută confort, siguranță și un stil de viață echilibrat. Compartimentare si caracteristici: Hol generos la intrare cu multiple spatii de depozitare Living cu acces pe balcon Dormitor Bucatarie inchisa complet mobilata si utilata Baie moderna echipata Balcon inchis cu sticla dublu securizata. Pretul de vanzare este de 89000 euro negociabil!

Apartament central pretabil regim hotelier in zona Piata Mica
Apartament central pretabil regim hotelier in zona Piata Mica Centrul Istoric, Sibiu
79 500 €
2 038 € pentru m²
1-cam 39 m² 1/1 p

Agentia imobiliara I-IMOB va ofera la vanzare un apartament cu 2 camere, decomandat situat in zona Centrala din Sibiu. Imobilul are o suprafata construita de aproximativ 47 mp, din care suprafata utila este de 39 mp si se afla situat la etajul 1al unui imobil edificat din caramida. Locuința este compusă din bucătărie cuptor, plita, hota, camera spatioasa, grup sanitar si sistem de ventilatie. Este situat la 3 minute de mers pe jos pana in Piata Mare al Sibiului, o zona de mare interes public, fiind in proximitatea mai multor puncte importante: scoli, gradinite, mijloace de transport in comun, banci, farmacii, institutii, universitati etc. Apartamentul se vinde precum apare in poze la pretul de 79.500 Euro, negociabil.

Penthouse cu 4 camere 111 mp utili terasa 78 mp doua locuri parcare
Penthouse cu 4 camere 111 mp utili terasa 78 mp doua locuri parcare Selimbar, Sibiu
250 000 €
2 252 € pentru m²
4-cam 111 m² 7/7 p

Apartament tip penthouse de vanzare in Selimbar, zona Doamna Stanca, situat la etajul 7 al unui imobil finalizat in anul 2025. Apartamentul este in curs de amenajare interioara si urmeaza a fi predat la stadiul de cheie, cu toate finisajele incluse, respectiv montarea parchetului, usilor de interior, gresiei, faiantei si obiectelor sanitare. Proprietatea beneficiaza de o suprafata utila generoasa de 111 mp si este gandita pentru confortul unei familii care apreciaza spatiile largi si bine compartimentate. Compartimentarea interioara cuprinde un living spatios cu bucatarie open-space in suprafata de 44.5 mp, trei dormitoare luminoase, doua bai complet functionale si un hol generos care asigura o circulatie fluida in interiorul locuintei. In plus fata de suprafata utila, apartamentul se bucura de o terasa impresionanta de 78 mp, ideala pentru relaxare si activitati in aer liber, precum si un balcon de 10 mp cu acces facil din dormitoare. Apartamentul beneficiaza de finisaje si dotari de calitate, precum usa de acces metalica, pereti tencuiti, gletuiti si zugraviti in lavabila, tamplarie PVC cu profil din 7 camere si trei foi de sticla, curent trifazic cu tablou electric si sigurante automate pentru consumatorii de putere, prize si intrerupatoare montate, sistem de aer conditionat multisplit marca Midea cu doua unitati de 24000 btu, usi de interior marca Naturen, parchet Vicla, bai complet echipate si centrala termica pe gaz cu incalzire in pardoseala si termostatare individuala pentru fiecare camera. Apartamentul beneficiaza de doua locuri de parcare, unul situat in parcarea subterana a blocului si celalalt suprateran, ambele incluse in pretul de vanzare. Imobilul este amplasat intr-o zona rezidentiala noua, cu acces rapid catre centre comerciale, scoli, transport public si alte facilitati urbane, ceea ce il face ideal atat pentru locuinta proprie cat si pentru investitie. Valoarea apartamentului este de 250.000 euro + tva, se poate achizitiona si prin intermediul unui credit ipotecar. ID intern: 3147.

Apartament 3 camere, 89 mp utili, etaj 1, în Sibiu zona Turnisor
Apartament 3 camere, 89 mp utili, etaj 1, în Sibiu zona Turnisor Turnisor, Sibiu
111 000 €
1 247 € pentru m²
3-cam 89 m² 1/2 p

Apartament 3 camere, 89 mp utili, etaj 1, în Turnișor - zonă liniștită Îți prezentăm un apartament spațios cu 3 camere, situat la etajul 1 al unui imobil tip P+1+M, amplasat într-o curte comună liniștită din cartierul Turnișor, una dintre cele mai accesibile zone rezidențiale din Sibiu. Locuința are o suprafață utilă de 89 mp și o compartimentare excelentă pentru o familie sau pentru cei care își doresc mai mult spațiu și funcționalitate. Apartamentul este decomandat și include un hol generos la intrare, o bucătărie separată, trei camere luminoase și o baie spațioasă cu geam pentru ventilație naturală. Se predă la stadiul de alb, ceea ce îți oferă libertatea de a-ți amenaja locuința exact așa cum îți dorești. Beneficiezi deja de centrală termică individuală și calorifere montate - o bază solidă pentru un proiect de amenajare eficient. Imobilul este poziționat pe o stradă liniștită, într-un cartier în plină dezvoltare, aproape de puncte cheie ale orașului: 3 minute de mers cu mașina până la Aeroportul Internațional Sibiu 5-7 minute de centre comerciale și zona industrială vest Acces rapid la transport public (stații Tursib în apropiere) Este ideal atât pentru locuință personală, cât și ca investiție, având în vedere cererea crescută pentru chirii în zonă. Paltinul Imobiliare - 22 de ani de încredere pe piața imobiliară sibiană. Selectăm proprietăți cu potențial real și le punem în valoare. Programează o vizionare și descoperă dacă acest apartament poate deveni noul tău cămin. Contactează-ne acum!

Apartament 3 camere mobilat utilat decomandat zona Arhitectilor Sibiu
Apartament 3 camere mobilat utilat decomandat zona Arhitectilor Sibiu Cisnadie, Sibiu
119 900 €
2 180 € pentru m²
3-cam 55 m²

Apartament zona Calea Cisnadiei - Arhitectilor 3 camere de vanzare, decomandat, 55 mp, Sibiu. Avantaje majore ale acestui apartament: • loc de parcare; TABOO Imobiliare propune un apartament de vanzare cu 3 camere, decomandat, situat in localitatea Sibiu, zona Calea Cisnadiei - Arhitectilor, aflat la etajul parter intr-un imobil tip bloc cu regim de inaltime pe Parter + 3 Etaje; anul constructiei 2018, structura caramida. Suprafata utila de 55 mp. • Hol; • Bucatarie; • Baie; • Living; • Dormitor; • Dormitor; • Baie; • Usa intrare: metal; • Usi interioare: celulare; • Tamplarie ferestre: pvc; • Pereti: vopsea lavabila, faianta; • Podele: parchet, gresie. • Bucatarie: mobilata, utilata; • Mobilat: complet; • Utilitati: curent electric, apa, canalizare, gaz, acces internet, fibra optica; • Izolatii: exterior, bloc izolat termic; • Contorizare: apometre, contor gaz, contor curent electric; • Caracteristici bloc: interfon. Apartamentul se vinde mobilat si utilat cu: aragaz, cuptor, hota, masina de spalat rufe, frigider cu congelator. Incalzirea se realizeaza prin centrala proprie, calorifere. Se accepta ca si modalitate de plata surse proprii sau credit bancar. Pret: 119.900€ Sună-ne acum și află detalii despre această proprietate de vanzare din Sibiu, dar și despre alte proprietăți potrivite pentru tine.

Apartament de vanzare 2 camere pivnita Sibiu Strand
Apartament de vanzare 2 camere pivnita Sibiu Strand Strand I, Sibiu
124 500 €
2 110 € pentru m²
2-cam 59 m² 2/4 p

Agenția imobiliară Inovativ oferă spre vanzare un apartament modern cu doua camere, mobiliat, utilat, cu o suprafața utila de 59 mp, plus balcon spațios de 7mp, situat la etajul 2 al unui imobil dotat cu lift aflat in zona Strand. Apartamentul se vinde mobilat si utilat; este compus dintr-un living spatios, bucatarie separata, dormitor,baie, balcon si hol. Zona in care se afla imobilul este cu strazi amenajate, iluminat stradal, aproape de punctele de interes public cum ar fi: magazine alimentare, statii pentru mijloace de transport in comun, unitati de invatamant, gradinite, etc.

Apartament 3 camere la cheie intabulat 63 mp - Calea Surii Mici, Sibiu
Apartament 3 camere la cheie intabulat 63 mp - Calea Surii Mici, Sibiu Sibiu
135 380 €
2 184 € pentru m²
3-cam 62 m²

Va propunem spre vanzare un apartament care se gaseste in Sibiu, zona Calea Surii Mici, care este intabulat si gata de predare. Apartamentul se afla intr-o zona in plina dezvoltare, in imediata apropiere de viitorul Spital Judetean si la doar 1 km de cartierul Piata Cluj. Pentru iubitorii de city-break, last minute sau calatorii in afara tarii, cat si pentru persoanele care calatoresc in scop de afaceri, aeroportul se afla la scurta distanta. Apartamentul este compus din 3 camere, si are o suprafata de 62.85 mp utili. Apartamentul este construit, intabulat, are mobila de bucatarie inclusa, dispune de incalzire in pardoseala si se preda conform pozelor de prezentare. Spatiile comune se predau la cheie si au in dotare urmatoarele: - Usa din PVC la intrarea in scara blocului cu sistem de blocare electromagnetic; - Interfon cu cartela; - Lifturi de inox pentru fiecare scara; - Casa scarilor placata cu gresie antiderapanta, zugraveli cu lavabila alba si plafoniere cu senzori de miscare. Avantaje: - Spatii verzi si locuri de relaxare; - Loc de joaca pentru copii amenajat; - Mobila de bucatarie inclusa in pretul apartamentului; - Zona asfaltata si iluminata stradal. Loc de parcare suprateran inclus in pret. Contracost sunt disponibile si parcari subterane. Pret:135.380 Euro Se accepta plata cash sau credit ipotecar cu un minim de avans de 15%. Informatii certificat energetic conform proiect: a) clasa energetica B; b) consumul total specific de energie primara: min 125.00 - max 201.00 kWh/m2an; c) indicele de emisii echivalent CO2: min 25.63 - max 41.21 kgCO2/m2an; d) consum total specific de energie din surse regenerabile: 0 kWh/m2an. Te asteptam cu drag la vizionare.

Apatament 3 camere Selimbar et 1,orientare sud
Apatament 3 camere Selimbar et 1,orientare sud Selimbar, Sibiu
111 000 €
1 850 € pentru m²
3-cam 60 m² 1/2 p

Apartament 3 camere, 2 băi, Șeimbar - 60 mp utili, etaj 1, 2 locuri de parcare incluse Apartament luminos, la gri avansat, situat la etajul 1 al unui imobil nou din Șeimbar. Dispune de 3 camere, 2 băi, cămară și balcon de 6,8 mp, orientat spre soare. Prețul include 2 locuri de parcare. Preț: 111.000 € Pentru detalii și vizionare:

Deschide harta Harta