3 762 obiecte

Объект RO-1310113177 не найден. Возможно, он удалён по истечению срока давности, либо находится в процессе публикации.

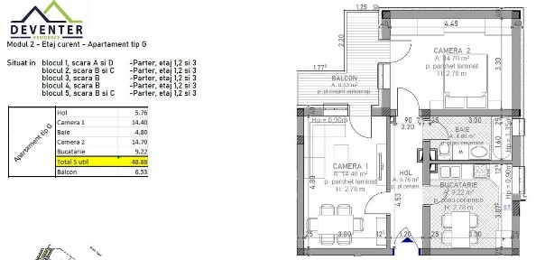
Comision 0! Ap 2 cam, et 1 si 2, lift, geam baie, bucatarie separata
Comision 0! Ap 2 cam, et 1 si 2, lift, geam baie, bucatarie separata Strada Deventer, Tineretului, Sibiu
94 000 €
1 918 € pentru m²
2-cam 49 m² 3/3 p

Comision 0. Apartament decomandat NOU in bloc de caramida cu structura din fier-beton, izolat cu polistiren de 15 cm, disponibil la Parter si etaj 3 in bloc cu lift. Este pozitionat in continuarea cartierului deja existent - Deventer 1 din mun. Sibiu. Accesul in ansamblu se poate face atat din str. Deventer cat si din str. Tractorului.

Apartament 3 camere 2 bai etaj 1 cu lift - Calea Surii Mici Sibiu
Apartament 3 camere 2 bai etaj 1 cu lift - Calea Surii Mici Sibiu Sibiu
133 570 €
1 908 € pentru m²
3-cam 70 m² 1/6 p

Apartamentul se afla intr-o zona in plina dezvoltare, in imediata apropiere de viitorul Spital Judetean si la doar 1 km de cartierul Piata Cluj. Timpul este pretios, iar noi stim lucrul acesta. De aceea, daca lucrezi in zona de Vest e un motiv în plus pentru care sa alegi acest apartament. Apartamentul este compus din 3 camere, si are o suprafata de 70.15 mp utili. Spatiile comune se predau la cheie si au in dotare urmatoarele: - Usa din PVC la intrarea in scara blocului cu sistem de blocare electromagnetic; - Interfon cu cartela; - Lifturi de inox pentru fiecare scara; - Casa scarilor placata cu gresie antiderapanta, zugraveli cu lavabila alba si plafoniere cu senzori de miscare. Avantaje: - Spatii verzi si locuri de relaxare; - Loc de joaca pentru copii amenajat; - Zona asfaltata si iluminata stradal. Loc de parcare suprateran inclus in pret. Contracost sunt disponibile si parcari subterane. Apartamentul se preda finisat LA ALB cu posibilitatea de predare LA CHEIE in functie de preferintele viitorului proprietar. Pozele de reprezentare sunt cu titlu informativ din apartamentele care sunt deja finisate. *Termen de predare: luna februarie a anului 2026 Pret: 133.570 Euro Se accepta plata cash sau credit ipotecar cu un minim de avans de 15%. Informatii certificat energetic conform proiect: a) clasa energetica B; b) consumul total specific de energie primara: min 125.00 - max 201.00 kWh/m2an; c) indicele de emisii echivalent CO2: min 25.63 - max 41.21 kgCO2/m2an; d) consum total specific de energie din surse regenerabile: 0 kWh/m2an. Te asteptam cu drag la vizionare.

Apartament 2 camere - 39,23 mp utili + balcon - Lacul lui Binder
Apartament 2 camere - 39,23 mp utili + balcon - Lacul lui Binder Tiglari, Sibiu
68 500 €
1 756 € pentru m²
2-cam 39 m² 1/3 p

Va propunem spre vanzare un apartament cu 2 camere - 39,23 mp + balcon, amplasat intr-o zona frumoasa, in apropierea lacului Binder. Avantaje: - constructie noua; - finisat la alb; - centrala termica si incalzire in pardoseala; - loc de parcare inclus in pret; - bloc cu lift; - loc de joaca pentru copii; - zona de promenada; - in apropiere se gasesc magazine, statii de autobuz, piata. Compartimentare: - living cu bucatarie; - baie; - dormitor. Apartamentele se predau finisate la alb, la inceputul anului 2026. Se accepta atat plata prin credit, cat si din surse proprii.

Apartament 2 camere, balcon, bloc nou, zona buna
Apartament 2 camere, balcon, bloc nou, zona buna Strada Berariei, Centrul Civic, Sibiu
110 000 €
2 075 € pentru m²
2-cam 53 m² 1/4 p

Apartament de vanzare in Sibiu 2 camere | 52,79 mp + balcon 2,34 mp | Neppendorf Residence - Sibiu Ultimele apartamente disponibile in bloc nou, predare la alb, situat in cartierul Turnisor, aproape de aeroport si zona de Vest. - Suprafata utila: 52,79 mp - Balcon: 2.34 mp - Incalzire in pardoseala - Boxa inclusa - Lift in bloc - Locuri de parcare si garaje disponibile - Zona linistita, cu loc de joaca, alei si spatii verzi Constructie din caramida Cemacon, clasa energetica A. Priveliste panoramica, grup sanitar cu geam, logie finisata. Ideal pentru locuit sau investitie. Apartamentul este disponibil imediat. ID Intern: 22428 - Contacteaza-ne pentru vizionare!

Apartament 2 camere, intabulat, terasa mare, bloc nou, zona buna
Apartament 2 camere, intabulat, terasa mare, bloc nou, zona buna Strada Berariei, Centrul Civic, Sibiu
123 000 €
2 158 € pentru m²
2-cam 57 m²

Apartament de vanzare in Neppendorf Residence, bloc nou Caracteristici apartament: Apartamentul se află la etajul 3 din 4, este intabulat și disponibil pentru predare imediată. Se predă finisat la alb, pregătit pentru a fi amenajat după propriul gust. Suprafață utilă: 53 mp Terasă spațioasă de 12 mp ? perfectă pentru relaxare sau timp petrecut ?n aer liber ?ncălzire ?n pardoseală ? confort optim ?n sezonul rece Boxă la subsol inclusă ?n preț Lift ?n bloc | locuri de parcare și garaje disponibile Loc de joacă pentru copii, zone verzi, alei pavate și iluminate Modalitate de predare:? Imobilul se va preda finisat la alb Balcoanele si exteriorul blocului este finisat la cheie Locatie: Cartierul?Turnisor, foarte aproape de zona Industriala Vest. Locatarii vor avea acces facil la centura orasului si la autostrada. Caile de acces pana la proprietate sunt 100% amenajate cu dale de beton sau asfalt, iar zona este usor accesibila. Despre Neppendorf Residence Ansamblul este alcatuit din 7 blocuri de apartamente?cu 2 si 3 camere. Blocurile se construiesc in regim de inaltime P+3E+ER Dotari complementare precum?lift,?garaj, boxe Spatii de parcare Locuri de joaca pentru copii. Clasa energetica A (dobanzi bancare mai mici, cat si costuri reduse la utilitati) ID Intern: 22434

Mansarda de vanzare cu mutare imediata 85 mpu Zona Mihai Viteazul
Mansarda de vanzare cu mutare imediata 85 mpu Zona Mihai Viteazul Trei Stejari, Sibiu
89 900 €
1 058 € pentru m²
3-cam 85 m² 10 p

Apartament 3 camere de vanzare, decomandat, 85 mp, zona Mihai Viteazul, Sibiu. TABOO Imobiliare propune un apartament de vanzare cu 3 camere, decomandat, situat in localitatea Sibiu, zona Mihai Viteazul, aflat la Mansarda intr-un imobil tip bloc cu regim de inaltime pe Parter + 4 Etaje + Mansarda; anul constructiei 1986, structura caramida. Suprafata utila de 85 mp + balcon de 5 mp. • Hol; • Bucatarie + Living + Balcon; • Baie; • 2 Dormitoare; • Hol intermediar; • Debara; • Usa intrare: metal; • Usi interioare: celulare; • Tamplarie ferestre: pvc, termopan; • Pereti: vopsea lavabila, faianta; • Podele: parchet, gresie. • Bucatarie: mobilata, utilata; • Mobilat: complet; • Utilitati: curent electric, apa, gaz, catv; • Izolatii: exterior, bloc izolat termic; • Contorizare: apometre, contor gaz, contor curent electric; • Caracteristici bloc: interfon, acoperis. Apartamentul se vinde mobilat si utilat cu: plita pe gaz, cuptor, hota, masina de spalat rufe, frigider cu congelator. Incalzirea se realizeaza prin centrala proprie, calorifere. Se accepta ca si modalitate de plata surse proprii sau credit bancar. Pret: 89.900€ Sună-ne acum și află detalii despre această proprietate de vanzare din Sibiu, dar și despre alte proprietăți potrivite pentru tine.

Apartament decomandat cu 3 camere, 55mp utili, pivnita, Valea Aaurie
Apartament decomandat cu 3 camere, 55mp utili, pivnita, Valea Aaurie Valea Aurie, Sibiu
125 000 €
2 273 € pentru m²
3-cam 55 m² 4/4 p

Apartament cu 3 camere, decomandat, pivnita, locuri de parcare publice langa bloc Avantaje: -imobilul beneficiaza de pivnita trecuta in acte -bucatarie inchisa -spatiu de depozitare -locuri de parcare publice langa bloc -bloc izolat termic -acoperis din tigla -in apropiere se gaseste Lidl, parcul Belvedere, transport in comun, scoli Gradinita, Profi Compartimetare: -hol de acces -bucatarie cu camara -living -baie -debara -2 dormitoare -2 balcoane Comisionul pentru aceasta propietate este de 2% TVA inclus Locatia: Sibiu, zona Valea Aurie (reper str. Ludos).

Apartament 4 camere | Etaj 2 | Balcon | Pivnita | Cisnadie
Apartament 4 camere | Etaj 2 | Balcon | Pivnita | Cisnadie Cisnadie, Sibiu
105 000 €
1 500 € pentru m²
4-cam 70 m² 2/4 p

MAAC Imobiliare vă prezintă un apartament cu 4 camere decomandat, situat în Cisnădie, într-o zonă centrală, cu acces facil către toate punctele de interes. Caracteristici: Apartament decomandat cu 4 camere Suprafață utilă: 70 mp Etaj: 2 din 4 Orientare sudică, oferind lumină naturală pe tot parcursul zilei Compartimentare: Hol de intrare 3 dormitoare Living separat Bucătărie 2 băi Debara pentru depozitare Balcon cu acces atât din living, cât și din bucătărie Dotări și beneficii: Apartament recent renovat și mobilat cu gust Centrală termică proprie cu calorifere Bloc solid, construit din cărămidă și izolat termic Spații auxiliare: Cămară pentru depozitare Pivniță inclusă Pentru mai multe detalii precizati telefonic ca ati vazut anuntul cu ID: CP2003581.

Apartament 2 Camere I Pretabil Investitie I Lacul lui Binder
Apartament 2 Camere I Pretabil Investitie I Lacul lui Binder Tiglari, Sibiu
58 500 €
1 581 € pentru m²
2-cam 37 m²

Va propunem spre vanzare un apartament semidecomandat situat la parterul unui imobil din zona Lacul lui Binder. Locuinta cuprinde: hol intrare, living, dormitor, bucatarie, baie. Proprietatea se afla intr-o zona in plina dezvo;tare cu acces rapid la centre comerciale, de invatamant. Disponibil imediat. Pentru mai multe detalii, precizati telefonic ca ati vazut anuntul cu ID: CP2086812

Apartament 3 camere zona Kogalniceanu Sibiu
Apartament 3 camere zona Kogalniceanu Sibiu Terezian, Sibiu
195 000 €
2 708 € pentru m²
3-cam 72 m²

P16562 Smart Imobiliare propune spre vânzare un apartament cu 3 camere, situat în Sibiu, în zona Turnisor, pe strada Partenie Cosma, având o suprafață utilă de aproximativ 72 mp (82 mp suprafață construită). Apartamentul este amplasat la parter al unui imobil cu 4 niveluri și se remarcă prin compartimentarea decomandat și poziționarea într-o zonă cu acces facil. Imobilul în care se află apartamentul este de tip bloc, edificat în anul 2014, pe structură caramida, cu eficiență energetică ridicată. Compartimentarea este una practică, cu o delimitare clară între zona de zi și zona de noapte. Apartamentul cuprinde living, 2 dormitoare, 1 bucătărie, 1 baie și hol de acces. Spațiile exterioare includ balcon cu o suprafață totală de aproximativ oferind locuri suplimentare pentru relaxare sau depozitare. La nivel de dotări, proprietatea beneficiază de curent electric, apa, canalizare, gaz, sistem de încălzire prin centrala proprie, incalzire pardoseala, climatizare, izolații exterioare, ferestre termopan, pardoseli parchet, gresie, pereți finisați cu vopsea lavabila, faianta, ușă de intrare metal și uși de interior lemn. Apartamentul se vinde complet mobilat aspect care poate reprezenta un avantaj pentru viitorul proprietar, fie că dorește să îl locuiască imediat, fie să îl închirieze. În zonă există posibilitatea de parcare prin locuri publice în funcție de disponibilitate, iar amplasarea oferă acces rapid către puncte importante din Sibiu. Prin poziționare, suprafață și dotări, acest apartament este potrivit pentru [familie/cuplu/investitor] care își dorește un apartament într-o zonă căutată din Sibiu, cu acces bun și confort sporit. Poate reprezenta atât o locuință stabilă pe termen lung, cât și o investiție bună, ușor de valorificat prin închiriere. Prețul de promovare este de 195.000€ /negociabil în funcție de condițiile stabilite împreună cu proprietarul. Pentru mai multe detalii despre această proprietate și pentru programarea unei vizionări, vă rugăm să contactați consultantul responsabil. Smart Imobiliare vă oferă consultanță completă pe tot parcursul tranzacției, de la prima vizită și până la predarea cheilor.

Apartament cu 2 camere si gradina proprie zona Lacul lui Binder
Apartament cu 2 camere si gradina proprie zona Lacul lui Binder Tineretului, Sibiu
88 350 €
2 265 € pentru m²
2-cam 39 m² 3/4 p

De vanzare apartament finisita la cheie de 2 camere cu gradina proprie in suprafata totala de 53.77 mp, cu loc propriu de parcare, situat in zona Lacul lui Binder la doar 100 m fata de complexul de agrement Lacul lui Binder, pozitionat la parterul inalt al unui imobil constructie noua ce dispune de 2 lifturi, locuri de parcare private destinate locatarilor cat si pentru vizitatori si curte proprie. Apartamentul are suprafata utila de 39.23 mp, acesta este compus dintr-un living open space cu bucataria de 18.48 mp, dormitorul spatios de 14.00 mp si baia 5.04 mp dotata cu geam pentru aerisire. Separat de suprafata utila apartamentul beneficiaza si de un balcon in suprafata de 5.00 mp, o camara de 1.71 mp si propria gradina imprejmuita de 20 mp Parcarea se realizeaza pe propriul loc de parcare amenajat in fata imobilului. Finisaje standard: - Usa de metal la intrarea în apartamente placate cu panou MDF; - Pereti tencuiti (tencuieli pe baza de var-ciment), gletuiti si zugraviti in lavabila alba; - tamplarie PVC cu geam termopan 5 camere si 3 foi de sticla, glafuri interior-exterior; - incalzire prin pardoseala, centrala termica proprie in condensatie si detector gaz. - sisteme elecrice din cupru trase prin copex cu tablou general si sigurante pentru consumatorii de putere marca Schneider. - Instalatii pentru curentii slabi Internet, Telefon, TV. - Racorduri apa-canal in bucatarie si bai. - Racord gaz metan la bucatarie; - Rupere termica intre balcon si placa din profil de 10 cm montat la tamplarie si polistirent extrudat. - Instalatii pentru gaz, curent electric si apa, contorizare individuala si contoare montate. Din punct de vedere tehnic regimul de inaltime este Parter+3 Etaje+Etaj Retras iar din punct de vedere tehnic imobilul este edificat pe structura pe cadre cu stalpi si grinzi din beton armat, zidarie realizata din termoblocuri de caramida de 30 cm grosime exterior si 25 cm interior, termosistem exterior din polistiren expandat de 10 cm si densitate EPS 80 peste care se aplica vopsea decorativa de exterior siliconata si usi de acces in imbil cu inchidere electromagnetica. Casa scarii dispune de: lift, acces securizat, scarile placate cu gresie antiderapanta, mana curenta din teava rectangulara, plafoniere cu senzori de miscare si zugraveli in lavabila alba. Spatile comune exterioare respectiv curtea complexului dispune de spatii verzi amenajate cu gazon, arbusti si plante decorative. Locurile de parcare sunt supraterane, delimitate si pavate cu dale din beton. Aleile pietonale sunt pavate cu dale din beton si delimitate de spatii verzi. Valoarea de achizitie a locuintei pentru plata avansului de 50% este de 88.350, aceasta poate fi achizitionata si prin accesarea unui credit bancar. ID intern: 2733.

Apartament de vanzare semidecomandat cu 2 camere- Sibiu
Apartament de vanzare semidecomandat cu 2 camere- Sibiu Hipodrom III, Sibiu
74 500 €
1 863 € pentru m²
2-cam 40 m²

Apartament de vânzare - 2 camere, 39 mp utili, parter - Sibiu Vă propunem spre achiziție un apartament decomandat, cu o suprafață utilă de 39 mp, situat la parterul unui imobil îngrijit, într-o zonă liniștită din Sibiu. Locuința se remarcă prin compartimentarea funcțională și luminoasă, fiind potrivită pentru locuit sau ca investiție. Compartimentare: -hol la intrare -bucătărie închisă -living -al doilea hol, ce separă zona de zi de cea de noapte -dormitor -baie Apartamentul oferă acces facil, intimitate și posibilitatea de amenajare după preferințele viitorului proprietar. Sibiu Estate- Casa ta, povestea noastra

RO/EN Ap. 2 cam, Tipografilor Centrul Istoric, Gradina, Pivnita |VIDEO
RO/EN Ap. 2 cam, Tipografilor Centrul Istoric, Gradina, Pivnita |VIDEO Strada Tipografilor, Centrul Istoric, Sibiu
115 000 €
1 742 € pentru m²
2-cam 66 m² 2/2 p

We speak ENGLISH! Nota: Această proprietate beneficiază de prezentare VIDEO! (vezi link-ul sau întreabă agentul).

Apartament 5 camere I 106 mp I 2 terase I Vedere spre munți I Arhitecț
Apartament 5 camere I 106 mp I 2 terase I Vedere spre munți I Arhitecț Cisnadie, Sibiu
194 600 €
1 836 € pentru m²
5-cam 106 m² 1/1 p

MAAC Imobiliare vă propune spre vânzare un apartament deosebit cu 5 camere, terase generoase și vedere panoramică - Cartierul Arhitecților / Calea Cisnădiei Suprafață utilă: 106 mp Terase: 2 terase însumând 35 mp Compartimentare: 5 camere - 4 dormitoare + living open space cu bucătărie Băi: 2 (cadă + cabină de duș) Regim de înălțime: etaj 1/1 Imobil: vilă cu doar 4 apartamente Parcare: 1 loc de parcare inclus Orientare: sudică Stare: complet mobilat și utilat Zona de zi este compusă dintr-un living open space cu bucătăria, ideal pentru activitățile de zi cu zi și pentru socializare. Apartamentul dispune de 4 dormitoare, oferind multiple posibilități de amenajare, precum și de două băi moderne, una dotată cu cadă, cealaltă cu cabină de duș. Unul dintre punctele forte ale proprietății îl reprezintă cele două terase generoase de 35 mp, cu orientare sudică. De pe ambele terase se poate admira răsăritul și o panoramă deschisă către munți, oferind un peisaj natural deosebit și o atmosferă relaxantă. Lumina naturală este prezentă pe tot parcursul zilei. Apartamentul este situat la etajul superior al unei vile cu doar 4 unități locative, ceea ce asigură intimitate, liniște și un confort sporit. Proprietatea este amplasată într-o zonă rezidențială bine dezvoltată, cu acces facil către punctele de interes ale orașului. Beneficii ale zonei: Transport public în imediata apropiere Stații de autobuz la câteva minute de mers pe jos Acces rapid către centre comerciale importante: LIDL și Kaufland Apropiere de grădinițe și facilități educaționale Zonă liniștită, potrivită pentru familii, fiind un apartament premium într-o zonă în plină dezvoltare. Pentru detalii suplimentare, consultanță sau programarea unei vizionări, va rugăm să ne contactati specificand ID: CP2861376.

Apartament 2 camere | Mobilat modern | Parter | Lazaret
Apartament 2 camere | Mobilat modern | Parter | Lazaret Lazaret, Sibiu
77 990 €
1 857 € pentru m²
2-cam 42 m²

MAAC Imobiliare vă propune spre vânzare un apartament dintr-un proiect rezidențial modern, situat în zona Lazaret, ideal pentru locuit sau investiție. Caracteristici: Suprafață utilă: 42 mp Situat la parter înalt Bloc cu regim de înălțime P+4 etaje Imobil izolat termic Dotat cu lift Încălzire prin calorifere, cu centrală termică proprie Toate instalațiile electrice și sanitare sunt noi Apartamentul se vinde complet mobilat și utilat, exact ca în poze Compartimentare: Hol de intrare Zonă de bucătărie open space cu living, spațiu luminos și modern Hol secundar Baie dotată cu cabină de duș Dormitor matrimonial bine delimitat Avantaje: Apartament nou, gata de mutare Finisaje moderne și materiale de calitate Ideal atât pentru locuință personală, cât și pentru investiție. Pentru mai multe detalii precizati telefonic ca ati vazut anuntul cu ID: CP2861403

Apartament cu 2 camere decomandate centru langa parcul Sub Arini
Apartament cu 2 camere decomandate centru langa parcul Sub Arini Centrul Istoric, Sibiu
138 001 €
2 509 € pentru m²
2-cam 55 m² 2 p

Apartament 2 camere de vanzare, decomandat, 55 mp, zona Centrala, Sibiu Avantaje majore ale acestui apartament: - locatia langa parcul Sub Arini cu acces facil catre centru si toate punctele de interes ale orasului. TABOO Imobiliare propune un apartament de vanzare cu 2 camere, decomandat, situat in localitatea Sibiu, zona Centru, aflat la etajul 2 intr -un imobil tip vila cu regim de inaltime pe Parter + 2 Etaje + 1 etaj retras; anul constructiei 2007, structura caramida. Suprafata utila de 55 m + balcon 4 mp si terasa comuna de 15 mp • Hol; • Bucatarie + balcon; • Baie; • Living; • Dormitor; • Usa intrare: metal; • Usi interioare: lemn; • Tamplarie ferestre: pvc; • Pereti: vopsea lavabila; • Podele: parchet, gresie. • Bucatarie: nemobilata, neutilata; • Utilitati: curent electric, apa, canalizare, gaz, catv, telefon, acces internet, fibra optica; • Izolatii: exterior, bloc izolat termic; • Contorizare: apometre, contor caldura, contor gaz, contor curent electric; • Caracteristici casa/vila: videointerfon, supraveghere video, curte comuna. Apartamentul se vinde nemobilat. Incalzirea se realizeaza prin termoficare, calorifere si dispune de aer conditionat in ambele camere. Se accepta ca si modalitate de plata surse proprii sau credit bancar. Pret: 138.001€ Sună-ne acum și află detalii despre această proprietate de vanzare din Sibiu, dar și despre alte proprietăți potrivite pentru tine.

Apartament 2 camere, Strada Anton Pann, bloc nou, finisat, etaj 2/3
Apartament 2 camere, Strada Anton Pann, bloc nou, finisat, etaj 2/3 Strada Anton Pann, Orasul Vechi, Baia Mare, Maramures
69 000 €
1 353 € pentru m²
2-cam 51 m² 2/3 p

Imobiliare BAYZA Baia Mare vă oferă spre achiziție un apartament cu 2 camere situat într-un bloc nou, pe Strada Anton Pann, într-o zonă liniștită și în plină dezvoltare rezidențială. Apartamentul este poziționat la etajul 2 din 3, are o suprafață utilă de 51 mp și dispune de compartimentare eficientă și finisaje moderne.

Apartament cu 2 camere, decomandat, 53mp utili, Car. Arhitectilor
Apartament cu 2 camere, decomandat, 53mp utili, Car. Arhitectilor Centrul Istoric, Sibiu
95 000 €
1 792 € pentru m²
2-cam 53 m² 3/3 p

Apartament cu 2 camere, 53mp utili+balcon, pod, mobilat si utilat, orientare Sud-Vest Avantaje: -decomandat -pod pe toata suprafata apartamentului -baie cu geam pentru aerisire -calea de acces pavata -loc de parcare privat -bloc izolat termic cu polistiren -se preda mobilat si utilat -in apropiere se gaseste Lidl, Profi, transport in comun, gradinita Compartimetare: -hol de acces -living -bucatarie -dormitor -baie -balcon Locatia: Cisnadie, Cartierul Arhitectilor (reper str. Nicolae Porumbescu). Iti doresti mai mult decat o simpla locuinta? Noi suntem aici pentru a-ți oferi cele mai bune soluții. Oferim servicii de DESIGN SI AMENAJARI INTERIOARE, PROPERTY MANAGEMENT, REGIM HOTELIER, HOME STAGING, VIRTUAL INVESTMENT, SERVICII DE CURATENIE.

BLACK FRIDAY I Apartament 2 Camere I Etaj 4 I Rahovei
BLACK FRIDAY I Apartament 2 Camere I Etaj 4 I Rahovei Hipodrom I, Sibiu
69 500 €
1 738 € pentru m²
2-cam 40 m² 4/4 p

BLACK FRIDAY - Profită de cea mai bună perioadă din an pentru a deveni proprietar! Reducere de 8.000 euro Preț vechi: 77.500 euro Preț promoțional: 69.500euro Apartament 2 camere, 46 mp - zona Rahovei, Sibiu De vânzare apartament cu 2 camere, semidecomandat, situat la etajul 4/4 al unui bloc cu acoperiș din țiglă. Detalii: Suprafață utilă: 46 mp Compartimentare practică: living, dormitor, bucătărie, baie, hol și balcon Mobilat și utilat complet - disponibil imediat Izolat termic, geamuri termopan Acoperiș refăcut - bloc bine întreținut Localizare: zona Rahovei - aproape de magazine, mijloace de transport, școli și alte facilități. Apartamentul se pretează atât pentru locuință proprie, cât și ca investiție pentru închiriere. Pentru informații și vizionări:

Apartament 2 camere I Mobilat I Utilat complet I Parter
Apartament 2 camere I Mobilat I Utilat complet I Parter Lazaret, Sibiu
78 000 €
1 857 € pentru m²
2-cam 42 m²

MAAC imobiliare va propune spre vânzare un apartament cu 2 camere, mobilat și utilat, situat la parterul unui bloc reabilitat în totalitate, amplasat în zona Lazaret, aproape de ieșirea pe autostradă. Pentru mai multe detalii precizați ca ați văzut anunțul cu ID CP2861239

Deschide harta Harta