12 obiecte

Vanzare Apartament 2 camere/Soseaua Alexandriei-Smardan
Vanzare Apartament 2 camere/Soseaua Alexandriei-Smardan Bragadiru, Ilfov
76 500 €
1 443 € pentru m²
2-cam 53 m² 1/5 p

Bloc nou Soseaua Alexandriei vis a vis de MC *Descriere:* Vă oferim posibilitatea de a achiziționa un apartament situat Bragadiru, într-o zonă ce oferă acces facil către numeroase facilități și artere importante *Caracteristici Apartament:* - *Suprafață aprox. 54 mp - *Camere:* 2 - *Băi:* 1 -loc de parcare 7500 euro *Facilități și Vecinătăți:* Apartamentul se află în imediata apropiere a următoarelor facilități: - Spații Comerciale - Stație STB - Străzi Asfaltate, Iluminate Public - Supraveghere Video - Acces facil către Prelungirea Ghencea si Bucuresti -scoala -gradinita Bransat la utilitatile orasului (apa, canalizare, curent electric,gaz), contorizarea fiind individuala.Termen predare august 2026 Pozele din interior au caracter informativ,va puteti personaliza locuinta prin alegerea finisajelor interioare (gresie, faianta, parchet, usi de interior). *Modalități de Achiziție:* Apartamentul poate fi achiziționat prin: 1. Plată Cash 2. Credit Bancar Pentru detalii suplimentare sau pentru a programa o vizionare, vă rugăm să ne contactați la număr de telefon sau să ne trimiteți un mesaj privat.

2 Camere | Bragadiru | Soseaua Alexandriei | Bloc Nou |
2 Camere | Bragadiru | Soseaua Alexandriei | Bloc Nou | Bragadiru, Ilfov
89 700 €
1 495 € pentru m²
2-cam 60 m² 1/3 p

ID : P217909 Art Consult Imob va propune : **Vânzare 18 apartamente într-un bloc nou - finalizat 2025** Bloc nou, construit în 2025, situat într-o zonă liniștită și în plină dezvoltare. Clădirea se află la stadiul „alb”, oferind cumpărătorilor posibilitatea de a alege **finisajele după propriul gust și stil**. **Tipuri de apartamente disponibile:** * 2 camere decomandate * Studio dublu (open space sau decomandat) Toate apartamentele se predau **la cheie**, cu finisaje incluse în preț, realizate din **gama Casa Bella**: Centrală termică proprie Calorifere Obiecte sanitare moderne Gresie, faianță, parchet Uși de interior **Preț: ** 1.495 €/mp (TVA inclus) **Modalitate de plată: ** se acceptă **credit ipotecar bancar** **Parcare disponibilă: ** 5.000 € (TVA inclus), se achiziționează separat Un proiect modern, ideal pentru locuire sau investiție, cu posibilitatea de personalizare completă a spațiului! Pentru detalii, disponibilitate și vizionări, vă stăm la dispoziție. Agent : Adela Lupu

Apartament cu 2 camere decomandat,sos Alexandriei Bragadiru
Apartament cu 2 camere decomandat,sos Alexandriei Bragadiru Bragadiru, Ilfov
68 000 €
1 172 € pentru m²
2-cam 58 m² 1/5 p

Vă ofer spre vanzare apartament cu 2 camere, suprafata 58 mp, situat chiar pe Sos Alexandriei, disponibil pentru mutare imediata. Apartamentul este disponibil la etajil 1, intr-un bloc construit in anul 2024, dotat cu lift, cu regim de inaltime P+5E+Pod, intre etajul 5 si pod avem placa de beton.Datorită poziției excelente, apartamentul este ideal atât pentru locuit cat și pentru închiriat. Apartamentele se predau finisate, dotate cu centrala termica si calorifere si baile utilate. Se pot alege finisajele dupa propriul plac, in apartamentele care inca nu au finisajele puse.Blocul are o pozitie foarte buna, strazile sunt asfaltate si iluminate, langa bloc avem statia de autobuz cu liniile 421 / 424 / 481 / 484, iar la parterul blocului avem mai multe spatii comerciale. In proximitate regasim Penny Market, MC Donald's, Lidl, Profi cu program non-stop, farmacie, centru medical, centru comercial 'La Strada. Pretul este de 68000 euro plus TVA, comision 0. Apartamentul se vinde direct de la dezvoltator.Pentru mai multe detalii si vizionari va stau la dispozitie la numarul de telefon.

2 camere - 47,1 mp, bloc nou 2025, Șos. Alexandriei
2 camere - 47,1 mp, bloc nou 2025, Șos. Alexandriei Bragadiru, Ilfov
70 650 €
1 503 € pentru m²
2-cam 47 m² 1/3 p

De vânzare apartament cu 2 camere, având o suprafață utilă de 47,1 mp, disponibil la etajele 1, 2 și 3 într-un bloc nou (P+3E+Pod cu placă de beton), finalizat în anul 2025. Predare la cheie, cu finisaje interioare la alegerea cumpărătorului Centrală termică pe gaz și calorifere

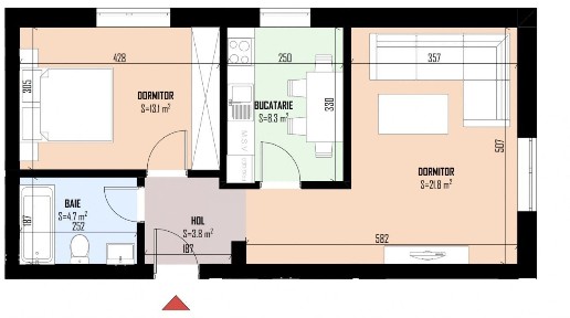
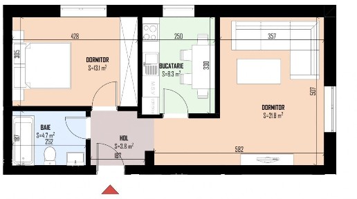
Apartament 2 camere,șoseaua Alexandriei Bragadiru
Apartament 2 camere,șoseaua Alexandriei Bragadiru Bragadiru, Ilfov
67 000 €
1 426 € pentru m²
2-cam 47 m² 1/6 p

Va propunem spre vanzare un apartament cu 2 camere,decomandat situat intr-o zona foarte solicitata cu o pozitionare excelenta din Bragadiru, Șoseaua Alexandriei,imobilul este compartimentat astfel: hol, baie, dormitor, living,bucatarie,balcoan Etj 1/6 In zona sunt in acest moment o sumedenie de magazine de la cele mai mici pana la cele mai mari:Kaufland,Lidl, Penny, McDonalds, MegaImage, LeroyMerlin, restaurante, cabinete medicale, farmacii, frizerii, gradinita de stat,stația STB,484,485 cea mai apropiata este la 1 minut de mers pe jos. Racordat la toate utilitatile : Apa & Canal, Gaze, Electricitate. Dispune de suprafata utila de 47 mp. La pretul de 67000 euro Oferim gratuit consiliere bancara si sprijin pentru obtinerea creditului ipotecar. Pentru mai multe detalii nu ezitati sa ma contactati, veti avea parte de consiliere profesionale in ceea ce priveste achizitionarea acestui imobil sau a altuia asemanator din zona Scandinavia, Bragadiru telefon

Vanzare Apartament 2 camere/Soseaua Alexandriei-Smardan
Vanzare Apartament 2 camere/Soseaua Alexandriei-Smardan Bragadiru, Ilfov
81 000 €
1 446 € pentru m²
2-cam 56 m² 3/5 p

De vanzare apartament cu 2 camere, suprafata 56 mp,. Apartamentul este disponibil la etajul 3 intr-un bloc construit in anul 2024, dotat cu lift, cu regim de inaltime P+5 Datorită poziției excelente, apartamentul este ideal atât pentru locuit cat și pentru închiriat. Apartamentele se predau finisate, dotate cu centrala termica si calorifere si baile utilate. Se pot alege finisajele dupa propriul plac Blocul are o pozitie foarte buna, strazile sunt asfaltate si iluminate, langa bloc avem statia de autobuz cu liniile 421 / 424 / 481 / 484, iar la parterul blocului avem mai multe spatii comerciale. In proximitate regasim Penny Market, MC Donald's, Lidl, Profi cu program non-stop, farmacie, centru medical, centru comercial 'La Strada', sala de fitness, gradinita, toate la doar cateva minute distanta.

Apartament 2 camere decomandat,sos Alexandriei Bragadiru
Apartament 2 camere decomandat,sos Alexandriei Bragadiru Bragadiru, Ilfov
71 000 €
1 246 € pentru m²
2-cam 57 m² 5/5 p

Va propunem spre vanzare un apartament cu 2 camere situat intr-o zona foarte solicitata cu o pozitionare excelenta din Bragadiru șoseaua Alexandriei,Imobilul este compartimentat astfel: hol, baie, dormitor, living,bucatarie,2 balcoane Etj 5/5 In zona sunt in acest moment o sumedenie de magazine de la cele mai mici pana la cele mai mari:kaufland,Lidl, Penny, McDonalds, MegaImage, LeroyMerlin, restaurante, cabinete medicale, farmacii, frizerii, gradinita de stat,stația STB,484, cea mai apropiata este la 1 minut de mers pe jos. Racordat la toate utilitatile : Apa & Canal, Gaze, Electricitate. Dispune de suprafata utila de 57 mp. La pretul de 71000 euro plus TVA. Oferim gratuit consiliere bancara si sprijin pentru obtinerea creditului ipotecar. Pentru mai multe detalii nu ezitati sa ma contactati, veti avea parte de consiliere profesionale in ceea ce priveste achizitionarea acestui imobil sau a altuia asemanator din zona Scandinavia Bragadiru telefon

Vanzare Apartament 2 camere/Soseaua Alexandriei-Smardan
Vanzare Apartament 2 camere/Soseaua Alexandriei-Smardan Bragadiru, Ilfov
79 000 €
1 463 € pentru m²
2-cam 54 m² 5/5 p

De vanzare apartament cu 2 camere, suprafata 54mp,. Apartamentul este disponibil la etajul 5 intr-un bloc construit in anul 2024, dotat cu lift, cu regim de inaltime P+5 Datorită poziției excelente, apartamentul este ideal atât pentru locuit cat și pentru închiriat. Apartamentele se predau finisate, dotate cu centrala termica si calorifere si baile utilate. Se pot alege finisajele dupa propriul plac Blocul are o pozitie foarte buna, strazile sunt asfaltate si iluminate, langa bloc avem statia de autobuz cu liniile 421 / 424 / 481 / 484, iar la parterul blocului avem mai multe spatii comerciale. In proximitate regasim Penny Market, MC Donald's, Lidl, Profi cu program non-stop, farmacie, centru medical, centru comercial 'La Strada', sala de fitness, gradinita, toate la doar cateva minute distanta.

Vând apartament 2 camere Bragadiru
Vând apartament 2 camere Bragadiru Bragadiru, Ilfov
72 000 €
1 309 € pentru m²
2-cam 55 m² 2 p

Proprietar, ofer spre vanzare apartament decomandat cu 2 camere mobilat si utilat, in Bragadiru, strada Celofibrei nr.29, cu acces rapid din Soseaua Alexandriei. Distanta pana la statia de autobuz este de 500 m pietonal. Apartamentul se afla intr-un bloc in regim P+2, are 55,58 mp utili, hol de acces cu spatiu de depozitare si loc de parcare inclus. Anul constructiei: 2017 Este compus din: * Living 19,01 * Dormitor 15,11 * Bucatarie 8,11 * Baie 4,24 * Hol 7,22 * Balcon 1,89 Apartamentul este dotat cu electrocasnice clasa energetica A+++ precum: aer conditionat, masina de spalat rufe, frigider. Imobilul este racordat la toate utilitatile orasului: apa, gaz, curent, canalizare si se afla intr-o zona linistita. Apartamentul se vinde partial mobilat. * Pret: 72000 euro negociabil Pentru detalii :

Apartament cu 2 camere șoseaua Alexandriei Bragadiru
Apartament cu 2 camere șoseaua Alexandriei Bragadiru Bragadiru, Ilfov
55 000 €
1 196 € pentru m²
2-cam 46 m² 2/3 p

Vă ofer,spre vânzare, apartament cu 2 camere la cheie. Apartamentul are o suprafata de 46 mp utili, si este disponibil la etajele parter, 2/3. Imobilul este dispus in felul urmator: 1 living + bucatarie, 1 baie, 1dormitor + 1 balcon. Apartamentul este dotat cu centrala + termostat iar incalzirea se face prin calorifere. Finisajele sunt peste media zonei. Imobilul a fost construit in anul 2024. Apartamentul este racordata la toate utilitățile : canalizare, apa curenta, gaze si electricitate. La pretul de 55000 euro. Vecinatati: Mega Image, Profi non-stop, Jisk, macelarie, frizerie, salon de infrumusetare, pizzerie, aprozar, restaurant, cofetarie, exchange, casa de pariuri sportive, benzinarie, atm, Leroy Merlin, etc. Pentru intrebari suplimentare va stau la dispozitie de luni pana duminică,la numărul de telefon

Apartament 2 camere-Acte finalizate-Mutare imediata-TVA inclus
Apartament 2 camere-Acte finalizate-Mutare imediata-TVA inclus Strada Monumentului, Bragadiru, Ilfov
58 500 €
1 300 € pentru m²
2-cam 45 m² 3/3 p

Oferta Exclusiva. Avem cheile proprietatii. Galaxy Imob va ofera spre vanzare un apartament 2 camere, ce face parte dintr un nou proiect modern situat in Bragadiru, sos. Alexandriei-zona Leroy Merlin si la 300m de statia STB si in apropiere de Kaufland. Apartamentul are o suprafata de 45 mp, situat la etajul 3 al unui bloc nou cu regim de inaltime P+3, construit in anul 2023. Apartamentul se preda finisat la cheie cu gresie, faianta, obiecte sanitare, centrala, calorifere, usi interior, parchet. Imobilul este racordat la toate utilitatile (canalizare,apa,curent,gaz). Comision 0% la cumparare. Pret 58.500euro TVA inclus Pentru mai multe detalii sunati la

Apartament 2 camere decomandat,sos. Alexandriei Bragadiru
Apartament 2 camere decomandat,sos. Alexandriei Bragadiru Bragadiru, Ilfov
71 000 €
1 246 € pentru m²
2-cam 57 m² 1/5 p

Va propunem spre vanzare un apartament cu 2 camere situat intr-o zona foarte solicitata cu o pozitionare excelenta din Bragadiru șoseaua Alexandriei,Imobilul este compartimentat astfel: hol, baie, dormitor, living,bucatarie,2 balcoane Etj 1/5 In zona sunt in acest moment o sumedenie de magazine de la cele mai mici pana la cele mai mari:kaufland,Lidl, Penny, McDonalds, MegaImage, LeroyMerlin, restaurante, cabinete medicale, farmacii, frizerii, gradinita de stat,stația STB,484, cea mai apropiata este la 1 minut de mers pe jos. Racordat la toate utilitatile : Apa & Canal, Gaze, Electricitate. Dispune de suprafata utila de 57 mp. La pretul de 71000 euro plus TVA. Oferim gratuit consiliere bancara si sprijin pentru obtinerea creditului ipotecar. Pentru mai multe detalii nu ezitati sa ma contactati, veti avea parte de consiliere profesionale in ceea ce priveste achizitionarea acestui imobil sau a altuia asemanator din zona Scandinavia Bragadiru telefon

Deschide harta Harta