23 obiecte

Casa RediuValea Lupului,Beci,Foisor,Placa,Pod mansardabil,ASFALT
Casa RediuValea Lupului,Beci,Foisor,Placa,Pod mansardabil,ASFALT Strada Tudor Vianu, Rediu, Iasi
200 000 €
2 222 € pentru m²
4-cam 90 m²

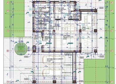
Casa individuala Rediu |Mobilata-utilata|400 mp teren | Pod locuibil 55 mp | Foisor + Beci + Camera Tehnica Va prezentam spre vanzare casa individuala, plan Parter aprox 90 mp utili + pod de 55 mp locuibil, construita pe un teren de 400 mp, avand terasa acoperita, camera tehnica, beci, foisor + baie, situata in Rediu, intr-o zona linistita si usor accesibila la strada asfaltata. Imobilul este racordat la toate utilitatile (apa, curent electric, gaze naturale si canalizare) Constructia este realizata pe fundatie din beton armat cu talpa, hidroizolata si termoizolata cu polistiren extrudat de 5 cm, structura pe zidarie portanta, caramida portanta BKS de 25 cm, termoizolata la exterior cu polistiren de 15 cm, EPS 80, placa la pod din beton armat, pod izolat cu spuma poliuretanica si acoperis din tabla mata de 0.5 mm, tip Lindab, garantie 50 ani. Compartimentare: Hol Living luminos Bucatarie open space Baie 2 dormitoare de 14 mp fiecare Dressing Terasa acoperita Foisor Camera tehnica Beci Dotari si finisaje Tamplaria marca Salamander, cu 7 camere, 3 chedere si sticla tripan, pentru izolatie termica si fonica superioara Sistem de incalzire in pardoseala, cu distribuitor de caldura cu grup de amestec si pompa, termostat de ambient Centrala termica in condensare marca Ariston Finisaje interioare: parchet special pentru incalzirea in pardoseala, gresie si faianta portelanata in bucatarie si bai, glafuri din travetin interior exterior Placa la pod din beton armat - termoizolata cu polistiren de 5 cm + sapa Podul este termoizolat cu spuma poliuretanica cu celula inchisa Podul generos de 55 mp utili + spatii de depozitare, este prevazut cu 2 ferestre mari special conceput pentru o compartimentare eficienta: 2 dormitoare si o baie. Instalatiile (apa, canalizare, curent și caldura) sunt trase pe poziție, pregătite pentru amenajarea imediata a celor două dormitoare și a unei băi suplimentare. Amenajari exterioare: trotuare cu rigole, terasa si doua locuri de parcare - finisaj beton amprentat Poarta pe role cu infrastructura pentru automatizare Pret: 200.000 euro. (mobilata utilata complet) Se accepta plata cash sau credit ipotecar. Suna la

Casa eleganta,zona centrala Aiton,cu ciubar,gradina si panouri fotovol
Casa eleganta,zona centrala Aiton,cu ciubar,gradina si panouri fotovol Aiton, Cluj
329 000 €
2 419 € pentru m²
4-cam 136 m²

Aceasta casa spatioasa pe doua niveluri,de 142 mp utili-va poate oferii tot ce aveti nevoie pentru a va simtii,acasa,chiar in centrul Aitonului,langa Primarie La parter avem:living,bucatarie,camara,baie,hol.scari interioare din lemn Etaj: hol.baie,doua dormitoare,dressing si un balcon cu o vedere frumoasa Casa se vinde utilata si mobilata ( plita electrica,cuptor,aragaz,mobilier calitativ,etc)-dvoastra nefiind obligat sa faceti investitii in acest sens Curtea este amenajata frumos,cu pavele bicolore,aveti si un ciubar din lemn si o pergola cu cuptor,unde sa coaceti cea mai buna paine De asemenea exista si garaj, anexe si foarte important-panouri fotovoltaice,precum si o suprafata generoasa de gradina Trenul liber de aproximativ 1200 mp,va ofera posibilitatea de a mai construi o casa,daca se doreste acest lucru Va asteptam sa o vedeti si sa simtiti daca este acel loc pe care sa il numiti, ACASA

Casa de vanzare la 20 km de Cluj
Casa de vanzare la 20 km de Cluj Rediu, Aiton, Cluj
150 000 €
1 705 € pentru m²
4-cam 88 m²

GDN imobiliare intermediază spre vânzare casă cu teren la 20 km de Cluj! Această proprietate poate deveni mini-ferma dumneavoastră, atât pentru afacere cât și un loc de liniște pentru familie! Întreaga proprietate se vinde cu tot cu teren astfel: - casă cu etaj (2 camere parter, 2 camere etaj + pod și beci), bucătărie de vară, șură și poiata - teren arabil - livadă cu pomi Terenul dispune de fântână proprie, apă de la rețeaua comunală (Arieș Turda), gaz și curent electric. Locația: este in jud. Cluj- 20 km de orașul Cluj-Napoca, 20 km de orașul Turda (maxim 30 minute cu mașina). Mijloc de transport în comun de la oraș. Pentru vizionare sunați cu încredere!

Casa renovabila de vanzare cu teren de 2100 mp Rediu, Aiton, Cluj
140 000 €
1 489 € pentru m²
5-cam 94 m²

Casă individuală cu teren generos de 2100 mp - Rediu, zonă liniștită, ideală pentru investiție sau renovare. Vă propunem spre vânzare o proprietate situată în localitatea Rediu, într-o zonă liniștită și aerisită, perfectă pentru cei care își doresc intimitate și spațiu generos. Imobilul este amplasat pe un teren de aproximativ 21 de ari (2100 mp), oferind multiple posibilități de utilizare renovare, extindere, investiție sau construcție nouă. Casa este o construcție solidă, cu regim de înălțime parter + etaj, compartimentată clasic, cu acces separat la etaj prin scară exterioară. Proprietatea necesită renovare, fiind ideală pentru personalizare după propriile preferințe sau pentru reconversie. Dispune de apa, curent, gaz. Pentru mai multe detalii sau vizionare nu ezitati sa ne contactati.

Casa individuala moderna in sat Rediu
Casa individuala moderna in sat Rediu Rediu, Aiton, Cluj
245 000 €
1 531 € pentru m²
6-cam 160 m²

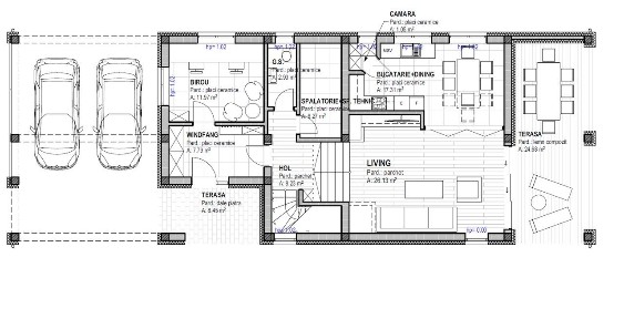
Vă propunem spre vânzare o casă individuală situată în satul Rediu, într-o zonă liniștită și aerisită, ideală pentru locuit, la doar câteva minute de Cluj-Napoca. Proprietatea este amplasată pe un teren generos de 1000 mp, oferind intimitate, spațiu verde și multiple posibilități de amenajare. Locuința are o suprafață utilă de 160 mp și o suprafață construită de 172 mp, incluzând un garaj spațios.Compartimentarea este modernă și practică, cu living luminos și bucătărie open space, trei dormitoare, două holuri, cameră tehnică și acces la pod pentru depozitare. De asemenea, casa beneficiază de terasă și curte generoasă, ideale pentru relaxare. Construcția este realizată din BCA și dispune de încălzire în pardoseală, oferind un nivel ridicat de confort. Imobilul se vinde la stadiul de semifinisat, ceea ce permite viitorului proprietar să își personalizeze finisajele după propriul stil și preferințe. Proprietatea este racordată la fosă septică și dispune de acces auto facil, poartă și spațiu bine organizat. Această casă reprezintă o alegere excelentă pentru o familie care își dorește liniște, spațiu și confort, într-o zonă în plină dezvoltare, aproape de oraș. Pentru o vizionare nu ezitati sa ne contactati.

Casa individuala, 2 camere si teren intravilan in suprafata de 1500 mp
Casa individuala, 2 camere si teren intravilan in suprafata de 1500 mp Cluj, Aiton
97 000 €
1 902 € pentru m²
2-cam 51 m²

Imobil situat in localitatea Aiton, strada Șaguna Detalii proprietate: Teren intravilan cu suprafata totala de 1500 mp Casa familiala dispusa pe un nivel An constructie: 1960 Suprafata construita 76 mp Suprafata utila 51 mp Realizata pe fundatie de piatra si beton Pereti din chirpici Acoperis tip sarpanta din lemn si invelitoare din tigla Compusa din 2 camere, bucatarie, camara si hol Sistem de incalzire: soba cu lemne Fantana proprie Retea de gaz si apa la poarta Retea energie electrica existenta la proprietate Anexe: sura si poiata Casa necesita renovare

Vand casa cu teren in localitatea Rediu Aiton Cluj
Vand casa cu teren in localitatea Rediu Aiton Cluj Cluj, Rediu
59 000 €
1 475 € pentru m²
40 m²

Vand casa cu teren in localitatea Rediu Aiton Cluj in sat. Avem două parcele: 1. Teren cu casă pe Strada Lungă 312. Casa are două camere și un hol, aproximativ 40 de m², curentul tras și se poate face extindere. Casa este amplasată pe un teren de 590 m² cu front la strada asfaltată, unde se găsește și gazul, apa și canalizarea. Prețul este de 59000E - 100 €/m² fix. 2. Câțiva metri mai sus cu aceste pe un drum pietruit este o altă parcelă intravilană de 2327 m². Prețul 60 € metru pătrat. Terenurile se vând împreună sau separat. Există acte: Titlu de proprietate Documentație cadastrală Certificate de urbanism în vederea construirii. Dacă sunteți în zonă puteți trece să vedeți casa pe exterior de la drum fără să mai ne anunțați. Pentru detalii vă rog foarte frumos să sunați !

Vand casa la rosu P+M,Aiton jud Cluj
Vand casa la rosu P+M,Aiton jud Cluj Cluj, Aiton
165 000 €
1 375 € pentru m²
120 m²

Vând casă la roșu P+M,casa este construită din cărămidă,acoperiș din țiglă ceramică,tencuită la interior,suprafața utilă 70mp living*bucatarie,1 baie,1camera tehnica,mansarda 50mp se poate compartimenta după plac,casa a fost construita în 2019,terenul aferent are 1240mp front de 15 ml la strada la drum public asfaltat cu toate utilitățile la strada (gaz,apă,curent,fibra optica)casa este situată în comuna Aiton județul Cluj,pt mai multe informații nu ezitați să sunați!

Casa de vanzare Aiton
Casa de vanzare Aiton Rediu, Aiton, Cluj
175 000 €
1 862 € pentru m²
4-cam 94 m²

Blitz va propune o locuinta individuala potrivita atat pentru locuit permanent, dar si pentru vacanta daca doriti liniste si pace pe timp de weekend. Casa se afla la 20 km de Cluj-napoca si are o expunere sud estica beneficiand de o luminozitate crescuta in cea mai mare parte a zilei. Casa este compartimentata astfel : bucatarie cu living open space, 2 dormitoare o baie si o camera care poate fi birou sau dressing. Utilitatile disponibile sunt: curent, gaz, fosa septica, iar proiectul pentru canalizare este in derulare. Casa se preda la stadiu de semifinisat. Pentru detalii suplimentare va invitam sa programati o vizionare la numarul de telefon afisat.

Casa individuala premium cu piscina exterioara
Casa individuala premium cu piscina exterioara Rediu, Aiton, Cluj
1 390 000 €
3 089 € pentru m²
10-cam 450 m²

Blitz va ofera spre achiziție o reședință exclusivistă amplasată într-un cadru rezidențial nou din comuna Aiton, o zonă apreciată pentru liniște și accesibilitate. Proprietatea beneficiază de conexiuni rapide către Cluj-Napoca (aproximativ 20 minute), nodul de autostradă din Tureni și, implicit, către Aeroportul Internațional Avram Iancu Cluj, aflat la circa 10-15 minute distanță. Această vilă individuală se remarcă prin designul arhitectural modern, suprafețele generoase și nivelul ridicat al finisajelor, fiind concepută pentru un stil de viață confortabil, elegant și eficient. Compartimentare inteligentă - Spațiu și armonie Parterul - zona de zi și dormitoarele Interiorul este dominat de o zonă open-space amplă, scăldată în lumină naturală datorită vitrajelor extinse. Atmosfera este una sofisticată, dar primitoare. • Living spațios, ideal pentru relaxare și socializare; • Bucătărie complet echipată cu electrocasnice premium Miele; • Zonă de dining potrivită pentru mese în familie sau întâlniri cu până la 10 invitați; • Spații auxiliare bine organizate: cămară și dressing; • Dormitor pentru oaspeți cu baie proprie; • Birou dedicat activităților profesionale desfășurate de acasă; • Baie de serviciu; • Două dormitoare pentru copii, fiecare cu baie proprie; • Suită matrimonială impresionantă, cu dressing generos și baie privată amenajată la standarde premium. Subsolul - zonă multifuncțională Nivelul inferior este gândit pentru relaxare și utilitate: • Cameră de hobby cu masă de biliard și sistem performant de ventilație; • Două încăperi mari pentru depozitare; • Spălătorie și cameră tehnică; • Sală de fitness; • Zonă wellness cu saună și perete decorativ din sare naturală. Dotări și tehnologie de ultimă generație Imobilul se predă complet mobilat și utilat, integrând branduri de renume precum Miele, Bang & Olufsen și Villeroy & Boch. Confortul este susținut de: • Sistem smart home pentru control integrat; • Jaluzele electrice automatizate prin stație meteo; • Sistem de alarmă și supraveghere video; • Încălzire prin centrală pe gaz și ventiloconvectoare; • Panouri fotovoltaice cu putere instalată de 25 kW, pentru eficiență energetică sporită Exterior - Relaxare la tine acasă Curtea amenajată este un veritabil spațiu de recreere, având ca element principal o piscină exterioară încălzită, cu o suprafață impresionantă de 185 mp. Proprietatea mai include: • Garaj pentru două autoturisme; • Terasă acoperită; • Zonă de joacă pentru copii; • Foișor echipat pentru barbecue și bar. această vilă reprezintă o alegere ideală pentru cei care își doresc intimitate, confort și acces rapid către oraș, fără a renunța la liniștea unei comunități selecte. Vă invităm să descoperiți această proprietate printr-o vizionare !

Casa de vanzare sat Rediu
Casa de vanzare sat Rediu Cluj, Rediu
150 000 €
2-cam

Se vinde casa și grădina cu suprafața de 2188 mp. Proprietatea este formată din: * casă cu etaj (2 camere parter, 2 camere etaj + pod și beci) * bucătărie de vară * șură și poiata * teren arabil * livada cu pomi Terenul dispune de fântână proprie, apă de la rețeaua comunală (Arieș Turda), gaz și curent electric. Locația: sat Rediu, comuna Aiton, jud. Cluj- 20 km de orașul Cluj-Napoca, 20 km de orașul Turda (maxim 30 minute cu mașina). Mijloc de transport în comun (CTP- M61) Pentru vizionari și informații suplimentare sunați la: 0264285083, 07******86

Casa individuala 256 mp utili, teren 2000 mp, Aiton, garaj dublu
Casa individuala 256 mp utili, teren 2000 mp, Aiton, garaj dublu Aiton, Cluj
340 000 €
1 328 € pentru m²
4-cam 256 m²

Va prezentam spre vanzare o casa individuala situata in localitatea Aiton, in apropiere de Cluj-Napoca, amplasata pe un teren generos de 2.000 mp, intr-o zona linistita, cu priveliste deschisa si acces facil. Proprietatea este dispusa pe regim de inaltime Parter + Mansarda, are o suprafata utila de 256 mp si se vinde la stadiul de semifinisat, oferind posibilitatea amenajarii interioare conform preferintelor viitorului proprietar. Constructia este realizata din materiale de calitate si proiectata pentru a oferi spatii generoase si functionalitate. Compartimentare Parter: - living spatios, cu suprafata de 34,38 mp, configurat ca zona principala de relaxare; - bucatarie inchisa, cu suprafata de 24,78 mp; - hol de acces si casa scarii; - baie generoasa, cu suprafata de 16,82 mp; - spatii auxiliare si depozitare. Atat din living, cat si din bucatarie, se face accesul direct catre terasa exterioara de 43,13 mp, un spatiu ideal pentru relaxare si activitati in aer liber. Mansarda: - doua dormitoare de aproximativ 15 mp fiecare, cu acces pe un balcon comun de 9,68 mp; - baie comuna; - dormitor matrimonial cu suprafata de 17,06 mp, care beneficiaza de: dressing propriu de 5,16 mp; baie proprie de 8,14 mp; sauna proprie de 10,59 mp; balcon propriu de 12,39 mp; - hol si spatii de circulatie. Compartimentarea este bine optimizata, oferind separarea eficienta intre zona de zi si zona de noapte. Separat de casa se afla un garaj generos pentru 2 autoturisme, care include hol de acces si o camera de depozitare de aproximativ 10 mp, ideala pentru organizarea eficienta a spatiilor auxiliare. Curtea este complet pavata, iar terenul generos permite amenajarea unei gradini, zone de relaxare sau altor facilitati exterioare. Detalii tehnice si constructie - zidarie din caramida Porotherm de 30 cm; - izolatie exterioara cu polistiren de 10 cm, finisata cu tencuiala decorativa Baumit; - acoperis din tigla Bramac; - izolatie acoperis cu vata minerala de 20 cm si folie anticondens; - tamplarie PVC Salamander gri, cu geam tripan; -ferestre de mansarda Velux originale; - incalzire in pardoseala pe ambele niveluri, cu automatizare individuala pe fiecare incapere; - centrala termica proprie; - pereti interiori tencuiti mecanizat. Utilitati Proprietatea beneficiaza de toate utilitatile: - apa; - gaz; - curent electric; - canalizare; - internet si cablu TV. Aceasta proprietate reprezinta o alegere ideala pentru cei care cauta o casa spatioasa, bine construita, amplasata pe un teren generos si care ofera posibilitatea personalizarii finisajelor, intr-o zona linistita, cu acces rapid catre Cluj-Napoca. Se accepta atat plata din surse proprii, cat si achizitia prin credit ipotecar. Pentru mai multe detalii si programarea unei vizionari, va stam la dispozitie.

Casa individuala premium| piscina exterioara |Teren 3730 mp| la 11 km
Casa individuala premium| piscina exterioara |Teren 3730 mp| la 11 km Rediu, Aiton, Cluj
1 390 000 €
3 089 € pentru m²
5-cam 450 m²

Vă prezentăm o proprietate de excepție situată într-o zonă rezidențială noua,in comuna Aiton. Această vilă individuală impresionează prin eleganta arhitecturala, spatiul oferit, finisajele premium și facilitățile care oferă un stil de viață rafinat și relaxant. Accesul este foarte facil atat spre centrul Clujului (20 minute)cat si la nodul de autostrada de la Tureni de unde se ajunge in aproximativ 10-15 minute la Aeroportul International Avram Iancu Cluj. Parter - Spații generoase, lumină naturală și confort absolut: Zonă de zi open-space, inundată de lumină prin ferestre ample, cu un design aerisit și elegant; Living spațios, ideal pentru momente de familie sau întâlniri sociale; Bucătărie ultramodernă, complet echipată cu aparatură Miele; Dining ce poate acomoda 10 persoane; Cămară și dressing organizate eficient; Dormitor de oaspeți cu baie privată, oferind intimitate completă; Birou elegant, perfect pentru lucrul de acasă; Baie de serviciu; 2 dormitoare pentru copii + baie proprie modernă; Dormitor matrimonial spectaculos, cu dressing spațios și baie privată de lux; Subsol - Funcționalitate și relaxare într-un spațiu dedicat: Cameră de hobby cu masă de biliard, dotata cu sistem performant de ventilație cu aport de aer proaspăt; Două spații de depozitare mari, excelent organizate; Spălătorie și cameră tehnică; Sală de sport pentru activități zilnice și menținerea unui stil de viață activ; Baie cu saună și perete decorativ din sare naturală, pentru efecte benefice asupra sănătății și un plus de rafinament. Se vinde complet mobilată și utilată, cu electrocasnice și echipamente premium (Miele, Bang & Olufsen, Villeroy & Boch). Sistem smart home, care permite controlul inteligent al iluminatului, temperaturii și securității. Jaluzele electrice integrate, automatizate prin stație meteo inteligentă. Sistem de securitate de înaltă performanță, cu alarmă și supraveghere video. Încălzire cu centrală termică pe gaz, ventiloconvectoare. Panouri fotovoltaice de 25 kW, care asigură autonomie energetică. Elementul central al grădinii este o spectaculoasă piscină exterioară încălzită, cu 185 mp luciu de apă. Garaj dublu. Terasă acoperită ideală pentru relaxare în aer liber. Loc de joaca pentru copii. Foisor pentru Barbecue si Bar. Daca v-am starnit interesul cu aceasta proprietate, va invitam sa o vedeti!

Casa individuala 91mp util | Teren 2382mp | Front 39ml | Aiton
Casa individuala 91mp util | Teren 2382mp | Front 39ml | Aiton Aiton, Cluj
230 000 €
2 527 € pentru m²
2-cam 91 m²

Va propunem spre vanzare casa individuala situata la 20km de Cluj Napoca in satul Aiton. Casa a fost edificata in anul 1964 si a fost reabilitata termic fiind incadrata la clasa energetica B. Terenul total de care dispune proprietatea este in suprafata de 2382mp, iar frontul la strada este de 39m. Compartimentarea casei este gandita astfel: - Demisol : 2 boxe - Parter: 2 camere, 1 bucatarie, 1 hol si 1 baie Mai exista si o anexa de 56mp ce contine: - magazie lemne - loc depozitare - garaj Proprietatea este ideala atat pentru investitie, cat si pentru locuinta proprie. Confortul termic este asigurat de: centrala proprie, calorifere si de izolatia exterioara. In cazul in care se doreste exista si posibilitatea de reconectare a unui semineu la hornul casei pentru incalzire pe lemne. Predarea casei se face complet mobilata si utilata. Pentru mai multe detalii sau programarea unei vizionari, nu ezitati sa ne contactati! Garantam castigul reciproc. [ ID Proprietate: P12082 ]

Oaza de liniste aproape de oras - Casa de vis la doar 15 minute de C
Oaza de liniste aproape de oras - Casa de vis la doar 15 minute de C Aiton, Cluj
1 390 000 €
3 089 € pentru m²
8-cam 450 m²

Va invitam sa descoperiti o proprietate de vis, o adevarata capodopera arhitecturala situata in Rediu, la doar 15 minute de agitatia urbana a Clujului, intr-un cadru natural de poveste. Aceasta resedinta exclusivista se desfasoara pe un teren impresionant de 3750 mp, meticulos amenajat cu gazon, sisteme moderne de irigatie si iluminat, pomi fructiferi si plante ornamentale ce adauga un farmec deosebit gradinii. Aceasta casa spectaculoasa, cu un design contemporan si finisaje premium, se intinde pe doua nivele (subsol si parter) si redefineste conceptul de lux si confort. Subsol: Camera hobby ideala pentru relaxare, dotata cu un sistem avansat de aport de aer proaspat; Doua spatii de depozitare generoase, perfect organizate; Spalatorie si camera tehnica, utilate la cele mai inalte standarde; Sala de sport, pentru un stil de viata activ si sanatos; Baie exclusiva cu sauna, avand un perete din sare, care aduce un plus de eleganta si beneficii pentru sanatate. Parter: Zona de zi uluitoare, in stil open-space, cu ferestre imense ce inunda spatiul cu lumina naturala, compusa din: Living sofisticat, cu zone de relaxare generoase; Bucatarie ultra-moderna, complet echipata cu aparatura de top; Dining elegant, perfect pentru cine rafinate in familie sau cu prietenii; Camara si dressing incapatoare, cu spatii bine compartimentate; Dormitor de oaspeti rafinat, cu baie proprie; Un birou elegant; Dressing Baie de serviciu, pentru confortul zilnic; Zona de noapte dedicata relaxarii, ce include: Doua dormitoare pentru copii, cu baie moderna; Dormitor matrimonial spectaculos, cu dressing spatios si baie proprie luxoasa; Garaj dublu de mari dimensiuni, completat de o camera de depozitare cu acces din exterior. Aceasta casa impresioneaza prin deschiderea si luminozitatea spatiilor, gratie peretilor cortina din sticla de ultima generatie, ce ofera o izolare termica superioara. Confortul termic este asigurat de centrale termice pe gaz, iar pentru un plus de eficienta, casa dispune de un sistem de panouri fotovoltaice de 25kW, ceea ce reduce semnificativ costurile de intretinere. Tehnologie si Echipamente: Se vinde complet mobilata si utilata, cu echipamente high-end: Miele, Bang & Olufsen; Dotata cu un sistem smart home ce permite controlul complet al functiilor casei; Jaluzele electrice casetate, automatizate cu o statie meteo inteligenta; Sistem de securitate avansat cu alarma si camere video. Exterior de Vis: Piesa de rezistenta a proprietatii este piscina exterioara incalzita, impresionanta prin dimensiunile sale - 185 mp luciu de apa si o adancime de pana la 1,6 m - care promite verile de neuitat pe care le-ati visat intotdeauna. Aceasta proprietate nu este doar o casa, ci un refugiu de lux, o oaza de liniste si confort, in care fiecare detaliu a fost gandit pentru a oferi un stil de viata exclusivist. Oferind un amestec perfect de tehnologie moderna, design elegant si o locatie privilegiata, aceasta resedinta reprezinta o oportunitate rara pe piata imobiliara din Cluj. Nu ratati ocazia de a viziona aceasta casa de vis! Va asteptam cu drag!

Casa individuala in apropiere de Cluj-Napoca si un teren generos de 23
Casa individuala in apropiere de Cluj-Napoca si un teren generos de 23 Aiton, Cluj
230 000 €
2 987 € pentru m²
2-cam 77 m²

Blitz va propune o locuinta individuala potrivita atat pentru locuit permanent, dar si pentru vacanta daca doriti liniste si pace pe timp de weekend. Casa se afla la 20 km de Cluj-napoca si are o expunere sud estica beneficiand de o luminozitate crescuta in cea mai mare parte a zilei. Constructia a fost realizata pe o fundatie de beton cu pereti din zidarie de piatra, acoperisul este tip sarpanta din lemn si invelitoare din tigla. Din punct de vedere al compartimentarii, locuinta este organizata pe 2 niveluri astfel: D+P. La demisol se regasesc doua boxe care pot fi utilizate ca si spatii de depozitare. La parter se afla o bucatarie complet utilata si mobilata, 2 camere, un hol si o baie. Beneficiati si de un teren generos, sub forma de platou, cu o suprafata de 2382 mp, ideal pentru relaxare, activitati de recreere sau gradinarit. Fiind o suprafata asa mare, frontul este unul pe masura, avand 38.8 m. In aceeasi curte se regaseste si o anexa gospodareasca de 56 mp realizata pe fundatie din piatra, pereti din lemn si piatra, acoperis tip sarpanta din lemn si invelitoare din tigla, fiind organizata astfel: un grajd, o sura si o magazie. Utilitatile disponibile sunt: curent, gaz, fantana proprie, fosa septica, iar proiectul pentru canalizare este in derulare. Casa a fost reabilitata termic, izolata si dotata cu centrala proprie, actiuni in urma carora se incadreaza in clasa energetica B. Este prevazuta cu un horn pentru eventualitatea montarii unei sobe sau a unui semineu. Pentru detalii suplimentare va invitam sa programati o vizionare la numarul de telefon afisat.

Casa 4131 mp comuna Aiton
Casa 4131 mp comuna Aiton Aiton, Cluj
247 860 €
4 131 € pentru m²
3-cam 60 m²

Casă de Vânzare în Comuna Aiton - Oportunitate de Investiție! Explorați posibilitățile nelimitate ale acestui teren! Vă propunem spre vânzare o casă situată în comuna Aiton, pe un teren generos de 4131 mp, cu toate utilitățile disponibile. Această proprietate nu este doar un cămin, ci și o oportunitate excelentă pentru dezvoltare. Detalii Proprietate: Suprafață Teren: 4131 mp, ideal pentru construcția unui complex de vile Utilități: Toate utilitățile sunt disponibile, facilitând dezvoltarea rapidă a proiectului Grădină: Spațiu verde generos, perfect pentru amenajări exterioare Avantajele Locației: Situată într-o zonă liniștită și accesibilă, proprietatea oferă un cadru ideal pentru dezvoltarea unui complex rezidențial. Comuna Aiton se bucură de o comunitate prietenoasă și de un mediu natural plăcut, atrăgând atât locuitori permanenți, cât și turiști. Oportunitate de Investiție: Această proprietate este perfectă pentru dezvoltatori care doresc să construiască un complex de vile, oferind viitorilor locatari confortul și liniștea de care au nevoie. Nu ratați ocazia de a viziona această proprietate! Programați o vizionare pentru a discuta despre potențialul de dezvoltare și cum această casă poate deveni un cămin sau un proiect de succes. Contactați-ne pentru mai multe informații și pentru a programa vizionarea! Aici vă așteaptă oportunități nelimitate! ID.extern:P188

Duplex spatios 150 mp, teren 800 mp, carport pentru 2 masini
Duplex spatios 150 mp, teren 800 mp, carport pentru 2 masini Aiton, Cluj
220 000 €
1 467 € pentru m²
4-cam 150 m²

Blitz propune spre vânzare un duplex modern, cu grădină, la doar 15 km de Cluj-Napoca Proprietatea este parte a unei comunități noi, situată într-o zonă aflată în plină dezvoltare, cu expunere sudică și arhitectură contemporană. Imobilul este atent compartimentat, oferind spații luminoase și bine proporționate. Suprafață utilă: 150 mp Teren: 800 mp Compartimentare: Parter: living cu zonă de dining și acces la terasă, bucătărie închisă, baie, spațiu tehnic/spălătorie Etaj: dormitor matrimonial cu dressing și baie proprie, două dormitoare, baie secundară, logie, spațiu de depozitare Predare la semifinisat: pereți gletuiți, sape turnate, încălzire în pardoseală la parter, instalații trase pe poziții. Se predă racordată la toate utilitățile. O locuință ideală pentru familii, ce oferă intimitate, suprafață generoasă și o bună perspectivă investițională. Pentru detalii suplimentare sau programarea unei vizionări, vă invităm să ne contactați.

Teren 3200 mp! Casa 2 camere+bucatarie de vara+grajd, Aiton
Teren 3200 mp! Casa 2 camere+bucatarie de vara+grajd, Aiton Rediu, Aiton, Cluj
163 900 €
2 129 € pentru m²
2-cam 77 m²

Residence Imobiliare va ofera spre vanzare o casa individuala situata in comuna Aiton, satul Rediu, din judetul Cluj, pe strada principala. Locuinta are o suprafata de 77 mp si este dispusa pe 2 niveluri, dupa cum urmeaza: la subsol se afla o pivinita; la parter se afla o camera, o baie, un hol si o camara. Pe langa casa se mai afla 2 constructii, mai exact o bucatarie de vara si un grajd. Terenul se afla in intravilan, se afla la strada principala, are 2 fronturi, fiind pe colt, are toate utilitatile trase (canalizare, gaz, curent) si dipsune de o suprafata generoasa de 3270 mp care se poate vinde si parcelat. Proprietatea este o oportunitate buna atat pentru investitie cat si pentru locuinta si este disponibila imediat! Pentru mai multe detalii nu ezitati sa ma contactati! O zi minunata!

CASA 4 CAMERE 141 MP UTILI CURTE LIBERA 1688 MP TEREN TOTAL 1839
CASA 4 CAMERE 141 MP UTILI CURTE LIBERA 1688 MP TEREN TOTAL 1839 Aiton, Cluj
109 980 €
780 € pentru m²
4-cam 141 m²

Casă individuală de vânzare - Aiton, Strada Livezilor Oferim spre vânzare o casă individuală, situată în Aiton, pe Strada Livezilor, într-o zonă liniștită, cu acces facil. Detalii proprietate: Suprafață construită: 151 mp Suprafață utilă: 141 mp Teren total: 1.839 mp Deschidere la stradă: 32,54 ml Curte liberă: 1.688 mp An construcție: 1938 Compartimentare: 4 camere (4 dormitoare) 1 baie 1 bucătărie 1 verandă Caracteristici și dotări: Structură solidă: piatră naturală și zidărie din cărămidă Acoperiș: țiglă Sistem de încălzire: sobe pe lemne Fântână proprie + pompă de apă Rețea de apă curentă la stradă (branșament posibil) Fosa septică existentă Rețea de gaz la poartă (posibilitate de racordare) Canalizare în curs de introducere Izolație exterioară parțial nefinisată Alte detalii: Casa necesită renovare Stradă asfaltată până aproape de proprietate (ultimii ~30 m neasfaltați, dar accesibili) Situație juridică clară Pentru mai multe detalii și programarea unei vizionări, vă rugăm să ne contactați. Tel:

Deschide harta Harta