11 obiecte

Vând casa in Siminoc
Vând casa in Siminoc Constanta, Siminoc
92 500 €
925 € pentru m²
3-cam 100 m²

Vând casa in Siminoc P + 1 3 camere, bucătărie, baie + baie de serviciu, suprafata utila 100 mp, teren 490 mp Casa a fost izolata cu polistiren 15 cm, finisata cu tencuiala decorativa de calitate nemțească. Fosa septica ecologica tricompartimentata. Utilități: apa, curent, centrala noua pe lemne si cocs, conducta de gaz se afla la poarta. Accept plata si prin credit bancar. Distanta Siminoc - Constanța 20 km Pret 92. 500 euro negociabil

Visul unei familii incepe aici-Casa de vanzare -100 000 euro
Visul unei familii incepe aici-Casa de vanzare -100 000 euro Constanta, Murfatlar
100 000 €
5-cam

Casa confortabilă, 5 camere,teren 357 mp,bine întreținută ideală pentru familie,o vând complet mobilată și utilată întrucât voi pleca din țară.Casa a fost renovată acum 5 ani de zile,termopanele pe exterior la fel au fost schimbate,inclusiv acoperișul! Preț 100 000 euro ușor negociabil.Nr tel 07******35

Teren + casa batraneasca cu opțiuni de dezmembrare
Teren + casa batraneasca cu opțiuni de dezmembrare Constanta, Siminoc
115 000 €
1 075 € pentru m²
107 m²

De vânzare teren + casa batraneasca in localitatea Siminoc, județul Constanța. Terenul se poate dezmembra pana la un maxim de cca 1500 m2 doar teren si separat 541m2 plus casa. Detalii Proprietate: - suprafața teren: 2041 m2 situat in centrul localității. - deschidere teren: 33 m - suprafața casa: 107 m2 - casa se vinde parțial mobilata - acces la strada asfaltată - casa este racordata la curent, apa si tv/internet (Digi) - cutia de gaz la poarta - acces ușor la autostradă (2km) și la doar 30 min. de mare - proiect aprobat pentru canalizare in localitate Pentru mai multe detalii si vizionari contactați-mă!

Ocazie ! Constanta - Murfatlar Casa 4 camere cu teren 225 mp. 79.900 E
Ocazie ! Constanta - Murfatlar Casa 4 camere cu teren 225 mp. 79.900 E Murfatlar, Constanta
79 900 €
999 € pentru m²
4-cam 80 m²

Kronos Imobiliare va propune in Exclusivitate spre achizitie o casa cu 4 camere, baie, bucatarie, curte amenajata, foisor cu zona de gratar, avand o suprafata de 80 mp. cu teren 225 mp. situata intr-o zona foarte buna, centrala a localitatii Murfatlar in imediata apropiere a parcului central si a tuturor punctelor de interes ale zonei.

Casa cu teren de vanzare
Casa cu teren de vanzare Constanta, Murfatlar
130 000 €
1 429 € pentru m²
2-cam 91 m²

Vand casa batranesca reconditionata din chirpici si caramida cu teren 961mp Suprafata construita 91mp 2 dormitoare,living,baie,bucatarie hol generos. Incalzirea se face cu centrala pe gaz ariston cu butelii, pregatita pt bransarea la gaze. Casa este izolata cu polistiren eps80 de 10cm. Terenul are o deschidere de 15 m,gard de piatra naturala cu fier forjat si poarta electrica.pot trimite poze extra in privat la cerere.

EXCLUSIVITATE - Casă la sol | Murfatlar | Teren 300 mp
EXCLUSIVITATE - Casă la sol | Murfatlar | Teren 300 mp Murfatlar, Constanta
77 000 €
700 € pentru m²
3-cam 110 m²

Cod Agent ( D1 ) Vă prezentăm o proprietate disponibilă în Exclusivitate : casă la sol, complet mobilată și utilată, situată într-o zonă extrem de liniștită din Murfatlar. Detalii principale:

Vând casă la cheie,oraș Murfatlar jud Constanta
Vând casă la cheie,oraș Murfatlar jud Constanta Constanta, Murfatlar
139 999 €
1 273 € pentru m²
110 m²

Direct proprietar, ofer spre vanzare casa NOUA la cheie P+1 in orașul Murfatlar, judet Constanta-zona CENTRU ( parc, farmacie, primărie) cu toate utilitatile: apa, curent, canalizare. Casa este construita cu materiale de buna calitate, avand finisaje moderne. Imobilul se vinde la cheie, instalatiile electrice si termice pe pozitii (calorifere și centrala gaz), peretii gletuiti si zugraviti, parchet, gresie,fainta, usi interioare ( toate de înaltă calitate). La fundație, placă etc s-a folosit doar beton de CIFA. Este compusa din: 3 dormitoare, living+bucătărie open space, 2 bai (utilate complet), balcon etaj, hol etaj. Suprafata casei este de de 110 mp, iar terenul are 200 mp. Pentru a va muta aveți nevoie doar de mobilier! Preț: 139.999 euro Rog și ofer seriozitate! Mulțumesc frumos! 0 *************** 8

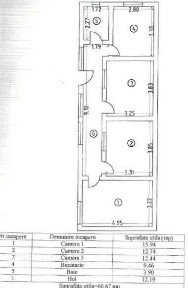
Casa 3 camere situata in Valul lui Traian, Str. Calea Dobrogei
Casa 3 camere situata in Valul lui Traian, Str. Calea Dobrogei Valu Lui Traian, Constanta
70 500 €
1 052 € pentru m²
3-cam 67 m²

Casa cu suprafata utila 66.67 mp compartimentata in 3 camere, baie, bucatarie si hol. Imobilul necesită renovare completă și oferă posibilitatea amenajării unei locuințe adaptate propriului stil. Terenul are o suprafață totală de 320 mp, iar curtea liberă măsoară aproximativ 235 mp. Poziționarea la strada principală reprezintă un avantaj major, asigurând vizibilitate și acces facil către toate punctele de interes din localitate. De asemenea, distanța până în municipiul Constanța este de aproximativ 10 minute, ceea ce oferă un echilibru ideal între liniștea unei zone rezidențiale retrase și proximitatea față de oraș. O proprietate cu potențial, potrivită pentru cei care își doresc să locuiască într-un mediu linistit, fără a renunța la accesul rapid către facilitățile urbane

Vila P+2 - 560m2 utili, Garaj, Panouri Solare + Baterii +Pompa Caldura
Vila P+2 - 560m2 utili, Garaj, Panouri Solare + Baterii +Pompa Caldura Siminoc, Murfatlar, Constanta
395 000 €
705 € pentru m²
4-cam 560 m²

Vila in Siminoc cu peste 560mp utili, dispusa pe 741mp de teren cu garaj 28mp, magazin 26mp, magazie 28 mp + constructie usoara 40mp. Panouri solare 11.5kw cu invertor hibrid de 8kw + baterii pentru stocare de 20kw. Casa este incalzita cu calorifere, cu distribuitoare separate pe fiecare etaj, Pompa de Caldura cu pompe si termostate separate pe fiecare etaj si temperatura se controleaza din telefon. magazinul este incalzit de la sistemul din casa. Este montata si centrala pe gaz si pot merge in paralel sau pe rand, prin butelie de 2200 litri de propan… gazele sunt la poarta dar nu sunt puse in functiune deocamdata. Racirea se face cu 5 aparate de aer conditionat de 12.000 btu - 2 la parter, 2 la etaj, 1 la mansarda/pod si toate aparatele se controleaza si din telefon. Toata casa esti izolata bine si dispune de geamuri si usi Qfort triplane in valoare de peste 50.000 euro 2 intrari in casa - usile din fata, usa mare Qfort cu intrare cu cod sau cheie + usa mare Gealan - intrare spate, usa mare Qfort, e intra in terasa inchisa de 15mp. de acolo in camera tehnica sau bucatarie. Parter (inaltime 2.55): - living 23mp cu bar cu geamuri triplane Qfort cu rulouri electrice cu telecomanda si bucatarie open space de 15mp, cu mobila bucatarie la comanda pe ambele parti, masina de spalat vase, tocator electric la chiuveta, filtre pentru apa, frigider dublu. - hol lat de 2m - total 13mp - dormitor/birou 13.6mp cu geam triplu Qfort si rulouri electrice cu telecomanda - baie 8.5 cu cabina de dus Etaj: - hol lat de 2m cu iesire in balconul din fata plus un alt hol mai micut totalizand 20mp inspre baie cu cada de 6.55mp - 4 dormitoare - 23.15mp si 15.10mp pe partea din spate a casei, cu iesire in balconul din spate de 15mp, inchisa cu geamuri mari triplane de la Qfort. - 15.10mp cu iesire in balconul din fata inchis cu geamuri mari triplane de la Qfort Mansarda/pod: - impartita in 2, o camera mare la intrare de 70mp cu vedere in fata plus o camera pe spate cu 2 intrari, pe ambele parti a scarilor, cu vedere in spate PLUS spatii de deepozitare pe ambele laterale de 14m x 1,25 fiecare. Garaj de 28mp cu deschidere din telecomanda Curte pe toate partile, gratar, foisor, bucatarie de vara prevazuta in constructia usoara, magazie in spate, tarc pentru caini etc… Nu am cum sa pun prea multe poze aici asa ca pentru cei interesati, se poate veni la o vizionare si discutam mai multe. Accept unele schimburi cu alte imobiliare mai ieftine din orasul Constanta + diferenta de minim 150.000E

Vand casa cu teren-livada in General Scarisoreanu
Vand casa cu teren-livada in General Scarisoreanu Constanta, General Scarisoreanu
38 500 €
316 € pentru m²
122 m²

De vanzare casa din piatra 122 mp utili Jumatate din casa are acoperisul nou! Drum asfaltat nou la poarta! Drumul spre targ! Apa,energie electrica si scurgere in casa. Foisor, terasa, gratar din piatra, fantana. Canalizare in fata portii. Teren 5600mp,Deschidere 43ml la strada principala (drum judetean) Livada cu 60 nuci, fantana,si alte dependinte. 38km de Constanta.

Casă la sol de vânzare în Murfatlar
Casă la sol de vânzare în Murfatlar Murfatlar, Constanta
135 000 €
1 174 € pentru m²
3-cam 115 m²

Cod Agent ( D1 ) Agenția Imobiliară Danicris vă propune spre vânzare o casă la sol situată într-o zonă liniștită din Murfatlar, ideală pentru o familie care își dorește confort, spațiu și intimitate. Locuința este construită din BCA și are o suprafață construită de 115 mp, amplasată pe un teren generos de 610 mp. Casa este compartimentată eficient și dispune de: 3 camere decomandate, bucătărie, baie, beci și garaj.

Deschide harta Harta