79 obiecte

NECTORA IMOB-Casa 70 mp cu teren 951 mp, front 16 mp, Paleu Centru
NECTORA IMOB-Casa 70 mp cu teren 951 mp, front 16 mp, Paleu Centru Paleu, Bihor
49 000 €
700 € pentru m²
2-cam 70 m²

ID anunț: NEC2788 - Peter Erno Paleu - Centru Casă cu teren de vânzare, ideală pentru construcție sau renovare! Suprafață teren: 951 mp Front stradal: 16 m Construcție existentă: ~70 mp (demolabilă sau renovabilă) Dotări și avantaje: Locație excelentă - în centrul Paleu Stradă asfaltată Toate utilitățile racordate: gaz, apă, canalizare, curent, Digi Ideal pentru construirea unei case noi sau renovare Teren generos, cu acces facil Preț de vânzare: 49.900 Euro ‼ Comision 0% pentru cumpărător‼ Contact pentru detalii și vizionări:

Casa moderna | 109 mp utili | Teren 600 mp | Terasa acoperita | Paleu
Casa moderna | 109 mp utili | Teren 600 mp | Terasa acoperita | Paleu Paleu, Bihor
139 000 €
1 275 € pentru m²
4-cam 109 m²

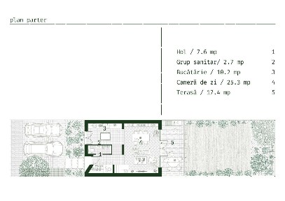
Blitz vă pune la dispoziție o casă modernă situată în Paleu, în zona metropolitană a Oradea, ideală pentru cei care își doresc liniște, spațiu și acces rapid către oraș. Proprietatea este amplasată pe un teren de 600 mp și dispune de 109 mp utili, la care se adaugă o terasă acoperită de 18 mp, perfectă pentru momentele de relaxare, cu orientare vestică, oferind priveliști plăcute către apus. Casa este construită pe un singur nivel și se predă semifinisată la interior, oferind viitorului proprietar posibilitatea de a-și personaliza finisajele după propriul gust. Exteriorul este finalizat cu tencuială decorativă, iar proprietatea beneficiază deja de 3 laturi de gard realizate, precum și de acces auto în curte. Imobilul dispune de tâmplărie premium cu geamuri tripan (3 straturi, 7 foi de sticlă), asigurând o bună izolare termică și fonică. Pe stradă sunt disponibile curentul și gazul, iar rețeaua de apă și canalizare urmează să fie introdusă, zona fiind în plină dezvoltare.

Casa Noua Moderna Parter finisaje Premium Pret excellent
Casa Noua Moderna Parter finisaje Premium Pret excellent Paleu, Bihor
163 500 €
962 € pentru m²
4-cam 170 m²

Vand casa moderna ideala pentru cei care isi doresc liniste,aer curat si acces rapid catre oras Proprietatea este amplasata intr o zona excelenta linga padure perfecta pentru relaxare si viata de familie Teren 500 mp spatie generos Front dublu acces facil Zona linistita aproape de natura Utilitati disponibile La doar 5 minte de oras OPORTUNITATE PRET REDUS PENTRU VANZARE RAPiDA

Vilă nouă design mediteranean, proiect deosebit și panoramă- 299.000 E
Vilă nouă design mediteranean, proiect deosebit și panoramă- 299.000 E Strada Gheorghe Doja, Paleu, Bihor
299 000 €
1 359 € pentru m²
4-cam 220 m²

Vilă premium cu design mediteranean, panoramă superbă și spații generoase - 216 mp utili Vă prezentăm o proprietate deosebită, cu design mediteranean elegant, realizată după un proiect arhitectural modern, ce îmbină perfect estetica, funcționalitatea și confortul. Vila impresionează prin ferestrele mari care oferă lumină naturală din plin, spațiile generoase și compartimentarea inteligentă. Suprafață utilă: 216 mp Teren: 514 mp, cu posibilitate de extindere contra cost până la 1000 mp Front stradal: 15 ml (extensibil) Acces: direct din drum principal asfaltat Compartimentare living amplu și luminos, ideal pentru zona de relaxare și socializare bucătărie spațioasă + anexă pentru depozitare 3 dormitoare confortabile 2 dressinguri generoase 4 băi moderne cameră de sport / hobby 2 terase perfecte pentru relaxare și petrecerea timpului liber Dotări și utilități centrală termică pe gaz încălzire în pardoseală curent trifazic apă și canalizare internet Localizare Proprietatea este situată pe Str. Gheorghe Doja, într-o zonă foarte bine conectată, cu acces rapid către punctele principale ale orașului, la aproximativ 5 minute de centru. În imediata apropiere se găsesc: spital, cabinete medicale, școală, grădiniță, parc, magazine și alte facilități urbane importante. Această vilă este ideală pentru cei care își doresc o locuință modernă, spațioasă și elegantă, într-o zonă accesibilă, cu o panoramă frumoasă și intimitate. Preț: 299.000 € (negociabil) Contact: Sorin Gligor Telefon:

Casa Paleu Orizont II
Casa Paleu Orizont II Paleu, Bihor
159 900 €
941 € pentru m²
5-cam 170 m²

VESTINVEST OFERǍ SPRE VÂNZARE: Casă de vânzare mansardată amplasată în cartierul Orizont II din Paleu. Compartimentare: Parter: living, bucǎtǎrie, baie, cǎmarǎ, 1 dormitor, Mansarda: 3 dormitoare, 1 baie, dressing, 3 balcoane. Suprafețe: Suprafață utilă: 170 mp. Suprafață construită: 200 mp. Suprafață teren: 500 mp. Utilitǎți: apǎ, canalizare, curent electric, internet, gaz. Imobilul este dotat cu încălzire în pardoseală și calorifere alimentate printr-o centrală pe peleți. Casa dispune de panouri de incalzire a apei Casa ar necesita usoare renovari Locuință ideală pentru o familie care își dorește confort, liniște, aer curat și acces rapid către oraș. Preț: 159.900 euro usor negociabil ID:CP2966865 Tel: 0371 780 037

Casa moderna | 650 mp teren | Dublu front | Paleu | Langa Oradea
Casa moderna | 650 mp teren | Dublu front | Paleu | Langa Oradea Paleu, Bihor
114 000 €
1 107 € pentru m²
4-cam 103 m²

Blitz vă pune la dispoziție o casă spectaculoasă situată în Paleu, în zona metropolitană a Oradea, ideală pentru cei care își doresc liniște, spațiu și o locuință modernă aproape de oraș. Proprietatea este amplasată pe un teren generos de 650 mp, cu dublu front stradal, și dispune de 103 mp utili, la care se adaugă o terasă acoperită de 20 mp, perfectă pentru relaxare. Casa este construită pe un singur nivel, fiind foarte luminoasă datorită orientării sudice. Imobilul se află la stadiul roșu, având deja montată tâmplărie premium cu geamuri tripan (3 straturi, 7 foi de sticlă). Există posibilitatea finisării la cheie, în funcție de preferințele cumpărătorului. Pe stradă sunt disponibile curentul și gazul, iar apa și canalizarea urmează să fie introduse, zona fiind într-o dezvoltare rapidă. O oportunitate excelentă pentru cei care caută o casă modernă, spațioasă și ușor de personalizat, la doar câteva minute de Oradea.

OCAZIE ! Casă Modernă în PALEU
OCAZIE ! Casă Modernă în PALEU Bihor, Paleu
129 000 €
1 075 € pentru m²
120 m²

Proprietar vă oferă spre vânzare o casă modernă PE NIVEL cu SC 177 mp compusă din: living cu bucătărie open space, hol generos, 3 dormitoare, dressing, două băi, terasă și filigorie amplasată pe un teren de 500 mp într-o zonă rezidențială din Paleu. Casa este construită cu materiale premium.Este ideală pentru o familie, oferind confort, intimitate și siguranță. MERITĂ VĂZUTĂ! Pentru vizionare și detalii suplimentare vă rog să mă sunați. Situată într-o zonă centrală, casa este aproape de muzee, teatre și restaurante. Te poți bucura de activități culturale variate și de facilități de divertisment la câțiva pași distanță. Parcurile din apropiere îți oferă locuri plăcute pentru relaxare sau plimbări. Nu rata ocazia de a viziona această proprietate! Programează o vizionare și descoperă toate avantajele acestei case.

VILĂ Exclusivistă cu Panoramă de 5 STELE !
VILĂ Exclusivistă cu Panoramă de 5 STELE ! Bihor, Paleu
285 000 €
1 875 € pentru m²
152 m²

Proprietar vă oferă spre vânzare o vilă nouă,exclusivistă cu design modern și panoramă superbă construită și finisată integral în cele mai mici detalii cu materiale de o calitate PREMIUM. Vila este situată în zona metropolitană (Paleu-livadă) și are o panoramă de vis spre oraș, fiind compusă din: living cu bucătărie open space și trei dormitoare echipate cu dressinguri și băi proprii, două terase și o piscină cu jacuzzi. Terenul proprietății are o suprafață de 664 mp complet îngrădit dispunând de o peisagistică complexă și elegantă.Toate utilitățile există și sunt branșate. VILĂ este o alegere pentru cei care înțeleg VALOAREA, SPAȚIUL și LINIȘTEA dincolo de convențional. Pentru programarea unei vizionări și detalii suplimentare vă rog să mă sunați. MERITĂ VĂZUTĂ!

De vanzare Casa in Paleu
De vanzare Casa in Paleu Bihor, Paleu
110 000 €
965 € pentru m²
114 m²

Casă de vânzare amplasată în cartierul Orizont din Paleu. Suprafață utilă: 114.50mp fără terasă și balcoane Suprafața terasă: 21 mp + două balcoane 2,68mp și 4,17mp Suprafață construită: 150 mp. Suprafață teren: 500 mp. Este compusă la parter din : Terasa generoasă, living cu bucătărie open space,baie,casa scării și camaruta depozitare. La etaj : Două dormitoare mari cu balcon la fiecare și o baie. Utilitǎți: apǎ, canalizare, curent electric trifazat,gazul este la strada si urmează să fie dat în utilizare Locuință ideală pentru o familie care vrea să scape de aglomerație si caută o zonă liniștită ! Nr contact: 07******94

Casa Noua Individuala, Personalizeaz-o dupa propriul Stil !
Casa Noua Individuala, Personalizeaz-o dupa propriul Stil ! Bihor, Paleu
125 500 €
1 004 € pentru m²
4-cam 125 m²

Oportunitate Excelenta de Personalizare a finisajelor interioare dupa propriul stil ! Aceasta poate fi Alegerea Potrivita! Nu dorim sa mai colaboram, Dar nici sa fim contactati de agentii imobiliare ! Va multumesc frumos pentru intelegere! Noi Proprietarii, oferim spre vanzare aceasta Casa Spatioasa cu Compartimentare Excelenta, ideala pentru o Familie care isi doreste confort si intimitate, este situata la delimitarea cartierului Oncea/Oradea de comuna Paleu ( in CF comuna Paleu), intr-o zona linistita,in continua dezvoltare, cu acces rapid catre oras. Avantaje: Constructie solida Camere generoase si luminoase Compartimentare practica Curte proprie Exteriorul casei este la gri Libertatea de a-ti personaliza interiorul. Casa are toate actele in regula, nu are vicii ascunse, nu are ipoteca ! Interiorul este in cursul procesului de amenajare oferind avantajul personalizarii finisajelor in functie de stil, preferinte si buget, ideal pentru cei care doresc sa isi puna amprenta personala asupra fiecarui detaliu ( gresie, faianta, usi interior, etc) Constructie 2021 Suprafata construita: 160 mp Suprafata utila: 125 mp Suprafata teren:370 mp Regim inaltime: Parter+Mansarda Compartimentare: Parter: living, bucatarie, hol, baie, terasa camera tehnica Mansarda: 3 dormitoare, hol, baie, mini dressing, balcon Utilitati: Retea Apa, Curent trifazic, retea gaz este la limita de proprietate! Iluminat stradal Pentru mai multe informatii si programarea unei vizionarii va stam la dispozitie, noi Proprietarii ! Pret: 125 500 euro usor neg ! Pt mai multe detalii: 07******69 07******12

Vand casa cu 1500 mp teren, lângă Hanul Pescarilor
Vand casa cu 1500 mp teren, lângă Hanul Pescarilor Paleu, Bihor
165 000 €
2 750 € pentru m²
2-cam 60 m²

Direct Proprietar | Comision 0% Vă invităm să descoperiți o proprietate deosebită, situată într-una dintre cele mai râvnite locații de lângă oraș - zona Hanul Pescarilor. Amplasată pe un teren generos de 1500 mp (intravilan, plan), această casă nu este doar o locuință, ci un stil de viață definit prin liniște, aer curat și o vedere panoramică neobstrucționată către lac.

Casǎ de vânzare Paleu Orizont II
Casǎ de vânzare Paleu Orizont II Paleu, Bihor
199 888 €
1 136 € pentru m²
4-cam 176 m²

VESTINVEST OFERǍ SPRE VÂNZARE: Casă de vânzare mansardată amplasată în cartierul Orizont II din Paleu. Compartimentare: Parter: living cu bucǎtǎrie open-space, baie, cǎmarǎ. Etaj: 3 dormitoare, 2 bǎi, dressing, balcon. Suprafețe: Suprafață utilă: 176 mp. Suprafață construită: 220 mp. Suprafață teren: 500 mp. Utilitǎți: apǎ, canalizare, curent electric, internet, gaz. Imobilul este dotat cu încălzire în pardoseală și calorifere alimentate printr-o centrală pe peleți. Proprietatea beneficiază de un garaj generos pentru două mașini, echipat cu ușă automatizată acționată din telecomandă, precum și cu poartă de acces automată. Casa dispune de o terasă generoasă, complet acoperită, prevăzută cu zonă de grătar și rotisor. Locuință ideală pentru o familie care își dorește confort, liniște și acces rapid către oraș. Preț: 199.888 euro negociabil Tel: 0371 780 037

Casă Paleu,teren 817mp,pompa de caldura, gata de locuit,la 5 min.de Or
Casă Paleu,teren 817mp,pompa de caldura, gata de locuit,la 5 min.de Or Bihor, Paleu
165 000 €
1 320 € pentru m²
125 m²

Casă individuală situată la 5 min. de Oradea, cu suprafață construită de aprox. 100mp, amplasat pe un teren generos de 817mp. Proprietatea este complet funcțională ṣi locuibilă imediat,având deja realizate finisaje, ceea ce permite mutarea fără costuri majore sau şantier. Casa e dotată cu POMPA DE CALDURĂ, oferind eficiență energetică, costuri reduse de intreținere şi confort pe termen lung. Terenul, cu suprafață mare, oferă, zonă de relaxare,extinderi). Gardul este realizat ( doar poarta trebuie parțial amenajat), aspect reflectat in preț. Comparativ cu proprietățile "la gri" din zonâ, această casă oferă avantajul economisirii timpului, costurilor neprevăzute,stresul asociat finalizării unei construcții, o eficienta energetica (incalzire in pardoseala, pompa de caldura), costuri reduse de intretinere si confort in acelas timp. Ideală pentru o familie,care îşi doreşte o locuințâ, gata de locuit, intr o zonă liniştită, cu potențial pe termen lung. -Suprafață utilă: 125 mp -Teren:817 mp, front stradal 15 m - An construcție: 2022 -Structură: cărămidă Porotherm -Încălzire: pompă de căldură -Orientare: Nord-Vest, cu panoramă frumoasă Compartimentare: - living generos cu bucătărie open-space mobilată, cu ieṣire pe terasă -2 dormitoare ( unul cu baie proprie, materialele sunt disponibile pentru amenajare) -dressing -cameră tehnică -hol+baie de serviciu Dotări ṣi beneficii: -finisaje interioare de calitate -ferestre PVC cu geam termopan -uṣă culisanta dkn aluminiu către terasă -utilități racordate ( apă, curent), gaz la limita proprietații -curte spațioasă -Amplasare excelentă, zonă de deal, cu aer curat, liniste si intimitate, dar cu acces rapid către oraṣ. ( 5 min. pana in centrul orasului) Preț: 165000 Eur Casă ideală pentru o familie care caută confort, eficiență,un cadru natural plâcut si acces rapid in Oradea (la 5 min de piata Rogerius)

Casă de vânzare semi finisată în Paleu
Casă de vânzare semi finisată în Paleu Bihor, Paleu
120 000 €
1 165 € pentru m²
3-cam 103 m²

: Casa cu 3 camere in Paleu - Bihor • Suprafata construita: 125 m2 • Suprafata utila: 103m2 • Suprafata teren: 506 m2 • Utilitati: Curent, Apa de la rețea, Fosa septica, ( canalizare si apă in curs de realizare ) • Regim inaltime: Parter • Ideal pentru: Familii si Cupluri Casa a fost construita in 2025 cu materiale de calitate superioara și cu o echipă specializata în construcții civile. Confortul termic al locuintei se realizeaza de la o pompă de căldură si încălzire in pardoseala Locuinta este compusa din: un living, o bucatarie închisă, 3 dormitoare, o baie avand aerisirea prin geam), un hol, un pod, o camera tehnica, o terasă cu iesire din living si o curte cu gradina. Pretul propus pentru vanzare este de: 120000 Euro negociabil pentru casa la gri, sau 139000 la cheie. Stadiul actual este tencuită la interior manual, aplicat plasă de armare cu adeziv, aplicat glet pe pereți, placat cu polistiren de 10cm la exterior si aplicată plasă de armare cu adeziv si masă șpaclu ( a doua mână), aplicată tencuiala decorativă, turnarea trotuarelor, izolat tavanul cu vată minerală de 20cm, folie anticondens,placat cu rigips de 125, sistemul electric introdus, instalația sanitară, încălzirea în pardoseală, etc

Liniste si confort aproape de oras - Casa nou renovata in Paleu
Liniste si confort aproape de oras - Casa nou renovata in Paleu Paleu, Bihor
98 000 €
1 153 € pentru m²
3-cam 85 m²

Casa renovata complet, singur in curte - Paleu, zona Stadionului (9 km de Oradea) Proprietate ideala pentru cei care isi doresc liniste, intimitate si acces rapid catre oras. Situata in Paleu, zona Stadionului de fotbal, aproape de soseaua principala, pe strada asfaltata. Casa este renovata integral la cheie - totul este nou: acoperis, instalatii electrice si sanitare, sistem de incalzire, sape mecanizate, gresie, faianta, parchet laminat, geamuri si usi termopan. Suprafata utila: 85 mp Suprafata teren: 375 mp Acces auto in curte Compartimentare practica: 2 dormitoare spatioase Living cu bucatarie open space Baie Hol generos Finisaje moderne, materiale de calitate, gata pentru mutare imediata. Utilitati: apa, curent, canalizare (retea oras), gaz la poarta. Pret: 98.000 Euro negociabil Se accepta schimb cu apartament 2-3 camere + diferenta. Pentru detalii si vizionare, va rog contact telefonic. ID ACTIV IMOB:

Casa cu priveliste superba in Saldabagiu de Munte
Casa cu priveliste superba in Saldabagiu de Munte Saldabagiu De Munte, Paleu, Bihor
205 000 €
1 289 € pentru m²
4-cam 159 m²

Imaginează-ți fiecare dimineață cu vedere spre lac, aer curat și liniștea naturii care te învăluie. Aici, la doar 5 minute de centrul Oradei, descoperi un colț de rai în care poți trăi o viață echilibrată - departe de zgomot, dar aproape de tot ce ai nevoie. Un loc unde copiii se pot juca in cartier cu altii copii iar serile se transformă în povești spuse la apus, privind lacul și simțind că ai ales cu adevărat bine. Aici nu cumperi doar o casă -alegi un nou stil de viață, în mijlocul naturii. Casa din mijloc, disponibila de vanzare, parte dintr-un triplex bine compartimentat, fiecare casa avand curte proprie si intimitate. * Teren 200 mp (poartă, gard, loc parcare) * Suprafață 159 mp utili Parter: baie, debara, bucătărie + cămară, living & dining, cameră tehnică, terasă acoperită Etaj: 3 dormitoare, 2 băi, balcon Exteriorul finalizat: poarta, gard,trotuare finisate, balustrade. Interior : ( urmeaza sa fie gata ) SE VINDE IN ALB, realizat cu tavane fexibile, pereti in alb, pardosea epoxidica. Hai sa vezi privelistea !

Casă centrală în Diosig cu chiriaș - venit instant (optional)
Casă centrală în Diosig cu chiriaș - venit instant (optional) Paleu, Bihor
99 900 €
400 € pentru m²
5-cam 250 m²

Unele proprietăți se cumpără pentru locuit. Altele se cumpără pentru că produc bani. Aceasta este una dintre ele. Situată chiar în centrul localității Diosig, pe strada principală Livezilor, această proprietate oferă un avantaj rar pe piață: este deja închiriată unei firme de producție încălțăminte, iar noul proprietar poate prelua chiriașul și beneficia imediat de venit. Pentru un investitor, asta înseamnă liniște, predictibilitate și recuperarea investiției încă din prima lună. Proprietatea are o suprafață construită de 250 mp, amplasată pe un teren de 458 mp, complet împrejmuit, cu dublu front stradal și două căi de acces - un avantaj important atât pentru activități comerciale, cât și pentru flexibilitatea viitoare. Compartimentarea este practică și generoasă: 5 camere 1 spațiu mare open-space 3 băi În prezent, imobilul funcționează ca atelier de producție, însă structura permite adaptarea ușoară pentru multiple utilizări: sediu firmă, spațiu comercial, clinică, birouri, depozit sau chiar locuință. Practic, aveți două opțiuni excelente: • păstrați chiriașul și încasați venit imediat • reconfigurați proprietatea după propriul proiect Poziționarea la strada principală, accesul dublu și suprafața generoasă transformă această proprietate într-o oportunitate solidă pentru investitori sau antreprenori. Proprietățile care oferă cashflow din prima zi apar rar pe piață. Pentru detalii sau programarea unei vizionări, vă stau cu drag la dispoziție.

Casa noua in Paleu
Casa noua in Paleu Paleu, Bihor
264 000 €
1 760 € pentru m²
4-cam 150 m²

Casa de vanzare in Paleu cu teren de 950 si o suprafata utila de 150 Casa este izolata pe exterior cu polistiren de 10cm. Compartimentare: 4 dormitoare living cu bucatarie ( open space) 2 bai Utilitati: Canalizare curent centrala peleti si gaz. Casa se preda la alb Pret: 264.000 Euro

Casa Paleu in centru
Casa Paleu in centru Paleu, Bihor
198 500 €
1 418 € pentru m²
4-cam 140 m²

Casa de vanzare in Paleu cu teren de 900 si o suprafata utila de 140 mp Compartimentare: 3 dormitoare 2 băi living bucatarie debara Utilitati: Racordată la apa canalizare și curent electric Retea de gaz disponibila la strada Detalii tehnice: Casa izolata exterior cu polistiren de 10 cm Planseu din beton Acoperis Bilka izolat cu vată minerala de 15cm Instalatie electrica trasă în interior Imobilul se vinde la stadiul de roau la interior O locuinta ideala pentru cei care isi doresc sa-si personalizeze finisajele după propriul gust într-o zona linistita. Pret: 198.500 Euro Telefon:

Casa in Paleu
Casa in Paleu Paleu, Bihor
275 000 €
1 719 € pentru m²
4-cam 160 m²

Casa de vanzare in Paleu cu teren de 1000 si o suprafata utila de 160 mp Compartimentare: 3 dormitoare 2 băi living bucatarie debara Utilitati: Racordată la apa canalizare și curent electric Retea de gaz disponibila la strada Detalii tehnice: Casa izolata exterior cu polistiren de 10 cm Planseu din beton Acoperis Bilka izolat cu vată minerala de 15cm Instalatie electrica trasă în interior Imobilul se vinde la stadiul de roau la interior O locuinta ideala pentru cei care isi doresc sa-si personalizeze finisajele după propriul gust într-o zona linistita. Pret: 275.000

Deschide harta Harta