7 obiecte

Locuinta la cheie, constructie 2025, Parter+Pod, ideala pentru famili
Locuinta la cheie, constructie 2025, Parter+Pod, ideala pentru famili Tutora, Iasi
130 000 €
1 477 € pentru m²
3-cam 88 m²

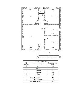
casa-alba.ro - din 2001 Impartim bucuria de a fi acasa! Agentia Imobiliara Casa Alba va prezinta spre vanzare o casa individuala cu 3 camere, in curs de finisare & predare la cheie, din caramida, situata la intrarea in comuna Tutora. Compartimentare: Parter: terasa acces, living, bucatarie inchisa, baie, hol, terasa; Pod (izolat termic), perfect pentru depozitare. Configuratia, spatiul generos de 88.2mp, iluminatul, armonia si spatiile verzi amenajate pe terenul de 460mp, fac aceasta proprietate sa reprezinte un camin cu adevarat primitor. Locuinta se va vinde la cheie, va beneficia de gresie, faianta, parchet, tamplarie PVC cu geam termopan, usa metalica la intrare, usi interior, centrala termica, termoizolatie cu polistiren de 10cm. Casa este racordata la curent electric, apa, gaz. Proprietatea se vinde la pretul este de 130.000 euro negociabil. Sunati acum pentru o programare! Pentru informatii suplimentare sau oferte, va rugam contactati consultantul Petru Chirila, la numarul de telefon

Casa la pret de garsoniera
Casa la pret de garsoniera Tutora, Iasi
48 000 €
480 € pentru m²
3-cam 100 m²

EXCLUSIVITATE COMISION 0% Casa individuala zona Tutora Aceasta casa cu plan parter este amplasata intr-o zona linistita, ferita de agitatia orasului, oferind un cadru ideal pentru relaxare. Constructia este moderna, bine compartimentata si luminoasa, perfecta pentru o familie care apreciaza linistea si spatiul.

Casa 4 camere, 150 mp utlii, zona Tutora
Casa 4 camere, 150 mp utlii, zona Tutora Tutora, Iasi
120 000 €
800 € pentru m²
4-cam 150 m²

Blitz va propune spre achiziție o casă spațioasă cu 4 camere, având o suprafață utilă de 150 mp și un teren generos de 1000 mp. Proprietatea este dispusă pe două nivele - parter și mansardă - și oferă o compartimentare practică, ideală pentru o familie care își dorește confort și spațiu. Compartimentare: -Parter: living open-space cu bucătărie, luminos și primitor, 2 dormitoare și o baie -Mansardă: spațiu foarte generos, care poate fi compartimentat după preferințe (dormitoare, birou, spațiu de recreere etc.) Casa este construită exemplar, pe structură de beton, și este izolată termic cu polistiren de 10 cm, oferind un confort termic ridicat în orice sezon. Proprietatea dispune de toate utilitățile - gaz, apă, canalizare, curent electric - și acces facil pe drum asfaltat. Frontul stradal este de 40 metri, oferind multiple posibilități de amenajare. Amplasarea este excelentă, în centrul localității, aproape de stația de autobuz, la mai puțin de 20 km de Iași. Această locuință reprezintă o alegere ideală pentru cei care doresc liniște, spațiu și confort, la doar câteva minute de oraș.

Chiperesti Tomesti Vila P+E SU=236mp 5 dormitoare living doua bai ga
Chiperesti Tomesti Vila P+E SU=236mp 5 dormitoare living doua bai ga Tutora, Iasi
210 000 €
890 € pentru m²
6-cam 236 m²

Ag. A.F.Imobiliare va propune spre vanzare, Vila P+E cu SC=270mp SU=236mp constructie deosebita ( realizata in anul 2013) din caramida si strctura de rezistenta solida, din beton armat (turnat la pompa) placa de beton intre etaje, izolata termic cu polistiren de 10cm,acoperis din tigla, tamplaria exterioara din PVC cu geamuri tripan Compartimentarea casei este una practica si functionala: 5 dormitoare, 2 living, 2 bai, 2 bucatarii, 2 terase, 2 debarale, 1 dressing PARTER = doua intrari, 3 holuri, living, bucatarie cu debara mare, baie cu dus, 3 dormitoare, terasa mare cu iesire din living. garaj 24mp Etaj = Casa scarii, mare luminoasa, 2 holuri, living mare, 2 dormitoare, baie cu cada, bucatarie cu debara, dressing, balcom mare tip logie inchis s=10mp cu debara. Terenul aferent proprietatii este in suprafata de 1347 mp cu deschidere la str asfaltata de 23,37mp si a doua deschidere la drum lateral de 48,92ml ( se mai poate construi un imobil cu acces pe lateral) Terenul este imprejmuit, amenajat, trotuare, cai de aces betonate, pomi fructiferi, gradina. Utilitatile: gaz metan, apa curenta, curent electric, canalizare, centrala termica pe gaz, calorifere, CA,TV. sistem de supraveghere video Imobilul are doua inrari separate, fata-spate, si pot locui doua familii fara nici-un deranj. Proprietatea se afla in sat Chiperesti, com Tutora, la limita de granita cu Tomestiul si la doar 15 km de Iasi. apropae de mijloace de transport in comun. Pret = 210000euro neg Comision Ag

Vila de lux P+E+M in comuna Tudora - finisaje premium, complet mobil
Vila de lux P+E+M in comuna Tudora - finisaje premium, complet mobil Tudora, Botosani
235 000 €
783 € pentru m²
10-cam 300 m²

BLITZ vă propune spre vânzare o proprietate exclusivistă, construită din cărămidă porotherm și izolată cu polistiren expandat grafit 10cm, acoperită cu Lindab 0.5 aluminiu și echipată cu tâmplărie termopan 5-6 camere, ce asigură eficiență energetică și confort maxim. Interiorul este amenajat la cele mai înalte standarde: 10 camere spațioase, dintre care 5 dormitoare elegante, o bucătărie open space modernă, 2 băi complet echipate, o sală de jocuri la mansardă și multiple spații de depozitare. Finisajele premium includ trepte și contratrepte din marmură, balustradă din inox, travertin, parchet, gresie, șemineu și zugrăveală decorativă „antic”. Proprietatea se vinde complet mobilată și utilată lux, fiind gata pentru a fi locuită imediat. Exteriorul transformă casa într-o adevărată vilă de vis: curte de 8 ari, complet pavata, amenajată cu pomi fructiferi, arbori ornamentali și decoruri în stil italian, care conferă un aer rafinat și elegant. Cele 4 terase și 4 balcoane iluminate exterior oferă locuri ideale pentru relaxare, iar accesul este asigurat de două parcări pavate și un garaj, cu împrejmuire din fier forjat. Această proprietate reprezintă o combinație perfectă între lux, eleganță și funcționalitate, fiind ideală pentru o familie care caută un cămin exclusivist și rafinat.

Vila 5 camere, 2bai, 198mp, foisor+casa oaspeti, TEREN 850mp, TUTORA
Vila 5 camere, 2bai, 198mp, foisor+casa oaspeti, TEREN 850mp, TUTORA Tutora, Iasi
188 000 €
949 € pentru m²
5-cam 198 m²

DE VANZARE: Vila individuala P+M cu 5 camere, 2 bai, cu suprafata de 198mp, amprenta la sol de 135mp, anexa cu destinatia casa de oaspeti (58mp) si foisor cu zona grill, teren aferent de 850mp, situata in comuna TUTORA la aproximativ 10minute de la benzinarie, cu acces 100% asfaltat si cu mijlocul de transport langa casa.

Casa noua, mobilata, 5 camere, teren 404 sau 1000 mp Chicerea
Casa noua, mobilata, 5 camere, teren 404 sau 1000 mp Chicerea Tutora, Iasi
185 000 €
1 321 € pentru m²
5-cam 140 m²

O casa 5 camere, bine construita cu atentie la detalii, finalizata in 2024, gata sa devina caminul noilor sai proprietari. Situata in Chicerea, la limita Tomestiului, intr-o zona linistita si aerisita, la doar 1 km de statia de transport public (CTP si privat, frecventa minim 30 min), cu acces catre oras. Date generale: Suprafata utila: 140 mp (2 niveluri) Teren: 404 mp, acces din strada asfaltata sau 1000 mp ( 210.000E) Construita in 2024 Se vinde mobilata si utilata partial Compartimentare: Parter: Living 24,5 mp, cu semineu pe lemne Bucatarie semideschisa 15,1 mp, mobilata pe comanda cu insula Baie 7,7 mp Birou 11,9 mp Terasa 18,3 mp, vedere la rasarit si apus Etaj: 3 dormitoare (13 - 15,7 mp) Dressing 8 mp Baie 6,5 mp Dotari: Incalzire in pardoseala + centrala pe gaz, termostate individuale Tamplarie VEKA profil 76 mm, geam tripan Izolatie fatada cu vata bazaltica 10 cm, pod 25 cm Structura solida: fundatii beton armat, zidarie BKS25, stalpi grinzi planseu din beton armat Bucatarie complet echipata, bai mobilate Toate utilitatile racordate: gaz, curent trifazic, apa, canalizare Curte: Partial imprejmuita Loc pentru 2 masini in curte si 2-3 pe aleea privata Spatiu verde pregatit pentru relaxare si joaca ?? Contact:

Deschide harta Harta