De 20 de ori mai multe anunțuri de la proprietari

Colectăm anunțuri de pe cele mai populare portaluri

Identificăm agentul imobiliar de proprietar după numărul de telefon

Prezentăm evoluția prețurilor

Eliminăm anunțurile duplicate

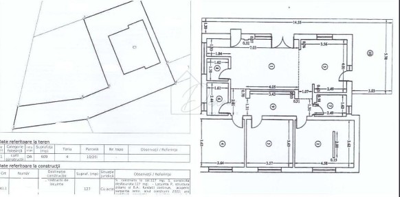
Single 5 camere, 360 mp, Canalizare, parc

Tunari, Ilfov
  • Obiect RO-1317058171
  • adăugat:
  • actualizat:
fotografie - Single 5 camere, 360 mp, Canalizare, parc fotografie - Single 5 camere, 360 mp, Canalizare, parc
  • Dimensiune completă
  • Caută similar
fotografie - Single 5 camere, 360 mp, Canalizare, parc fotografie - Single 5 camere, 360 mp, Canalizare, parc

De Vânzare: Casă Single 5 Camere - 360 mp, Racordată la Canalizare, Aproape de Parc Această casă spațioasă și modernă, cu 5 camere și o suprafață generoasă de 360 mp, este ideală pentru familii sau pentru cei care doresc să locuiască într-o zonă liniștită, aproape de natură. Amplasată în vecinătatea unui parc, proprietatea oferă confort, funcționalitate și un mediu relaxant.

Localizarea pe hartă

Obiecte în apropiere

Tunari, Ilfov
adaugă la favorite VILA INDIVIDUALA | 4 CAMERE | TUNARI
  • 320 000 €
  • 126 m²
Tunari, Ilfov
Strada Mihai Eminescu, Tunari, Ilfov
adaugă la favorite Vila I Tunari I Nobil Residence I Vanzare
  • 275 000 €
  • 103 m²
Strada Mihai Eminescu, Tunari, Ilfov
Strada Pietrosului, Dimieni, Tunari, Ilfov
adaugă la favorite COMISION 0% I Casa moderna Dimieni I finisaje premium I 609 mp
  • 259 000 €
  • 105 m²
Strada Pietrosului, Dimieni, Tunari, Ilfov