De 20 de ori mai multe anunțuri de la proprietari

Colectăm anunțuri de pe cele mai populare portaluri

Identificăm agentul imobiliar de proprietar după numărul de telefon

Prezentăm evoluția prețurilor

Eliminăm anunțurile duplicate

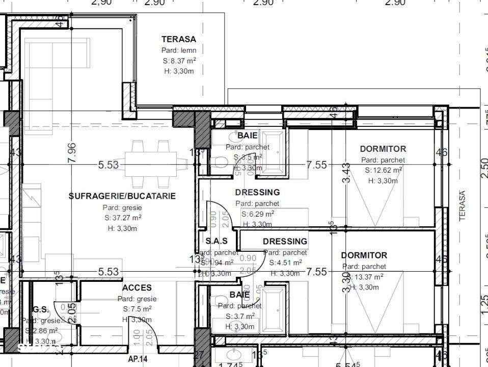
Apartament 3 camere, 93,5 mp, terasa 32,5 mp, zona centrala

Cetate, Timisoara, Timis
  • Obiect RO-1322941721
  • adăugat:
  • actualizat:
fotografie - Apartament 3 camere, 93,5 mp, terasa 32,5 mp, zona centrala
  • Dimensiune completă
  • Caută similar
fotografie - Apartament 3 camere, 93,5 mp, terasa 32,5 mp, zona centrala

Blitz va invita să descoperiti un apartament de excepție, situat la etajul 4 din 6, cu o vedere superbă asupra orașului și o terasă spectaculoasă de 32 mp. Suprafață utilă: 93,5 mp Terasă generoasă cu acces din living și dormitoare Priveliste panoramică peste oraș Înălțime interioară: 3,20 m Compartimentare: Living spațios cu zonă de dining și baie pentru oaspeți 2 dormitoare matrimoniale, fiecare cu baie și dressing propriu Bucătărie open-space, perfect integrată în zona de zi Finalizare construcție: martie 2026 Parcare subterană disponibilă contra cost Un apartament premium, ideal pentru cei care își doresc spațiu, lumină naturală, intimitate și un stil de viață elevat. Prețul nu include TVA

Localizarea pe hartă

Obiecte în apropiere

Cetate, Timisoara, Timis
adaugă la favorite Apartament 4 camere cu poziție ultracentrala
  • 275 000 €
  • 130 m²
Cetate, Timisoara, Timis
Cetate, Timisoara, Timis
adaugă la favorite Apartament 3 camere - 121 MP
  • 265 000 €
  • 121 m²
Cetate, Timisoara, Timis
Cetate, Timisoara, Timis
adaugă la favorite OX669 Vivalia Grand, Spatiu Exterior De 58 MP
  • 266 000 €
  • 67 m²
Cetate, Timisoara, Timis
Cetate, Timisoara, Timis
adaugă la favorite Apartament 3 camere spatios, in zona Ultracentrala cu garaj
  • 264 000 €
  • 117 m²
Cetate, Timisoara, Timis