De 20 de ori mai multe anunțuri de la proprietari

Colectăm anunțuri de pe cele mai populare portaluri

Identificăm agentul imobiliar de proprietar după numărul de telefon

Prezentăm evoluția prețurilor

Eliminăm anunțurile duplicate

Cesionez Vand promisiune apartament 2 camere Ateneo Torontalului

Cetate, Timisoara, Timis
  • Obiect RO-1339392992
  • adăugat:
  • actualizat:
fotografie - Cesionez Vand promisiune apartament 2 camere Ateneo Torontalului
  • Dimensiune completă
  • Caută similar
fotografie - Cesionez Vand promisiune apartament 2 camere Ateneo Torontalului

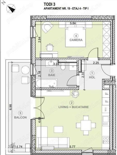
Cesionez Vand promisiune vanzare-cumparare apartament 2 camere Ateneo Todi3 Torontalului, etaj2 Este cel mai spatios si bine structurat apartament cu 2 camere din acest complex Bloc foarte bine construit, cu pereti despartitori dubli cu vata minerala intre cele doua zidarii pentru o foarte buna izolare fonica si termica. Apartamentul va avea 55.5 metri patrati utili (vezi poza) compus din living cu bucatarie, dormitor matrimonial si baie spatioasa la care se adauga un balcon imens de 12 metri patrati + parcare + boxa. Apartament deosebit pretabil atat pentru inchiriere cat si locuire familie. Am comandat extra prize, circuite electrice, clima in ambele camere etc ( toate costurile extra au costat mii de euro se poate arata facturi) si este gandit in asa fel incat daca se doreste separarea livingului fata de bucatarie se poate face fara probleme. Pret cesiune 55 000 euro Ramas de plata catre Ateneo: 80 416 euro + TVA de 9% (total 87 653 euro) cel tarziu in ziua semnarii contractului de vanzare- cumparare. Extimare finalizare livrare bloc: martie - aprilie 2026

Localizarea pe hartă

Obiecte în apropiere

Cetate, Timisoara, Timis
adaugă la favorite Garsoniera. 5 min de Iulius Mall. ideal investitie
  • 50 000 €
  • 22 m²
Cetate, Timisoara, Timis
Cetate, Timisoara, Timis
adaugă la favorite Apartament cu o camera direct de la proprietar
  • 50 000 €
  • 27 m²
Cetate, Timisoara, Timis