De 20 de ori mai multe anunțuri de la proprietari

Colectăm anunțuri de pe cele mai populare portaluri

Identificăm agentul imobiliar de proprietar după numărul de telefon

Prezentăm evoluția prețurilor

Eliminăm anunțurile duplicate

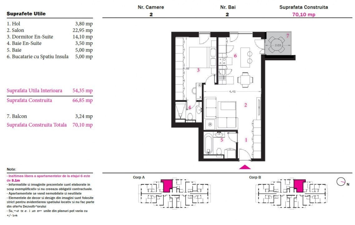
Apartament cu 2 camere in proiect nou Pipera

Voluntari, Ilfov
  • Obiect RO-1349264410
  • adăugat:
  • actualizat:
fotografie - Apartament cu 2 camere in proiect nou Pipera fotografie - Apartament cu 2 camere in proiect nou Pipera fotografie - Apartament cu 2 camere in proiect nou Pipera
  • Dimensiune completă
  • Caută similar
fotografie - Apartament cu 2 camere in proiect nou Pipera fotografie - Apartament cu 2 camere in proiect nou Pipera fotografie - Apartament cu 2 camere in proiect nou Pipera

Proiectul in care se gaseste acest apartament reprezintă echilibrul perfect între modernitate, natură și comunitate, oferind un stil de viață elegant și funcțional, centrat pe familie și conexiune umană. În inima complexului se află un parc amenajat cu spații verzi generoase, copaci înalți, bănci confortabile și o promenadă acoperită, ideală pentru relaxare sau socializare. Întregul spațiu verde al complexului, întins pe 1.400 mp, este complet liber de circulatie și de parcări auto, asigurând un mediu liniștit și sigur. Zonele de joacă sunt amplasate strategic în interiorul complexului, în spații ușor de supravegheat, oferind astfel siguranță maximă copiilor. La parterul fiecărui bloc sunt amplasate săli de sport, complet echipate, pentru a încuraja un stil de viață activ. În plus, complexul dispune de o pistă generoasă, umbrită, cu o lățime de 4 metri, ideală pentru jogging, plimbări relaxante sau ciclism. Aceasta oferă un spațiu excelent pentru mișcare în aer liber, departe de agitația urbană. Imaginile prezentate si sugestiile de mobilare sunt cu titlu informativ. Proiectul poate suferi modificări fără a angaja răspunderea contractuală a dezvoltatorului.

Localizarea pe hartă

Obiecte în apropiere

Voluntari, Ilfov
adaugă la favorite apartament 2 camere, complex green vista
  • 139 000 €
  • 63 m²
Voluntari, Ilfov
Strada Campul Pipera, Voluntari, Ilfov
adaugă la favorite Studio Complet Mobilat & Utilat - Cortina North | Investitie ideala
  • 139 999 €
  • 37 m²
Strada Campul Pipera, Voluntari, Ilfov
Voluntari, Ilfov
adaugă la favorite Studio Pipera | Premium | Investitie | Comision Zero
  • 119 000 €
  • 45 m²
Voluntari, Ilfov
Strada Campul Pipera, Voluntari, Ilfov
adaugă la favorite Apartament 2 camere de vanzare Pipera - Onix Park
  • 135 000 €
  • 57 m²
Strada Campul Pipera, Voluntari, Ilfov