De 20 de ori mai multe anunțuri de la proprietari

Colectăm anunțuri de pe cele mai populare portaluri

Identificăm agentul imobiliar de proprietar după numărul de telefon

Prezentăm evoluția prețurilor

Eliminăm anunțurile duplicate

2 CAMERE// PALLADY//COMISION 0!

Theodor Pallady, Sectorul 3, Bucuresti
  • Obiect RO-1356313504
  • adăugat:
fotografie - 2 CAMERE// PALLADY//COMISION 0! fotografie - 2 CAMERE// PALLADY//COMISION 0!
  • Dimensiune completă
  • Caută similar
fotografie - 2 CAMERE// PALLADY//COMISION 0! fotografie - 2 CAMERE// PALLADY//COMISION 0!

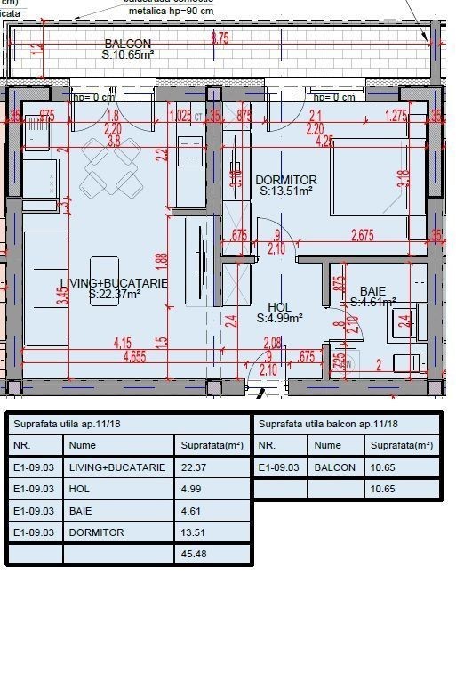
Comision 0% Modalitati de achizitie : - avans 90% - 95,084 € tva inclus - avans 50% - 98,480 € tva inclus - avans 15% - 101,876 € tva inclus Complex rezidențial de elită - bloc mic și intim, confort și finisaje de înaltă calitate Vă invităm să descoperiți un ansamblu de apartamente de excepție, situat într-un imobil cu structură solidă, format dintr-un bloc mic, cu doar 3 etaje și o singură scară, dedicat celor care apreciază intimitatea, confortul și un stil de viață modern. Acest complex răspunde celor mai exigente cerințe, oferind soluții de locuire adaptate diverselor nevoi. Caracteristici și beneficii: Design și finisaje de top: Toate apartamentele sunt finisate cu materiale atent selecționate, dintr-o gamă diversificată, pentru a crea un interior elegant, durabil și personalizabil - gresie, faianță, parchet și uși, alese cu grijă pentru a reflecta rafinament și bun gust. Luminozitate naturală maximă: Fiecare apartament dispune de ferestre mari, de sus până jos, pentru o iluminare excelentă, îmbogățind atmosfera cu energie și vitalitate. Confort termic și economic: Încălzire în pardoseală și centrală proprie, pentru control total asupra temperaturii, asigurând un ambient cald și plăcut pe tot parcursul anului. Astfel, locuințele sunt eficiente energetic și economice. Predare la cheie: Apartamentele se predau complet finisate și racordate la toate utilitățile (apă, gaz, canalizare și electricitate), gata pentru mutare, fără eforturi suplimentare sau lucrări de finalizare. Design modern și funcțional: Interiorul este configurat pentru a răspunde celor mai rafinate gusturi: apartamentele tip studio, 2 și 3 camere, precum și garsonierele, sunt proiectate pentru a oferi un confort de excepție într-un mediu sigur și liniștit. Poziție strategică și facilități în apropiere: Localizarea acestui complex asigură acces rapid la principalele puncte de interes ale zonei, într-un mediu sigur și plin de facilități urbane. În vecinătate găsiți centre comerciale, școli, grădinițe, servicii și zone de relaxare, toate la îndemână pentru confortul dumneavoastră zilnic. Această oportunitate reprezintă alegerea ideală pentru familii, tineri profesioniști sau investitori, care doresc o locuință modernă, personalizabilă, gata de mutare și situată într-un ansamblu exclusivist. Contactați-ne pentru mai multe detalii sau pentru a programa o vizionare - investiția în confort și stil de viață de lux începe aici!

Obiecte în apropiere

Theodor Pallady, Sectorul 3, Bucuresti
adaugă la favorite Titan Garsoniera dec. 41 mp PREMIUM vis-a-vis Parcul Teilor
  • 68 850 €
  • 40 m²
Theodor Pallady, Sectorul 3, Bucuresti
Radu Negru, Braila
adaugă la favorite Apartament 2 camere confort 1, Renovat 2025, Radu Negru.
  • 73 500 €
  • 43 m²
Radu Negru, Braila
Theodor Pallady, Sectorul 3, Bucuresti
adaugă la favorite Blvd. Theodor Pallady - Parcare Gratuit - Birou de Vanzari
  • 91 322 €
  • 76 m²
Theodor Pallady, Sectorul 3, Bucuresti
Theodor Pallady, Sectorul 3, Bucuresti
adaugă la favorite Apartament 2 camere decomandat Theodor Pallady Metrou Teclu
  • 86 900 €
  • 60 m²
Theodor Pallady, Sectorul 3, Bucuresti