De 20 de ori mai multe anunțuri de la proprietari

Colectăm anunțuri de pe cele mai populare portaluri

Identificăm agentul imobiliar de proprietar după numărul de telefon

Prezentăm evoluția prețurilor

Eliminăm anunțurile duplicate

AP 3 CAM. POZITIE IDEALA / AUCHAN TITAN!

Titan, Sectorul 3, Bucuresti
fotografie - AP 3 CAM. POZITIE IDEALA / AUCHAN TITAN! fotografie - AP 3 CAM. POZITIE IDEALA / AUCHAN TITAN! fotografie - AP 3 CAM. POZITIE IDEALA / AUCHAN TITAN! fotografie - AP 3 CAM. POZITIE IDEALA / AUCHAN TITAN! fotografie - AP 3 CAM. POZITIE IDEALA / AUCHAN TITAN!
  • Dimensiune completă
  • Caută similar
fotografie - AP 3 CAM. POZITIE IDEALA / AUCHAN TITAN! fotografie - AP 3 CAM. POZITIE IDEALA / AUCHAN TITAN! fotografie - AP 3 CAM. POZITIE IDEALA / AUCHAN TITAN! fotografie - AP 3 CAM. POZITIE IDEALA / AUCHAN TITAN! fotografie - AP 3 CAM. POZITIE IDEALA / AUCHAN TITAN!

Comision 0! Birou vanzari dezvoltator! Am inceput un nou proiect in zona 1 Decembrie 1918 langa Auchan Titan, un proiect care va pune la dispozitie apartamente spatioase, finisaje de inalta calitate, aproape de mijloacele de transport in comun si de marile centre comerciale ( Iris Mall, Auchan Titan, Lidll, etc. Aici regasim apartamente cu 2, 3 si 4 camere precum garsoniere si apartamente tip studio. Nivel de inaltime P+11E. Finsaje: • Branșament la gaze, apă, canal, curent • Centrala termică de bloc • Instalatie PPR, Calorifere otel • Placaje cu gresie si faianta • Parchet • Instalatie sanitara Romstal sau Blacksea • Usi interior Pinum • Usa metalica Pinum • Interfon • Internet si televiziune RDS & RCS Materiale: • Structură de rezistență compusă din stalpi si diafragme din beton armat • Caramidă Bca Ytong • Placa armată între etaje, cu grosimea de 15 cm • Înălțimea între plăci este de 2,95 metri, respectiv 2,70 metri utili • Termosistem din polistiren expandat de 10 cm • Tamplarie PVC Gealan 6 camere cu geam tripan Va invit la vizionare! - avans 95% - 112.000 euro fara tva - avans 55% - 115.500 euro fara tva - avans 15% - 119.000 euro fara tva

Localizarea pe hartă, locuri și rute utile

Obiecte în apropiere

Titan, Sectorul 3, Bucuresti
adaugă la favorite Apartament 3 camere-Titan Metrou
  • 117 000 €
  • 70 m²
Titan, Sectorul 3, Bucuresti
Titan, Sectorul 3, Bucuresti
adaugă la favorite 2 Camere 1 Decembrie 1918 Etaj 1/10
  • 96 900 €
  • 52 m²
Titan, Sectorul 3, Bucuresti
Titan, Sectorul 3, Bucuresti
adaugă la favorite Aparatament 3 camere - zona 1 Decembrie 1918
  • 104 100 €
  • 72 m²
Titan, Sectorul 3, Bucuresti
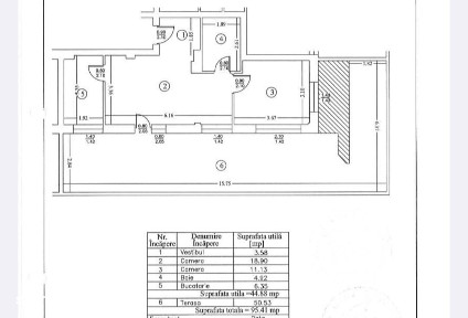
Aleea Mizil, Trapezului, Sectorul 3, Bucuresti
adaugă la favorite Apartament cu 2 camere de vanzare,metrou 1 Decembrie+ terasa 50 mp
  • 128 888 €
  • 95 m²
Aleea Mizil, Trapezului, Sectorul 3, Bucuresti