3 806 obiecte

Объект RO-1343091540 не найден. Возможно, он удалён по истечению срока давности, либо находится в процессе публикации.

Apartament 2 cam, et 1 din 2, zona Elgringo
Apartament 2 cam, et 1 din 2, zona Elgringo Doamna Stanca, Selimbar, Sibiu
106 000 €
1 963 € pentru m²
2-cam 54 m² 1/2 p

Agentia Intermed Casa va propune spre vanzare un apartament situat in zona Kaufland Doamna Stanca. Apartament 2 camere, mobilat și utilat complet. Acest apartament este situat la etajul 1 din 2 al unui imobil construit in anul 2021, va sta la dispozitie cu o suprafata utila generoasa de 54 mp+ doua balcoane de 4 si 5mp.

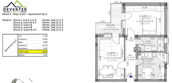
Comision 0! Ap 2 cam, et 1 si 2, lift, geam baie, bucatarie separata
Comision 0! Ap 2 cam, et 1 si 2, lift, geam baie, bucatarie separata Strada Deventer, Tineretului, Sibiu
94 000 €
1 918 € pentru m²
2-cam 49 m² 3/3 p

Comision 0. Apartament decomandat NOU in bloc de caramida cu structura din fier-beton, izolat cu polistiren de 15 cm, disponibil la Parter si etaj 3 in bloc cu lift. Este pozitionat in continuarea cartierului deja existent - Deventer 1 din mun. Sibiu. Accesul in ansamblu se poate face atat din str. Deventer cat si din str. Tractorului.

Apart. de vânzare - 2 camere - ansamblu nou
Apart. de vânzare - 2 camere - ansamblu nou Sibiu
112 500 €
2 123 € pentru m²
2-cam 53 m²

Apartament de vânzare în Sibiu - cu 2 camere, decomandat, cu o suprafata utila de 53 mp si balcon de 4.5 mp, ideal pentru un stil de viata modern si confortabil. Locuinta are o compartimentare eficienta, cu bucatarie separata si spatioasa, precum si o priveliste placuta catre zona verde a ansamblului. Apartamentul face parte din Ansamblul Rezidential Emerald Residence, un proiect nou, format din 6 blocuri, ce ofera multiple avantaje: parc, spatii de relaxare, 4500 mp spatii verzi si acces securizat cu bariera automatizata. Avantaje apartament: - Ansamblu rezidential nou - Apartament decomandat - Blocuri cu lift - Zona buna, in plina dezvoltare - Dezvoltator imobiliar cu experienta pe piata din Sibiu Facilitati suplimentare: - Locuri de parcare disponibile contra-cost: • 5.000 EUR + TVA (suprateran) • 10.000 EUR + TVA (subteran) - Posibilitatea achizitionarii unei boxe la subsolul blocului Predarea apartamentului este estimata pentru inceputul anului 2027. Se accepta plata in transe, in functie de stadiile de constructie. Avans minim: 25%. Pentru mai multe detalii sau programarea unei vizionari, nu ezitati sa ma contactati!

Apartament 3 camere de vanzare in Sibiu - bloc nou, cu lift - balcon
Apartament 3 camere de vanzare in Sibiu - bloc nou, cu lift - balcon Sibiu
153 600 €
2 259 € pentru m²
3-cam 68 m² 1/6 p

De vanzare apartament cu 3 camere, decomandat, cu o suprafata utila de 68 mp si balcon de 6,30 mp, ideal pentru un stil de viata modern si confortabil. Apartamentul beneficiaza de o compartimentare eficienta, cu bucatarie separata si spatioasa, precum si de o priveliste placuta catre zona verde a ansamblului. Este situat la etajul 1 al unui bloc cu 6 etaje, dotat cu lift. Imobilul face parte din Ansamblul Rezidential Emerald Residence, un complex nou, format din 6 blocuri, care ofera un mediu placut si sigur: parc, spatii de relaxare, 4500 mp de spatii verzi si acces securizat cu bariera automatizata. Apartamentul se preda finisat la alb si include urmatoarele dotari: - Pereti tencuiti, gletuiti, amorsati si strat de lavabila alba - Pardoseli cu sapa mecanizata - Tamplarie PVC cu 3 foi de sticla si profil de 5 camere - Instalatii electrice complete - Tablou electric pentru curenti tari si slabi - Incalzire in pardoseala Uponor - Infrastructura cablata pentru termostate - Contoare utilitati montate (apa, curent, gaz) - Videointerfon Sistem constructiv: - Cadre din beton armat - Pereti exteriori din caramida de 25 cm - Pereti interiori din caramida de 11,5 cm si 25 cm - Termoizolatie cu polistiren - Bandou de vata minerala intre etaje - Tencuiala decorativa - Balcoane cu parapet din sticla securizata, placate cu gresie - Centrala termica pe bloc - 2 lifturi de mare capacitate in fiecare imobil Facilitati suplimentare: - Locuri de parcare disponibile contra-cost: • 5.000 EUR + TVA (suprateran) • 10.000 EUR + TVA (subteran) - Posibilitatea achizitionarii unei boxe la subsolul blocului Predarea apartamentului este programata pentru inceputul anului 2027. Se accepta plata in transe, corelate cu etapele de constructie. Avans minim: 25%. Pentru mai multe detalii sau programarea unei vizionari, va stau la dispozitie.

APARTAMENT 2 CAMERE 38,5MP UTILI,SPRE VANZARE IN CISNADIE
APARTAMENT 2 CAMERE 38,5MP UTILI,SPRE VANZARE IN CISNADIE Cisnadie, Sibiu
69 900 €
1 839 € pentru m²
2-cam 38 m² 1 p

GDN Alfa Esttes va ofera spre vanzare un apartament de 2 camere cu o suprafata de 38 mp utili, la etajul 1 al unui bloc cu 4 etaje. Apartamentul este finisat are tamplarie din termopan, parchet, gresie si faianta cu baie finisata si utilata cu cabina de dush moderna si mobilier specific Apartamentul este izolat si liber pt mutare. se afla intr o zona cu statie de autobuz si cu magazine.

Apartament 3 camere decomandate in Cartierul Arhitectilor
Apartament 3 camere decomandate in Cartierul Arhitectilor Hipodrom III, Sibiu
139 900 €
1 608 € pentru m²
3-cam 87 m² 2/3 p

Smart Imobiliare propune spre vanzare un apartament modern decomandate situat la etajul al doilea al unui bloc din Cartierul Arhitectilor.Are o suprafata utila de 87 mp structurata astfel : 2 holuri, 2 dormitoare, living,bucatarie si doua bai (una prevazuta cu dus si una cu cada).Apartamentul dispune de asemenea de o debara,un balcon generos in suprafata de 10,5 mp si un loc propriu de parcare in curtea privata a imobilului.Blocul etse izolat termic, are o inaltime de 3 etaje si pe fiecare nivel sunt doar 2 apartamente.Se vinde mobilat complet si utilat cu aragaz,cuptor,frigider,hota,masina de spalat haine,televizoare,etc.Incalzirea se face cu centrala proprie si utilitatile sunt contorizate separat.Pentru mai multe detalii va rugam sa contactati agerntul si sa specificati ID ul proprietatii P16157 Prețul de promovare este de 139.900€ /negociabil în funcție de condițiile stabilite împreună cu proprietarul. Pentru mai multe detalii despre această proprietate și pentru programarea unei vizionări, vă rugăm să contactați consultantul responsabil. Smart Imobiliare vă oferă consultanță completă pe tot parcursul tranzacției, de la prima vizită și până la predarea cheilor.

Garsoniera suprafata utila 24mp, spre vanzare in Compa
Garsoniera suprafata utila 24mp, spre vanzare in Compa Zona Industriala Est, Sibiu
36 900 €
1 538 € pentru m²
1-cam 24 m² 3/5 p

GDN Alfa Estates va ofera spre vanzare o garsoniera cu o suprafata utila de 24mp, la etajul 3 al unui imobil i cu 5 etaje in cartierul Compa. Garsiniera este mobiata si utilata astfel- bucataria cu mobilier specific, aragaz, frigider camera mobilata cu mobilier living cu TV, un coltar extensibil si o masa, baia are cabina dus, boiler pentru apa calda si masina de spalat rufe. Aceasta garsoniera dispune de convector pentru caldura cu termostat, este pozitionata spre rasarit si are soarele pana la amiaza,.Garsoniera are in proximitate spatii comerciale, spital, banci, este la 5 minute de Mall, accesul fiind facil catre oricare parte a orasului. Pentru alte detalii si pentru a programa o vizionare nu ezitati sa ne contactati.

Ap nou, finisat la cheie, zona buna, bloc cu lift, pret bun
Ap nou, finisat la cheie, zona buna, bloc cu lift, pret bun Strada Lacul Binder, Tiglari, Sibiu
83 000 €
2 128 € pentru m²
2-cam 39 m² 3/4 p

Apartament 2 camere - Bloc nou cu lift - Zona Lacul lui Binder, Sibiu Ofer spre vanzare un apartament cu 2 camere, situat intr-un bloc nou cu lift, in zona Lacul lui Binder - una dintre cele mai cautate zone din Sibiu. Detalii apartament: - Suprafata utila: 39,23 mp - Balcon: 5 mp - Se preda la stadiul de alb, finalizarea la cheie poate fi discutata si personalizata la cerere - Incalzire in pardoseala - Etaj intermediar, bloc cu lift Avantaje: - Loc de parcare inclus in pret - Spatiu depozitare pe balcon - Acces rapid spre centrul orasului (1.7 km pana in Piata Mare) si autostrada (1 km) - Zona linistita, aproape de natura si facilitati urbane Modalitati de plata: - Accept plata cash si credit bancar ID intern: 22233

Apartament 2 camere Doamna Stanca, parcare inclusa.
Apartament 2 camere Doamna Stanca, parcare inclusa. Selimbar, Sibiu
102 000 €
1 962 € pentru m²
2-cam 52 m² 1/3 p

GDN ALFA ESTATES Sibiu va propune la vanzare un apartament cu 2 camere de vânzare, situat pe strada Doamna Stanca din Sibiu, la etajul 1 al unui imobil nou, cu regim de înălțime P+3. Locuința are o suprafață utilă de 52 mp utili și este decomandată, oferind un confort optim printr-o compartimentare practică,. living luminos cu bucătărie open space dormitor spațios baie balcon, 3 mp cu acces atât din living, cât și din dormitor Apartamentul dispune și de un loc de parcare, inclus in pretul imobilului. Se preda la alb (parchet) Pentru mai multe informații sau pentru programarea unei vizionări, sunati la

Garsoniera de vanzare - Str. Henri Coanda
Garsoniera de vanzare - Str. Henri Coanda Zona Industriala Est, Sibiu
38 500 €
1 750 € pentru m²
1-cam 22 m² 4/4 p

GDN Alfa Estates va propune Garsonieră de vânzare - Str. Henri Coandă, Sibiu Situată pe strada Henri Coandă, această garsonieră este o alegere excelentă pentru locuință proprie sau investiție în închiriere. Caracteristici principale: • Suprafață utilă: 22 mp • Etaj: 4 • Compartimentare eficientă: dormitor, bucătărie separată, baie • Complet mobilată și utilată - gata de mutat • Instalație electrică și sanitară nouă - pentru confort și siguranță • Disponibilă imediat Localizare excelentă: • Stație de autobuz la 1 minut de mers pe jos • Magazine și alte facilități în apropiere • Acces facil către zonele centrale ale orașului Ideală pentru: • studenți • persoane singure • închiriere pe termen scurt/lung Se pretează și pentru achiziție ca investiție, datorită cererii ridicate în zonă. Contactează-ne pentru detalii sau programarea unei vizionări!

Garsoniera de vanzare | 30 mp | Zona Compa
Garsoniera de vanzare | 30 mp | Zona Compa Strada Principatele Unite, Lazaret, Sibiu
55 000 €
1 833 € pentru m²
1-cam 30 m² 2/4 p

GDN Alfa Estates Sibiu va propune de vanzare o garsoniera - zona Lazaret, mobilata si utilata. Garsoniera are o suprafata utila de 30 mp, situata la etajul 2 din 4. Garsoniera dispune de urmatoarea comapartimentare: - Bucatarie inchisa cu geam -Camera de zi spatioasa. -Baie spatioasa cu cabina de dus -Balcon inchis Garsoniera este aerisita si lumioasa situata într-o zonă liniștită cu spatii verzi, acces rapid către punctele de interes din oraș si centru. Pentru mai multe informații sau pentru a programa o vizionare, nu ezitați să ne contactați

Vând apartament 3 camere decomandat situat în zona Strand
Vând apartament 3 camere decomandat situat în zona Strand Strand I, Sibiu
129 000 €
1 792 € pentru m²
3-cam 72 m²

Vând apartament 3 camere decomandat situat în zona Strand la parter înalt cu o suprafață utilă de 72mp compus din 3 camere, bucătărie, 2 bai, pivniță, alte dependințe dispune de centrala termica, geamuri termopan, se vinde mobilat și utilat.

Apartament | 2 Camere | 39mpu | Parter, Etaj 3 | La cheie | Parcare
Apartament | 2 Camere | 39mpu | Parter, Etaj 3 | La cheie | Parcare Terezian, Sibiu
68 500 €
1 756 € pentru m²
2-cam 39 m²

Platinum Imobiliare va propune spre vanzare un apartament situat intr-un bloc langa Lacul lui Binder. Locuința are o suprafață utilă de 39.23 mp și este completată de un balcon suficient de încăpător pentru a fi folosit ca zonă de relaxare sau ca spațiu suplimentar de depozitare. Configurația apartamentului cuprinde un hol de intrare, un living cu bucătărie deschisă, un dormitor, o baie și balconul dotat cu un mic spațiu de stocare. Se predă în varianta „la alb”, lăsând viitorului proprietar libertatea de personalizare. Pretul afisat in anunt nu include TVA. Prețul afișat include un loc de parcare. Pentru persoanele care doresc spațiu suplimentar, există posibilitatea achiziționării unor locuri de parcare adiționale la tariful de 5000 euro + TVA pentru fiecare. Accesul către clădire este integral amenajat și prevăzut cu iluminat. Avantaje: Zona foarte linistita, chiar langa Lacul lui Binder. Blocul beneficiaza de lift si incalzire in pardoseala Loc de parcare inclus in pret Baie cu geam Spatiu generos pe balcon Pentru mai multe detalii nu ezitati sa contactati numarul de telefon

BLACK FRIDAY | 3 camere in rate | 2 bai | 72 mp| lift |aer conditionat
BLACK FRIDAY | 3 camere in rate | 2 bai | 72 mp| lift |aer conditionat Calea Cisnadiei, Cisnadie, Sibiu
87 000 €
1 208 € pentru m²
3-cam 72 m² 3/3 p

REDUCERE BLACK FRIDAY VALABILA PANA LA 31.12.2025 ~ COMISION 0 ~ APARTAMENT 3 CAMERE, 2 BAI, DE VANZARE DIRECT DE LA DEZVOLTATOR situat la intrarea in cartierul Arhitectilor aproape de Kaufland, statiile TurSib si multe alte puncte de interes, reper magazin Mandra.

Apartament 2 camere de vanzare in Lazaret - spatiu si confort
Apartament 2 camere de vanzare in Lazaret - spatiu si confort Gusterita, Sibiu
76 000 €
1 810 € pentru m²
2-cam 42 m² 4 p

Apartament 2 camere de vanzare, decomandat, 42 mp, zona Lazaret, Sibiu. Un spatiu cald si echilibrat, perfect pentru a-ti crea propria poveste. Linistea, lumina si intimitatea se imbina natural in fiecare colt. Te bucuri de simplitate, ordine si un vibe care te relaxeaza. Tot ce ai nevoie pentru a transforma "azi" in "acasa". • Se preda nou, la cheie TABOO Imobiliare propune un apartament de vanzare cu 2 camere, decomandat, situat in localitatea Sibiu, zona Lazaret, aflat la etajul 4 intr -un imobil tip bloc cu regim de inaltime pe Parter + 4 Etaje + Mansarda; anul constructiei 2024, structura caramida. Suprafata utila de 42 mp. • Bucatarie open space; • Baie; • Living; • Dormitor; • Hol intermediar; • Usa intrare: metal; • Usi interioare: celulare; • Tamplarie ferestre: pvc, termopan; • Pereti: vopsea lavabila, faianta; • Podele: parchet, gresie. • Bucatarie: nemobilata, neutilata; • Mobilat: nemobilat; • Utilitati: curent electric, apa, canalizare, gaz; • Izolatii: exterior; • Contorizare: apometre, contor gaz, contor curent electric, contorizare separata; • Caracteristici bloc: acoperis. Apartamentul se vinde nemobilat si neutilat Incalzirea se realizeaza prin centrala proprie, calorifere. Se accepta ca si modalitate de plata surse proprii sau credit bancar. Pret: 76.000€ Sună-ne acum și află detalii despre această proprietate de vanzare din Sibiu, dar și despre alte proprietăți potrivite pentru tine.

Apartament 1 Camera I Baie I Etaj 4/4 I Central
Apartament 1 Camera I Baie I Etaj 4/4 I Central Trei Stejari, Sibiu
30 000 €
1 364 € pentru m²
1-cam 22 m² 4/4 p

Se vinde o garsonieră cu suprafața de 22 mp, situată la etajul 4 din 4, într-o zonă centrală, cu acces rapid la toate punctele de interes ale orașului. Proprietatea este disponibilă imediat și necesită renovare, fiind ideală pentru investiție sau amenajare după propriul gust. Caracteristici principale: Suprafață: 22 mp Tip: Garsonieră Etaj: 4 / 4 Necesită renovare Disponibilă imediat Localizare: zonă centrală Avantaje: Poziționare excelentă, aproape de transport public, magazine, instituții, zone comerciale Potențial ridicat pentru investiție (închiriere sau revânzare) Posibilitate de amenajare complet personalizată Ideală pentru cei care caută un proiect de renovare într-o zonă foarte bună Pentru informati si vizionari: ID: CP2858218

Apartament de vanzare decomandat, 3 camere, balcon s.utila 55 mp.
Apartament de vanzare decomandat, 3 camere, balcon s.utila 55 mp. Hipodrom IV, Sibiu
123 000 €
2 236 € pentru m²
3-cam 55 m²

Apartament cu 3 camere de vanzare, decomandat, renovat recent, mobilat si utilat Avantaje -renovat recent (anul 2025) -instalație electrica și sanitara noua -mobilat si utilat (electrocasnicele sunt in garantie) -balcon spatios 10 mp. inchis Comartimentare • Living cu Bucătărie open space •2 Dormitoare • Hol •Baie •Balcon Sibiu Estate - Casa ta, Povestea noastra

Vand apartament cu 1 camera Sibiu
Vand apartament cu 1 camera Sibiu Broscarie, Sibiu
56 999 €
2 280 € pentru m²
1-cam 25 m² 4/5 p

Spre vanzare o garsoniera care a fost recompartimentata intr-un apartament cu 1 camera, situat la etaj intermediar amplasat in zon strazii Stefan Cel Mare sin Sibiu. Apartamentul se vinde complet mobilat si utilat exact ca in poze. Recent a fost renovat cu bun gust si materiale de foarte buna calitate. Pozitionat pe sud-est. La imeditata distanta de magazinul Simpa, sala de fitnes. La 1 min distanta de statie transport public. Pret direct de la proprietar: 56 999 euro. Negociabil. Tel:

Zona buna si pret atractiv predare imediata Mihai Viteazul
Zona buna si pret atractiv predare imediata Mihai Viteazul Trei Stejari, Sibiu
64 890 €
1 708 € pentru m²
2-cam 38 m² 4 p

Apartament 2 camere de vanzare, nedecomandat, 38 mp, zona Mihai Viteazul, Sibiu. Avantaje majore ale acestui apartament: • Liceul Noica, Scoala Gimnaziala "Nicolae Iorga" si gradinite la cativa pasi; • Bloc izolat; TABOO Imobiliare propune un apartament de vanzare cu 2 camere, nedecomandat, situat in localitatea Sibiu, zona Mihai Viteazul, aflat la etajul 4 intr -un imobil tip bloc cu regim de inaltime pe Parter + 5 Etaje; anul constructiei 1980, structura beton. Suprafata utila de 38 mp. • Hol de compartimentare; • Bucatarie separata; • Baie cu cada si geam de aerisire; • Living; • Dormitor; • Camara; • Usa intrare: pvc; • Usi interioare: lemn; • Tamplarie ferestre: lemn; • Pereti: vopsea lavabila, faianta; • Podele: parchet, gresie. • Bucatarie: mobilata, utilata; • Mobilat: complet; • Utilitati: curent electric, apa, canalizare, gaz, catv, telefon, acces internet, fibra optica; • Izolatii: exterior, bloc izolat termic; • Contorizare: apometre, contor gaz, contor curent electric, contorizare separata; • Caracteristici bloc: interfon, acoperis. Apartamentul se vinde mobilat si utilat cu: aragaz, cuptor, masina de spalat rufe, frigider cu congelator Incalzirea se realizeaza prin centrala proprie, calorifere Se accepta ca si modalitate de plata surse proprii sau credit bancar. Pret: 64.890€ Sună-ne acum și află detalii despre această proprietate de vanzare din Sibiu, dar și despre alte proprietăți potrivite pentru tine.

Apartament cu o camera- Decoamndat- Hipodrom IV
Apartament cu o camera- Decoamndat- Hipodrom IV Intrarea Siretului, Hipodrom IV, Sibiu
63 000 €
2 250 € pentru m²
1-cam 28 m² 3/4 p

GDN Alfa Estates vă propune spre vânzare un apartament cu o cameră, total decomandat, situat într-o zonă liniștită, cu acces rapid la puncte de interes ale orașului. Proprietatea este ocupată de chiriași, ceea ce o face ideală ca investiție, cu preluare imediată a contractului de închiriere. Caracteristici principale: Suprafață utilă: 28 mp Balcon: 3 mp, perfect pentru relaxare Situat la etajul 3/4 într-un imobil îngrijit Compartimentare decomandată - spațiu optim, bine gândit Boxă de depozitare inclusă Centrală termică proprie - costuri reduse la utilități Locuința este ocupată de chiriași serioși, cu plata la zi Se poate prelua contractul de închiriere, ceea ce generează venit imediat Localizare și facilități: Stație de autobuz în apropiere Acces rapid la magazine, supermarketuri și farmacii În zonă există școli și grădinițe, ideale pentru familii La doar 5 minute de Parcul Sub Arini, una dintre cele mai apreciate zone verzi din oraș Avantaje investiționale: Apartament compact, ușor de administrat Poziție excelentă pentru închiriere pe termen lung Chiriași existenți → venit garantat din prima zi

Deschide harta Harta