De 20 de ori mai multe anunțuri de la proprietari

Colectăm anunțuri de pe cele mai populare portaluri

Identificăm agentul imobiliar de proprietar după numărul de telefon

Prezentăm evoluția prețurilor

Eliminăm anunțurile duplicate

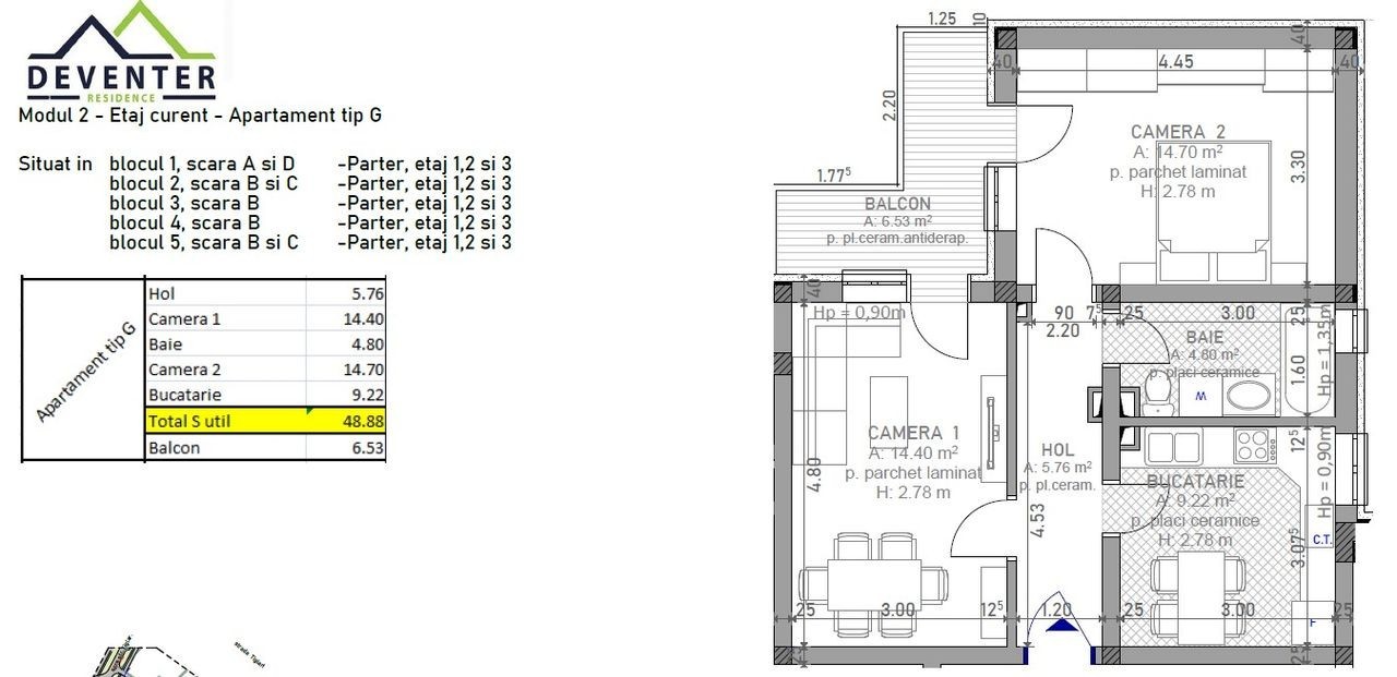
Comision 0! Ap 2 cam, et 1 si 2, lift, geam baie, bucatarie separata

Strada Deventer, Tineretului, Sibiu
  • Obiect RO-1359799446
  • adăugat:
fotografie - Comision 0! Ap 2 cam, et 1 si 2, lift, geam baie, bucatarie separata
  • Dimensiune completă
  • Caută similar
fotografie - Comision 0! Ap 2 cam, et 1 si 2, lift, geam baie, bucatarie separata

Comision 0. Apartament decomandat NOU in bloc de caramida cu structura din fier-beton, izolat cu polistiren de 15 cm, disponibil la Parter si etaj 3 in bloc cu lift. Este pozitionat in continuarea cartierului deja existent - Deventer 1 din mun. Sibiu. Accesul in ansamblu se poate face atat din str. Deventer cat si din str. Tractorului.

Localizarea pe hartă

Obiecte în apropiere

Strada Deventer, Tineretului, Sibiu
adaugă la favorite Penthouse 2 cam si 2 terase de 40 mp, incalz pardoseala, lift
  • 119 500 €
  • 54 m²
Strada Deventer, Tineretului, Sibiu
Strada Deventer, Tineretului, Sibiu
adaugă la favorite Ap 3 cam, decomandat, 2 bai, CĂMARĂ, 2 balcoane, incalz pardoseala
  • 124 000 €
  • 70 m²
Strada Deventer, Tineretului, Sibiu