75 obiecte

Vila spatioasa de vanzare in Breaza, 270 mp utili si teren de 6242 mp
Vila spatioasa de vanzare in Breaza, 270 mp utili si teren de 6242 mp Breaza, Prahova
210 000 €
700 € pentru m²
6-cam 300 m²

Descoperă o proprietate rară, situată în una dintre cele mai apreciate zone din Breaza, unde liniștea, aerul curat și intimitatea se îmbină perfect cu confortul unei locuințe moderne. Această vilă elegantă, construită în 2005, este amplasată pe un teren generos de 6242 mp, oferind spațiu, verdeață și multiple zone de relaxare - un adevărat refugiu departe de agitația orașului. Detalii proprietate: Suprafață utilă: 270 mp Suprafață desfășurată: 330 mp Regim: Parter + Etaj + Mansardă Construcție solidă din cărămidă, cu structură din beton armat Compartimentare inteligentă și luminoasă: Parter: living spațios, bucătărie complet utilată, dormitor, baie, terase Etaj: 3 dormitoare confortabile, baie, balcon și terasă Mansardă open space - ideală pentru relaxare, birou sau hobby Exterior care impresionează: Teren amplu, perfect pentru relaxare sau investiție Grădină amenajată 2 foișoare (unul cu beci) Mini-piscină Căsuță pentru copii Garaj pentru 2 autoturisme Confort și dotări premium: Centrală proprie + calorifere Șemineu - pentru o atmosferă caldă și primitoare Finisaje de calitate: marmură, parchet, gresie Ferestre termopan, uși din lemn Sistem de alarmă Utilități complete: gaz, apă, canalizare, curent, fibră optică, cablu TV Proprietatea se vinde complet mobilată și utilată, fiind pregătită pentru mutare imediată. Ideală ca: reședință permanentă pentru o familie casă de vacanță investiție (pensiune / retreat) Pentru detalii suplimentare și programarea unei vizionări, vă stam la dispoziție.

Proprietar -De vânzare Vilă -Casă vacanță în Breaza -Str Miron Căproiu
Proprietar -De vânzare Vilă -Casă vacanță în Breaza -Str Miron Căproiu Breaza, Prahova
127 000 €
562 € pentru m²
7-cam 226 m²

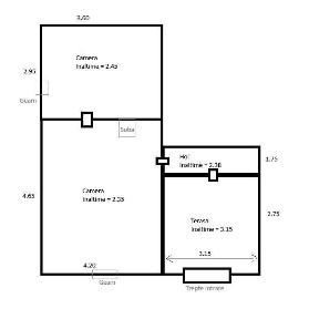
Proprietar, vând vila spațioasă, retrasa, zona deosebit de frumoasa si extrem de liniștită Proprietatea are 1172 mp teren, pomi fructiferi (meri, peri, pruni) si este la 10 minute de mers pe jos pana in centrul orașului. Clădirea (construita initial in 1975) a fost reconstruita si extinsa atât in 1991 cat si in anul 1999, este racordata la toate utilitățile - electricitate, apa, canalizare, gaze (centrala proprie), internet - friba optica, cablu TV.

Casă individuală P+1 - proiect generos, poziție excelentă | Lipănești
Casă individuală P+1 - proiect generos, poziție excelentă | Lipănești Breaza, Prahova
169 900 €
506 € pentru m²
6-cam 336 m²

Casă individuală P+1 - proiect generos, poziție excelentă | Șipotu, Lipănești Descoperă un proiect cu adevărat valoros, ideal pentru cei care își doresc să își creeze locuința exact după propriile standarde. Situată în comuna Lipănești, sat Șipotu, nr. 56, la doar 10 km de Ploiești, această proprietate îmbină perfect accesibilitatea cu spațiul generos și potențialul ridicat de personalizare. Amplasată direct la drumul principal, proprietatea beneficiază de o deschidere impresionantă de aproximativ 20 metri, oferind vizibilitate excelentă și acces facil. În plus, terenul dispune de un avantaj rar întâlnit: ieșire secundară în partea din spate către un drum asfaltat, cu deschidere de 11,75 metri - un beneficiu major atât pentru confort, cât și pentru viitoare compartimentări sau investiții. Terenul, în suprafață de 1.731 mp, oferă spațiu amplu pentru amenajări multiple: grădină, piscină, zonă de relaxare sau chiar dezvoltări suplimentare. Detalii construcție: Imobilul este o construcție solidă, realizată cu materiale de calitate, aflată în stadiul de „roșu”, oferind libertatea de a fi finalizată după propriul gust: Regim de înălțime: P+1 Suprafață construită: 194 mp Suprafață desfășurată: 388 mp Suprafață utilă: 336 mp 2 camere generoase: 35,3 mp și 40 mp Living open-space + bucătărie + terasă: 78 mp Baie spațioasă: 13 mp Etajul este proiectat pentru a permite compartimentări similare sau adaptate nevoilor viitorului proprietar, fiind deja ridicat parțial. Caracteristici tehnice Fundație solidă de 2 metri Zidărie din cărămidă Porotherm de 30 cm Placă de beton între parter și etaj de 20 cm Tâmplărie Salamander, 7 camere, geam tripan (parter) Utilități Gaz Curent electric Apă Fosă septică Alte avantaje O cameră deja amenajată pentru locuit Posibilitate de personalizare completă a etajului Ideală pentru locuință sau investiție Această proprietate nu este doar o casă, ci o oportunitate de a crea un spațiu de locuit exact așa cum ți-l dorești, pe un teren generos și într-o zonă în continuă dezvoltare, aproape de oraș.

Casa parter + etaj la gri
Casa parter + etaj la gri Breaza, Prahova
98 000 €
460 € pentru m²
3-cam 213 m²

De vanzare casa P+E+pod (LA GRI), situata in zona semicentrala a Orasului Breaza, construita din zidarie portanta (caramida) cu fundatie din beton, stalpi si plansee din beton armat, acoperis de tip sarpanta construit din lemn, cu invelitoare din tabla tip Lindab, partial tamplarie PVC cu geam termopan, izolatie exterioara cu polistiren (5 cm), avand suprafata construita desfasurata de 212,2 mp, utila de 149,95 mp si un teren, cu deschiderea de aproximativ 20 m, in suprafata de 500 mp. Accesul la casa se face pe un drum de acces cu latimea de 3,80 m si o lungime de 100 m. Utilitati: apa, gaz, curent electric, canalizare, CabluTV la aproximativ 100 m (la intrarea pe drumul de acces). Compartimentare: Parter: living, bucatarie si dinning, spatiu tehnic, grup sanitar, vestibul, doua terase, casa scarii Etaj: 3 dormitoare, hol si casa scarii, baie, debara, doua terase Pod: spatiu deschis neamenajat (posibilitate de mansardare) Casa se vinde in stadiul actual, nefiind racordata la utilitati.

Vanzari Case / Vile
Vanzari Case / Vile Strada Garii, Breaza, Prahova
180 000 €
1 875 € pentru m²
3-cam 96 m²

Descoperiți oportunitatea perfectă de a achiziționa o casă sau vilă spațioasă, ideală pentru familie sau investiție! Parter plus pod, cu o suprafață utilă de 96 mp, amplasată pe un teren de 382 mp, oferă un spațiu generos și flexibil, perfect pentru personalizare și amenajare după gustul dumneavoastră. Construcție solidă din cărămidă, edificată între anii 1951 și 1977, asigurând durabilitate și stabilitate. Casa necesita renovare, pentru a transforma acest imobil în căminul visurilor dumneavoastră. Caracteristici principale: - Configurație cu 3 camere sufragerie și 2 dormitoare spațioase - O baie și o bucătărie închisă, cu geam la baie pentru ventilație - Proprietate neutilată, cu posibilitatea de a o personaliza după preferințe - Este liberă și disponibilă pentru mutare imediată Facilități și infrastructură în apropiere: - Acces facil la transport în comun, magazine, piață, unitate sanitară, școală, grădiniță și gară - Alimentare cu electricitate și gaze, fosa septica, put cu apa, sobe pe gaz,acoperis lindab, asfalt în fața casei - Proprietate cu acte în regulă: intabulare și cadastru Observații: - Interiorul necesită renovare și nu dispune de îmbunătățiri ample - Acceptă credite, însă negociabilitatea prețului face această ofertă și mai atractivă Nu ratați șansa de a achiziționa o proprietate cu potențial excelent, situată într-o zonă convenabilă și în plină dezvoltare. Contactați-ne pentru mai multe detalii și programarea vizionării!

Vand Casa tip Vila Nistoresti, Breaza, pe DN1, Prahova
Vand Casa tip Vila Nistoresti, Breaza, pe DN1, Prahova Breaza, Prahova
130 000 €
542 € pentru m²
5-cam 240 m²

Vand Casa tip Vila in Nistoresti, Cartier Breaza, chiar pe DN1 Prahova, pentru Locuinta, Pensiune sau Activitate comerciala. Deschidere la DN1 23 ml, pozitie deosebita, la 550 ml distanta de Motel/Restaurant BELVEDERE, spre Sinaia, complet finisata interior, exterior, termo-fono-izolatie, parter, etaj, mansarda cu posibilitate de amenajare, deoarece peste parter si etaj este placa de beton.

Casa 3 camere, 3 bai, 35K
Casa 3 camere, 3 bai, 35K Breaza, Prahova
35 000 €
357 € pentru m²
3-cam 98 m²

OPORTUNITATE EXCLUSIVĂ: Preț: 35.000 Euro + preluare contract notarial, rate direct de la proprietar (447 Eur/luna rata fixa!, nu se modifica cu inflatia sau Robor timp de 20 de ani) sau 135000 Euro negociabil.

Casa Breaza 2026 facuta ca la carte, panorama frumoasa
Casa Breaza 2026 facuta ca la carte, panorama frumoasa Prahova, Breaza
205 000 €
1 102 € pentru m²
186 m²

În nordul stațiunii Breaza, într-o zonă liniștită și aerisită, vă prezentăm o proprietate realizată cu atenție la detalii și materiale de calitate superioară. Construită sub supravegherea directă a proprietarului, casa se remarcă prin structură solidă, execuție corectă și documentație completă. Construcție și dotări Imobilul este realizat pe structură de beton armat și zidărie din cărămidă de calitate, cu placă de beton peste parter pentru rigiditate și izolare fonică foarte bună. Casa beneficiază de tâmplărie termopan performantă cu geam All Season și acoperiș din tablă tip Lindab originală. Proprietatea este racordată la toate utilitățile (apă, gaz, canalizare, curent) și dispune de sistem de panouri fotovoltaice. Există proiect tehnic complet, documentație de execuție și recepție. Teren și amplasare Terenul are 804 mp și oferă o curte aerisită, cu livadă de pruni maturi și zonă verde care asigură intimitate. Priveliștea este deschisă către dealurile din împrejurimi, iar de la mansardă se poate observa zona montană dinspre Sinaia. Accesul este facil în orice sezon, iar în curte sunt amenajate locuri de parcare pentru 4 mașini, cu spațiu prevăzut pentru garaj. Compartimentare (186 mp utili) Demisol: cameră tehnică, baie de serviciu, spațiu depozitare și utilități pregătite pentru bucătărie de vară. Parter (finisat complet): living cu bucătărie open-space, 2 dormitoare, baie și terasă de aproximativ 12 mp. Mansardă: 2 dormitoare și grup sanitar. In galeria foto gasiti si poze cu casa la rosu, un detaliu foarte important pt cumparator ! Proprietatea este potrivită atât pentru locuire permanentă, cât și pentru casă de vacanță într-o zonă apreciată pentru aerul curat și liniște. Preț: 205.000 EUR

Casa batraneasca +1400 mp Cornu
Casa batraneasca +1400 mp Cornu Breaza de Jos, Murs erigne 6
60 000 €
896 € pentru m²
3-cam 67 m²

Această casă de vânzare are 3 camere și o suprafață de 67 mp. Este perfectă pentru o familie mică sau pentru a fi folosită ca investiție. Te va impresiona prin spațiile sale luminoase și funcționale, ce oferă un confort deosebit. Locația este ideală, fiind situată într-o zonă liniștită și accesibilă. Vei găsi magazine, școli și transport public în apropiere. Astfel, ai tot ce îți trebuie la îndemână, făcând viața de zi cu zi mai ușoară. Nu rata ocazia de a viziona această proprietate! Contactează-mă pentru mai multe detalii și pentru a programa o vizionare.

OPORTUNITATE: Vilă Premium „Lady M” - Business la cheie
OPORTUNITATE: Vilă Premium „Lady M” - Business la cheie Prahova, Breaza
135 000 €
2 045 € pentru m²
66 m²

OPORTUNITATE: Vilă Premium Lady M- Business la cheie lângă Terenul de Golf, Breaza, PH Vă prezentăm spre vânzare Lady M, o proprietate deosebită situată în inima stațiunii Breaza, într-o zonă privilegiată, imediat lângă prestigiosul teren de golf. Cu un design rustic-cochet, această vilă reprezintă atât refugiul ideal de weekend, cât și o investiție profitabilă în regim hotelier. Detalii Proprietate: Capacitate: 6 persoane (confort optim). Compartimentare: 2 dormitoare spațioase, living luminos cu zonă de dining și masă rotundă, canapea extensibilă. Bucătărie: Complet mobilată și utilată (electrocasnice incluse). Exterior: Teren generos, foișor acoperit, zonă de grătar profesional, accesorii de grădină și parcare privată. Dotări: Smart TV, WiFi, sistem de încălzire efficient (centrala proprie), monitorizare video exterioară. Puncte forte Investiție: Locație Strategică: Situată în zona cu cel mai pur aer din România, chiar lângă terenul de golf - un magnet pentru turiștii cu putere de cumpărare. Business imediat: Proprietatea poate fi inchiriata din prima zi. Stare Impecabilă: Lady M se vinde exact cum apare în fotografii, nu necesită nicio investiție suplimentară. Potențial: Ideală pentru închiriere pe platforme ca Booking/Airbnb sau ca reședință de vacanță privată pentru pasionații de sport și natură. De ce Breaza? Orașul Breaza este o destinație tot mai căutată datorită microclimatului unic și accesului rapid din București (aprox. 1h 20min). Proximitatea față de Sinaia și traseele montane din Munții Baiului adaugă valoare constantă proprietății. Preț: 135.000 Euro Contact pentru detalii și vizionări: 07******21 Se acceptă vizionări programate în prealabil. Nu ratați ocazia de a prelua o afacere pregătită pentru profit sau o casă de vacanță de vis!

Casa de vanzare in Breaza
Casa de vanzare in Breaza Prahova, Breaza de Sus
77 500 €
680 € pentru m²
114 m²

Manuel va prezinta o casa frumoasa pe parter construita in anul 1978 din caramida.Suprafata construita este de 146mp,suprafata utila de 114mp,si este invelita cu tabla.Terenul are suprafata de 538mp cu 15ml deschidere la strada asfaltata.Casa este situata in zona semicentrala a orasului Breaza, zona de deal, frumoasa, la 3km de Piata Centrala. Compartimentare : 4 dormitoare, sufragerie, baie, 2 holuri, bucatarie, camara, pivnita de 16mp. Incalzirea se realizeaza cu sobe de teracota.Se poate monta CT pe gaze ! Tamplaria este din lemn cu geamuri normale ! Apa la baie si bucatarie vine de la hidroforul din curte ! Se poate bransa in strada la apa curenta. Utilitati: apa, gaze, curent electric, salubrizare, catv, internet si canalizare in curand ! Pretul este de 77500 euro ! Manuel va asteapta cu drag la vizionare ! ACEASTA OFERTA APARTINE IN EXCLUSIVITATE AGENTIEI MANUEL IMOB BREAZA !

Casa de vacanta Breaza
Casa de vacanta Breaza Prahova, Breaza
55 000 €
306 € pentru m²
180 m²

Imobilul este situat pe Strada Gurga, intr-o zona linistita, la 5 minute de mers cu masina de centrul orasului. Toate documentele sunt la zi (cadastru, intabulare, autorizatie de construire) Terenul are 1100mp. Casa este finalizata in proportie de 80%: -parterul este terminat la nivel de finisaje -etajul este la rosu (au fost montatate termopane si la etaj de la postarea anuntului) Instalatie electrica individuala pe fiecare etaj. Constructie pe structura din lemn+metal. Parterul este compus din: living, baie, bucatarie, doua dormitoare, camera tehnica/garaj. Etajul este compus din: un dormitor matrimonial cu baie si dressing individual, doua dormitoare, o baie. Mai multe detalii la telefon/whatsapp (prefer mesaje, este posibil sa raspund greu).

Casa de vacanta de vanzare
Casa de vacanta de vanzare Prahova, Breaza
169 000 €
2 414 € pentru m²
7-cam 70 m²

Casa de vacanta de vanzare, casa nu a fost facuta pentru vanzare, a fost facuta pentru familie, dar suntem nevoiți să o vindem. Este amplasata in satul Podul Corbului, Breaza, un sat care este situat la 900 m de DN 1. Este un sat mic, liniștit, cu priveliști foarte frumoase, ideal pentru odihnă si petrecerea timpului liber. Distanța față de București este de 110 km si 20 km față de Sinaia. Casa este construită pe un teren de 1710 mp cu deschidere de 40 m la stradă și este ultima din sat cu multă intimitate și liniște. Casa are suprafața de 117 mp construiți, dintre care o terasă de 31 mp. Casa este compusă din 3 dormitoare, un living cu bucătărie deschisă de 33 mp și o baie de 6,5 mp. Mai conține și un pod spațios de 120 mp. Casa este construită cu cele mai bune materiale și soluții; dețin facturi materiale, poze și filmulețe din toate etapele construcției, planuri arhitecți, avize primarie, pompieri, mediu … Ca și utilități avem curent trifazic și fosă septica. Apa de la rețea și canalizarea sunt foarte aproape de finalizare (țevi, cămine, apometre sunt montate in tot satul; trebuiau sa fie gata deja, dar au fost ceva întârzieri legate de lacul și barajul Paltinu). Ca și sistem de încălzire avem un sistem de încălzire in pardoseală de 10 kw cu 5 termostate plus un șemineu pe lemne de 12 kw. Pentru apa calda avem un boiler de 100 litri. Și încălzirea și boilerul pot fi acționate atât manual cat si prin wifi. Termopanele sunt vârf de gamă, tripane cu tâmplărie Veka cu 7 camere si feronerie Roto N. Izolația casei este din vată bazaltică de 20 cm la pereți. La acoperiș avem: 10 cm în pod și 20 cm în acoperiș (este foarte aproape de o casă pasivă) Ar mai fi multe de spus despre ea. Pentru alte detalii, informații, poze, filmulețe, vă stau la dispoziție la telefon 07********08

Breaza, casa P+M, teren 335 mp, zona linistita
Breaza, casa P+M, teren 335 mp, zona linistita Prahova, Breaza
75 000 €
833 € pentru m²
90 m²

De vanzare in Breaza, casa de vacanta S+P+M, constructie 1994, renovata in 2024, situata intr-o zona linistita, cu aer curat si priveliste spre dealurile impadurite, compusa din: subsol - pivnita - 11,75 mp parter, constructie BCA, Sc = 60 mp - hol, bucatarie, baie, living casa scarii planseu de beton mansarda -constructie pe structura de lemn, Sc = 54,45 mp - grup sanitar si o camera generoasa care poate fi compartimentata in 2 dormitoare balcon 13,55 mp Sdesfasurata = 126,5 mp Finisaje - gresie, faianta, parchet, tamplarie PVC cu geam termopan, termoizolatie exterioara, toate sunt montate in 2024. Casa este racordata la toate utilitatle, gaze, curent el, apa, canalizare. Pentru asigurarea incalzirii imobilului pe timp de iarna, trebuie montata o centrala termica si caloriferele aferente. Terenul proprietatii are o suprafata de 335 mp, deschidere de 15 ml, cu posibilitate parcare auto in interior. Pret 75000 e, neg. Tel 07******71

Casa în Breaza,particular,vând sau schimb,comision 0
Casa în Breaza,particular,vând sau schimb,comision 0 Prahova, Breaza
60 000 €
1 667 € pentru m²
2-cam 36 m²

Particular vand casa în Breaza, 36 mp, 2 camere cu baie și bucătărie, terasa,suprafata 200 mp ( casa + teren ), mobilata.Are apa, gaze,curent, trase în casa. An construcție 1965. Se afla la întrarea în Breaza după podul de peste Prahova și calea ferata, la piciorul podului. Este asfalt pana în fata casei. Casa este locuibila imediat. Totul este functional și este curat.Nu trebuie decât sa te muti. Preț negociabil. Fac și schimb cu imobil în București cu același preț.

VILA,casa de vacanta sau pensiune 315mp. in BREAZA pe VALEA PRAHOVEI
VILA,casa de vacanta sau pensiune 315mp. in BREAZA pe VALEA PRAHOVEI Prahova, Breaza
315 000 €
1 000 € pentru m²
315 m²

VIL, casa de vacanta sau PENSIUNE situata in BREAZA pe VALEA PRAHOVEI cu o priveliste deosebita de la cea mai inalta cota a localitatii, pe drumul spre cruce, compusa din : PARTER = 2 terase, living cu semineu functional, bucatarie open space, loc servit masa, bar, baie cu cabina de dus, centrala termica, casa scarii. ETAJ 1 = 3 dormitoare, unul cu baie interioara, baie hol, hol trecere, balcoane toate dormitoarele inclusiv holul. ETAJ 2 sau mansarda = 3 dormitoare, living open space, baie hol. CURTE in suprafata de 880 mp. amenajata cu : balansoar acoperit din lemn, pod din lemn, terasa betonata si gratar cu rotisor di caramida de samota, bucatarie de vara, magazie cu afumatoare carne, alei betonate si pavaj din piatra de rau, teren de tenis cu gazon si nocturna, parcare auto betonata si iluminata pentru 3-4 masini, 2 locuri amenajate cu masute si scaune din butuci de lemn, brazi, gazon, flori si pomi fructiferi,etc. TOATE UTILITATILE : apa curenta, curent electric, gaze, canalizare, cablu tv, strada betonata si iluminata. An constructie 2008/2009, Fatada renovata in totalitate cu vopsea structurata Ianuarie 2026. Exista posibilitatea de plata in 2 rate sau inchiriere pe termen lung.

Casa in Breaza-80.000e
Casa in Breaza-80.000e Breaza, Prahova
80 000 €
1 194 € pentru m²
3-cam 67 m²

-Agentia imobiliara Casa Edan vinde casa in Breaza, situata in zona buna, retrasa, la aproximativ 2km distanta de centrul localitatii, vecini civilizati, trafic auto redus; -teren 506 mp, perfect plat, fara vicii, acces auto in curte, imprejmuit cu gard, frumos amenajat

Casa in Breaza-79.900e
Casa in Breaza-79.900e Breaza, Prahova
79 900 €
547 € pentru m²
4-cam 146 m²

-Agentia imobiliara Casa Edan vinde casa in Breaza, zona periferica, vecini civilizati, acces din strada asfaltata; -teren 538 mp, deschidere la strada asfaltata 15m, forma trapezoidala, acces auto in curte, plat, fara vicii

Vila cu gradina, foisor, teren 1.029 mp si aer de Breaza!
Vila cu gradina, foisor, teren 1.029 mp si aer de Breaza! Breaza, Prahova
250 000 €
951 € pentru m²
7-cam 263 m²

Neocasa va prezinta o vila frumoasa, construita in anul 1992, cu o suprafata construita de 345 mp, structurata pe subsol, parter, etaj si pod, intr-o armonie perfecta cu natura. Este o constructie care imbina clasicul si modernul, avand un teren de 1.029 mp si o suprafata utila de 263 mp cu urmatoarea configuratie: - Subsol: garaj, boxa, centrala termica, hol, casa scarii - in suprafata de 73.60 mp - Parter: terasa, vestibul, hol, casa scarii, grup sanitar, sas, terasa, birou, camera de zi, sufragerie, bucatarie, camara, si balcon - in suprafata de 133.70 mp - Etaj: hol, casa scarii, dormitor matrimonial cu baie proprie, dormitor, dormitor, baie, camera, grup sanitar, balcon si pod - in suprafata utila de 97.32 mp La fiecare etaj gasim cate un balcon larg si generos ce se intinde pe suprafata intregului etaj si a camerelor, iar baile sunt prevazute cu geam. Casa este primitoare si luminoasa, este inconjurata de gradina imbracata cu gazon si pomi fructiferi (meri, gutui, nuci, pruni). Cand seara se lasa, te poti bucura de un moment de relaxare in foisorul casei. Vecinatati: - Piata, magazine la 8-10 minute; - Scoala elementara la 15 minute; - Liceul militar "Dimitrie Cantemir" la 3 minute de mers cu masina sau 20 de minute mers pe jos; - Complex agrement "Lac de Verde" la 7 minute. Cu masina se poate ajunge foarte usor din DN1, iar apropierea de Valea Prahovei (doar 23 km pana la Sinaia) face ca aceasta vila sa fie o alegere perfecta pentru familia dvs. Datorita pozitionarii si compartimentarii, casa poate fi folosita ca resedinta de vacanta pentru familia dvs. sau poate fi transformata intr-o pensiune. Va invitam cu drag sa vizionati aceasta proprietate si nu veti regreta!

Vanzari Case / Vile
Vanzari Case / Vile Strada Ocinei, Breaza, Prahova
130 000 €
688 € pentru m²
5-cam 189 m²

Descoperă casa de vis în statiunea turistică Breaza! La doar 100 km de București, această locație magică te așteaptă să te relaxezi și să te încărcați cu energie pozitivă. Aerul pur și ozonat, oamenii calzi și primitori te vor face să revii mereu aici, pentru că la Breaza, oamenii revin mereu! De ce să alegi această proprietate? - O casă spațioasă, construită în perioada 1991-2000, clasificată în clasa B - Suprafață utilă generoasă de 189 mp, perfectă pentru familie și confort - Teren de 168 mp, ideal pentru grădină, relaxare sau activități în aer liber - Imobil neutilat, gata să fie personalizat după gustul și nevoile tale Caracteristici principale: - Compartimentare practică și modernă: - Parter: 106 mp cu camere decomandate (hol, sufragerie, bucătărie, dormitor, baie, camera centralei, două debarale mari) - Mansardă: 83 mp cu hol, sufragerie, 4 dormitoare și posibilitatea unei a doua băi - Geamuri la baie pentru ventilație și lumină naturală - Interior elegant, cu gresie, faianță și parchet - Tâmplărie termopan pentru izolare termică și fonică - Centrală termică proprie pentru un confort termic de top - Sistem complet de canalizare, electricitate și gaze pentru toate necesitățile tale - Acoperiș din tablă Lindab, durabil și estetic - Parcare pentru două mașini, comod și sigur Localizare avantajoasă: - Aproape de transport în comun, facilitând deplasările zilnice - La doar câteva minute de parc, magazine, piață, farmacii și unități sanitare - Școală, grădiniță și gară pentru o viață activă și comodă - Acces rapid pe drum asfaltat și infrastructură modernă Facilități suplimentare: - Loc de parcare inclus în ofertă - Intabulare și cadastru pentru siguranță și claritate legală - Posibilitate de achiziție prin credit, cu preț negociabil Alte detalii: - Preț negociabil pentru a te ajuta să faci cea mai bună alegere! - Oportunitatea perfectă pentru a locui într-o proprietate modernă, într-o zonă liniștită și bine conectată. Nu rata această șansă unică! Contactează-ne acum pentru vizionare și oferte personalizate!

Deschide harta Harta